Mieszkanie 3 pokojowe na Sprzedaż

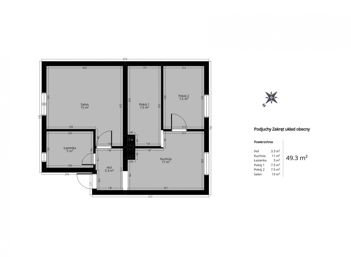
3 pokoje 49.3m²
ZACHODNIOPOMORSKIE Szczecin Podjuchy ul. Zakręt

349 000 PLN

2-3 pokoje | Podjuchy | parter | ogródek + garaż 49.3 m²

349 000 PLN Negocjuj cenę >

ZACHODNIOPOMORSKIE Szczecin Podjuchy ul. Zakręt MAPA

1/16

349 000 PLN WYŁĄCZNOŚĆ   

Przedstawiamy ofertę sprzedaży mieszkania w kameralnej niskiej kamienicy (tylko 6 rodzin) w Podjuchach niedaleko Placu Szewińskiej, ale położonej w cichej bocznej uliczce. W cenie mieszkania jest przynależy ogródek o powierzchni około 20mkw oraz garaż blaszany.

Istnieje możliwość łatwego przywrócenia dawnego układu, ale także dowolnego kształtowania przestrzeni dziennej, dzięki czemu uzyskamy przestronny salon z aneksem kuchennym i częścią jadalnianą (rzut i wizualizacja).

Mieszkanie:
* powierzchnia 49,3mkw
* pierwotnie 2 pokoje (obecnie 3), kuchnia, łazienka i przedpokój
* na podłogach panele (pokoje) i gres (pozostała część), ściany gładzone i malowane
* CO i ciepła woda z nowoczesnego pieca gazowego (w pokojach grzejniki, podłogówka w kuchni i łazience)
* wymieniona instalacja elektryczna
* okna PCV po wymianie wychodzące na obie strony
* przynależna piwnica, a także ogródek (15mkw) i garaż blaszany

Budynek:
*mieszkanie znajduje się na parterze w 2 piętrowym domu wielorodzinnym
*fasada świeżo po odnowieniu wykonana wraz z izolacją pionową
*dach po remoncie (adaptacje)
*zadbane podwórko

Okolica:

Dom znajduje się w wyjątkowo atrakcyjnej lokalizacji — w zacisznej uliczce w pobliżu Placu Szewińskiej, w spokojnych i zielonych Podjuchach. To miejsce, które łączy komfort miejskiego życia z bliskością natury. W bezpośrednim otoczeniu dostępne są sklepy, punkty usługowe, szkoła, przedszkole oraz przystanki komunikacji miejskiej, co zapewnia wygodę na co dzień.

Okolica słynie z przyjaznej atmosfery i dużej ilości terenów zielonych. W kilka minut można dotrzeć do malowniczych tras spacerowych i rowerowych prowadzących w kierunku Puszczy Bukowej — idealnej dla osób aktywnych oraz wszystkich, którzy cenią odpoczynek na świeżym powietrzu.

Lokalizacja zapewnia szybki dojazd do centrum Szczecina i wjazd na trasę A6, a jednocześnie umożliwia korzystanie z uroków spokojnej, kameralnej dzielnicy. To doskonały wybór dla osób poszukujących miejsca oferującego zarówno wygodę, jak i codzienny kontakt z naturą.

Ważne:
* Koszty utrzymania przy 3 osobach to zaledwie 350zł i obejmuje czynsz z funduszem remontowym i zaliczkami na wodę
* koszty gazu to 350zł/mieś. Zimą i 80zł/mieś. latem
* nowa elektryka i hydraulika
* przynależna piwnica, ogródek i garaż
* dostępna kablówka Orange



Pokaż więcejmniej  

 
Ogólne warunki:
Cena:349 000 PLN
Waluta:PLN
Liczba pokoi:3
Powierzchnia:49.3 m²
Cena za m2:7 079 PLN
Czynsz administracyjny:350 zł
Rynek:Wtórny
 
Opis budynku:
Rodzaj budynku:Kamienica
Rok budowy:1960
Liczba pięter:2
Stan budynku:do odświeżenia
Winda:nie
 
Standard mieszkania:
Stan nieruchomości:do odświeżenia
Rodzaj ogrzewania:Gazowe
 
Pomieszczenia i pokoje:
Typ kuchni:Z oknem otwarta na salon
 
Powierzchnia dodatkowa:
Balkon:nie
Komórka/Piwnica:tak
Loggia:nie
Ogródek:tak
Schowek:nie
Taras:nie
 
Bezpieczeństwo:
Monitoring:nie
Ochrona:nie
Teren ogrodzony:nie
 
Numer oferty:
CRM:34964537740

Pokaż więcejmniej  

Tagi

Masz pytania? Napisz!

Polecamy podobne oferty

Zapisz się na powiadomienia o podobnych ofertach

Zaktualizowaliśmy naszą Politykę Prywatności.

Nowe zapisy w Polityce Prywatności wynikają z konieczności dostosowania naszych działań oraz dokumentacji do nowych wymagań europejskiego Rozporządzenia o Ochronie Danych Osobowych (RODO), które jest stosowane od 25 maja 2018 r.

Zaawansowane