Mieszkanie 2 pokojowe na Sprzedaż

2 pokoje 44.02m²
WIELKOPOLSKIE Poznań Centrum ul. Garbary

780 000 PLN

2 pok. mieszkanie w Centrum - nowy blok 44.02 m²

780 000 PLN Negocjuj cenę >

WIELKOPOLSKIE Poznań Centrum ul. Garbary MAPA

1/10

780 000 PLN WYŁĄCZNOŚĆ   

Esencja Apartamenty.

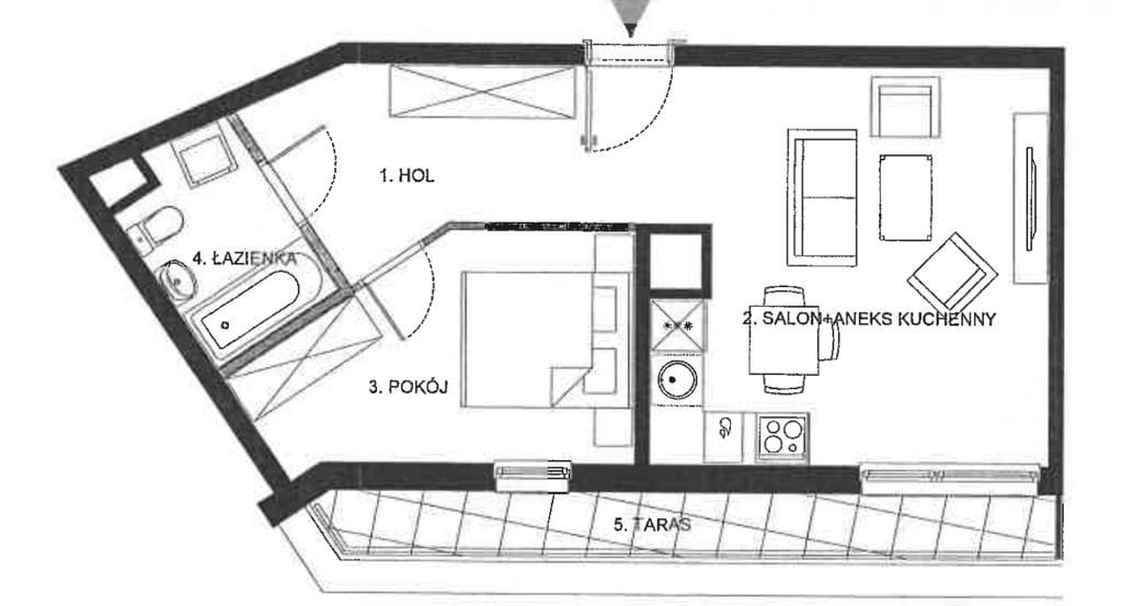
Mieszkanie na piątym, ostatnim piętrze (winda). Składa się z salonu z aneksem kuchennym -20,93 m2, sypialni 10,42 m2, przedpokoju 8,62 m2, łazienki - 4,05 m2. Z salonu wyjście na balkon o powierzchni 6,49 m2. Mieszkanie jednostronne, okna wychodzą na zachód. Budynek w 2 linii zabudowy od ul. Garbary. Jeszcze przez chwile w sąsiedztwie będzie trwała budowa kompleksu mieszkaniowego Kapitanat Garbary, ale po jej zakończeniu mieszkanie jest z dala od hałasu ruchliwych ulic centrum miasta.
Świetna lokalizacja dla tych, którzy lubią mieszkać w Centrum a jednocześnie w sąsiedztwie Warty i blisko Cytadeli. Świetna inwestycja pod dalszy wynajem, mieszkanie do tej pory pełniło taką funkcję.
Do mieszkania przynależy miejsce parkingowe w hali garażowej pod budynkiem - dodatkowo płatne 50 000 zł. Brak komórki lokatorskiej. Na terenie osiedla - ochrona. Mieszkanie jest sprzedawane wraz z wyposażeniem widocznym na zdjęciach.
Czynsz administracyjny ok. 550 zł/m-c.



Pokaż więcejmniej  

 
Ogólne warunki:
Cena:780 000 PLN
Waluta:PLN
Liczba pokoi:2
Powierzchnia:44.02 m²
Cena za m2:17 719 PLN
Rynek:Wtórny
 
Opis budynku:
Liczba pięter:5
Piętro:5
Stan budynku:bardzo dobry
Winda:nie
 
Standard mieszkania:
Stan nieruchomości:bardzo dobry
 
Pomieszczenia i pokoje:
Typ kuchni:Z oknem otwarta na salon
 
Powierzchnia dodatkowa:
Balkon:nie
Komórka/Piwnica:nie
Loggia:nie
Ogródek:nie
Schowek:nie
Taras:tak
 
Bezpieczeństwo:
Monitoring:nie
Ochrona:nie
Teren ogrodzony:nie
 
Numer oferty:
CRM:34964538677

Pokaż więcejmniej  

Tagi

Masz pytania? Napisz!

Polecamy podobne oferty

Zapisz się na powiadomienia o podobnych ofertach

Zaktualizowaliśmy naszą Politykę Prywatności.

Nowe zapisy w Polityce Prywatności wynikają z konieczności dostosowania naszych działań oraz dokumentacji do nowych wymagań europejskiego Rozporządzenia o Ochronie Danych Osobowych (RODO), które jest stosowane od 25 maja 2018 r.

Zaawansowane