Mieszkanie 2 pokojowe na Sprzedaż

2 pokoje 55.86m²
ZACHODNIOPOMORSKIE stargardzki

185 000 PLN

2 pokoje z ogródkiem | Krąpiel k. Stargardu 55.86 m²

185 000 PLN Negocjuj cenę >

ZACHODNIOPOMORSKIE stargardzki MAPA

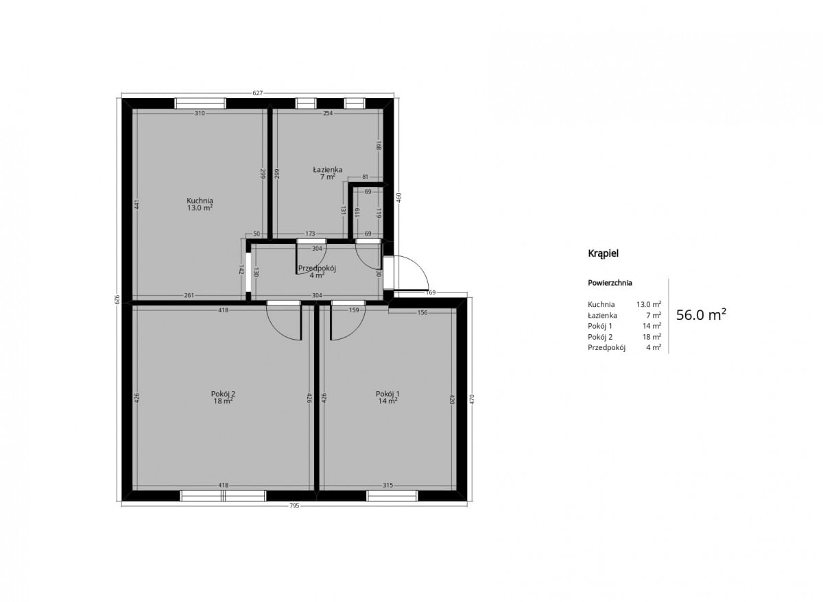
1/18

185 000 PLN WYŁĄCZNOŚĆ   

Na sprzedaż bezczynszowe mieszkanie o powierzchni 55,86mkw w miejscowości Krąpiel w gminie Stargard. Lokal położony jest w budynku wielorodzinnym - do dyspozycji mieszkańców jest ogródek, piwnica oraz pomieszczenie gospodarcze o pow. 12,5mkw. Mieszkanie daje szerokie możliwości aranżacyjne - idealne zarówno dla pary jak i małej rodziny. Jest to też świetna propozycja dla pracodawców lub inwestorów szukających mieszkania pod wynajem. W ogłoszeniu wykorzystano wizualizację przedstawiającą przykładową aranżację pomieszczeń.

Mieszkanie:
* powierzchnia 55,86mkw., I piętro, wys. 2,56m
* 2 pokoje rozkładowe, kuchnia, łazienka, korytarz, schowek
* obecnie ogrzewanie z pieca na paliwo stałe
* zbiornik na wodę 120 L - woda podgrzewana z pieca lub elektrycznie
* kanalizacja i wodociąg gminny
* okna pcv w dobrym stanie
* orientacja na północny wschód (kuchnia i łazienka) oraz południowy zachód (pokoje)
* drzwi antywłamaniowe

Budynek:
* niski budynek wielorodzinny (4 rodziny)
* na działce, na której posadowiony jest budynek, znajduje się ogródek do dyspozycji mieszkańców oraz budynek gospodarczy o pow. 12,5mkw

Okolica:
Krąpiel to spokojna i dobrze skomunikowana miejscowość położona zaledwie kilka kilometrów od Stargardu. Dzięki bliskości drogi krajowej oraz linii kolejowej, mieszkańcy mają zapewniony szybki dojazd zarówno do Stargardu, jak i w kierunku Szczecina. Dodatkowo dla dzieci w wieku szkolnym funkcjonuje specjalny bus, który ma przystanek nieopodal domu.
Wieś oferuje podstawowe udogodnienia - znajdują się tu sklepy spożywcze, paczkomat, kościół, a w pobliskim Stargardzie dostępna jest pełna infrastruktura: szkoły, przedszkola, galerie handlowe i instytucje publiczne.
Krąpiel to także dobra propozycja dla osób ceniących ciszę i kontakt z naturą - okolica jest zielona i sprzyja spacerom oraz rekreacji na świeżym powietrzu.
Najbliższy sklepik osiedlowy znajduje się w odległości zaledwie 120 m, sklep Dino w odległości 800 m.

Ważne:
· mieszkanie bezczynszowe = niskie koszty utrzymania
· do dyspozycji piwnica, pomieszczenie gospodarcze na zewnątrz oraz ogród
· budżetowa opcja dla osób szukających własnego lokum w atrakcyjnej cenie
· mieszkanie zostało wysprzątane i odmalowane



Pokaż więcejmniej  

 
Ogólne warunki:
Cena:185 000 PLN
Waluta:PLN
Liczba pokoi:2
Powierzchnia:55.86 m²
Cena za m2:3 312 PLN
Rynek:Wtórny
 
Opis budynku:
Rodzaj budynku:Dom wielorodzinny
Rok budowy:1950
Liczba pięter:1
Piętro:1
Stan budynku:do wykończenia
Winda:nie
 
Standard mieszkania:
Stan nieruchomości:do wykończenia
Rodzaj ogrzewania:Kominkowe
 
Pomieszczenia i pokoje:
Typ kuchni:Zamykana z oknem
 
Powierzchnia dodatkowa:
Balkon:nie
Komórka/Piwnica:tak
Loggia:nie
Ogródek:tak
Schowek:tak
Taras:nie
 
Bezpieczeństwo:
Monitoring:nie
Ochrona:nie
Teren ogrodzony:nie
 
Numer oferty:
CRM:34964534867

Pokaż więcejmniej  

Tagi

Masz pytania? Napisz!

Polecamy podobne oferty

Zapisz się na powiadomienia o podobnych ofertach

Zaktualizowaliśmy naszą Politykę Prywatności.

Nowe zapisy w Polityce Prywatności wynikają z konieczności dostosowania naszych działań oraz dokumentacji do nowych wymagań europejskiego Rozporządzenia o Ochronie Danych Osobowych (RODO), które jest stosowane od 25 maja 2018 r.

Zaawansowane