Mieszkanie 4 pokojowe na Sprzedaż

4 pokoje 51.3m²
WIELKOPOLSKIE Poznań ul. Antoniego Małeckiego

520 000 PLN

2 wynajęte kawalerki 51.3 m²

520 000 PLN Negocjuj cenę >

WIELKOPOLSKIE Poznań ul. Antoniego Małeckiego MAPA

1/17

520 000 PLN WYŁĄCZNOŚĆ   

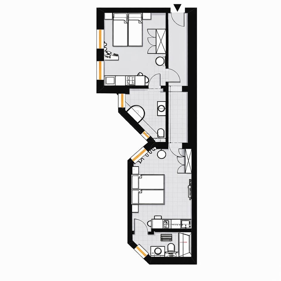
GOTOWIEC INWESTYCYJNY, Mieszkanie podzielone na 2 kawalerki, RYNEK ŁAZARSKI

Mieszkanie wynajęte za 3 000 zł miesięcznie + opłaty za media.

Nieruchomości znajdują się w odrestaurowanej, klimatycznej kamienicy przy Rynku Łazarskim, po generalnym remoncie z pełną wymianą wszystkich instalacji. Każde mieszkanie jest obecnie w pełni wyposażone i wynajęte.

Mieszkanie zostało funkcjonalnie zaprojektowane i podzielone na 2 niezależne kawalerki.

Lokal nr 27 - 51,3 m2


STANDARD WYKOŃCZENIA:
* deska barlinecka na podłogach
* drzwi Porta
* kapitalny remont - wymienione wszystkie instalacje
* ogrzewanie z cieplika miejskiego
* jasne, wysokie pomieszczenia o funkcjonalnym układzie


LOKALIZACJA
Poznań - Łazarz, ul. Małeckiego, tuż przy płycie Rynku Łazarskiego.
Doskonała komunikacja (tramwaje w zasięgu 2 minut spacerem), bogata oferta gastronomiczna, sklepy i pełna infrastruktura miejska - lokalizacja, która zawsze się wynajmuje.



Pokaż więcejmniej  

 
Ogólne warunki:
Cena:520 000 PLN
Waluta:PLN
Liczba pokoi:4
Powierzchnia:51.3 m²
Cena za m2:10 136 PLN
Czynsz administracyjny:800 zł
Rynek:Wtórny
 
Opis budynku:
Liczba pięter:4
Piętro:1
Winda:nie
 
Powierzchnia dodatkowa:
Balkon:nie
Komórka/Piwnica:nie
Loggia:nie
Ogródek:nie
Schowek:nie
Taras:nie
 
Bezpieczeństwo:
Monitoring:nie
Ochrona:nie
Teren ogrodzony:nie
 
Numer oferty:
CRM:34964541213

Pokaż więcejmniej  

Masz pytania? Napisz!

Przepisz kod captcha:

Polecamy podobne oferty

Zapisz się na powiadomienia o podobnych ofertach

Przepisz kod captcha:

Zaktualizowaliśmy naszą Politykę Prywatności.

Nowe zapisy w Polityce Prywatności wynikają z konieczności dostosowania naszych działań oraz dokumentacji do nowych wymagań europejskiego Rozporządzenia o Ochronie Danych Osobowych (RODO), które jest stosowane od 25 maja 2018 r.

Zaawansowane