Mieszkanie 4 pokojowe na Sprzedaż

4 pokoje 85.34m²
MAZOWIECKIE Warszawa Śródmieście ul. Ptasia

1 699 000 PLN

Ciche / Metro/ Tuż przy parku/ Centrum 85.34 m²

1 699 000 PLN Negocjuj cenę >

MAZOWIECKIE Warszawa Śródmieście ul. Ptasia MAPA

1/5

1 699 000 PLN WYŁĄCZNOŚĆ   

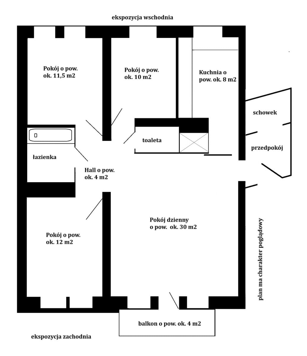
Oferuję do sprzedaży ciche mieszkanie znajdujące się drugim piętrze budynku z końca lat dziewięćdziesiątych XX w., przy ulicy Ptasiej.

Mieszkanie ma pow. 85,34 m2 i składa się z pokoju dziennego o pow. ok. 30 m2, trzech sypialni o pow. 12/ 11,5/ 10 m2, samodzielnej kuchni o pow. ok. 8 m2, łazienki o pow. ok. 4,6 m2 (wyposażonej w dużą wannę), osobnej toalety o pow. ok. 1,6 m2, a także schowka i przedpokoju. Z pokoju dziennego można wyjść na balkon o pow. ok. 4 m2. 

Lokal ma funkcjonalny układ pomieszczeń, a jego dwustronna ekspozycja zapewnia optymalne nasłonecznienie przez większą część dnia (południowy zachód /północny wchód). Okna dwóch sypialni oraz kuchni są skierowane na zieleń i podwórka sąsiednich budynków. Z okien pokoju dziennego oraz trzeciej sypialni, rozpościera się widok na frontowe podwórze, a w dalszej perspektywie na ścisłe centrum Warszawy (w tym  na Pałac Kultury i Nauki). 

W bliskiej okolicy znajdują się szkoły i przedszkola publiczne, dwa parki (w tym Park Saski), liczne sklepy, bazarek a także punkty usługowe.

Centralna lokalizacja zapewnia doskonałą komunikację z każdą częścią miasta. Do metra (Ratusz Arsenał) oraz do najbliższych linii tramwajowych można dojść w zaledwie kilka minut.


  • Mieszkanie własnościowe z nieobciążoną księgą wieczystą.

  • Do lokalu jest przypisana piwnica o pow. ok. 4 m2.

  • W budynku jest winda. 

  • Parkowanie na zamykam podwórku (jeden pilot). 

  • Opłaty eksploatacyjne (z zaliczkami na media) wynoszą ok. 1640 pln miesięcznie. 


Zapraszam na prezentację



Pokaż więcejmniej  

 
Ogólne warunki:
Cena:1 699 000 PLN
Waluta:PLN
Liczba pokoi:4
Powierzchnia:85.34 m²
Cena za m2:19 909 PLN
Czynsz administracyjny:1644 zł
Rynek:Wtórny
 
Opis budynku:
Rodzaj budynku:Blok mieszkalny
Rok budowy:2000
Liczba pięter:6
Piętro:2
Stan budynku:dobry
Winda:tak
 
Standard mieszkania:
Stan nieruchomości:dobry
Rodzaj ogrzewania:CO miejskie
 
Pomieszczenia i pokoje:
Typ kuchni:Zamykana z oknem
 
Powierzchnia dodatkowa:
Balkon:tak
Komórka/Piwnica:tak
Loggia:nie
Ogródek:nie
Schowek:nie
Taras:nie
 
Bezpieczeństwo:
Monitoring:tak
Ochrona:nie
Teren ogrodzony:tak
 
Numer oferty:
CRM:34964534996

Pokaż więcejmniej  

Tagi

Michał Bełżecki

Doradca Nieruchomości



Masz pytania? Napisz!

Polecamy podobne oferty

Zapisz się na powiadomienia o podobnych ofertach

Zaktualizowaliśmy naszą Politykę Prywatności.

Nowe zapisy w Polityce Prywatności wynikają z konieczności dostosowania naszych działań oraz dokumentacji do nowych wymagań europejskiego Rozporządzenia o Ochronie Danych Osobowych (RODO), które jest stosowane od 25 maja 2018 r.

Zaawansowane