Mieszkanie 1 pokojowe na Sprzedaż

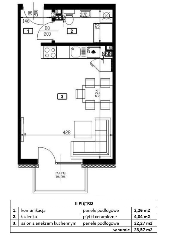
1 pokoje 28.57m²
WIELKOPOLSKIE poznański ul. Kazimierza Pułaskiego

269 500 PLN

Do sprzedania kawalerka w Luboniu k. Poznania 28.57 m²

269 500 PLN Negocjuj cenę >

WIELKOPOLSKIE poznański ul. Kazimierza Pułaskiego MAPA

1/11

269 500 PLN WYŁĄCZNOŚĆ   

Do sprzedania kawalerka: 28,57m2 z balkonem 2m2 na drugim piętrze z windą, w stanie deweloperskim w Luboniu k. Poznania. Do mieszkania przynależy miejsce parkingowe na placu przy do budynku. 

Lokalizacja:
Mieszkanie jest położone ok 900 m od stacji PKP, przy zbiegu ulic Kazimierza Pułaskiego i Jana Pawła II.

Miasto Luboń:
to dynamicznie rozwijająca się miejscowość tuż przy aglomeracji Poznańskiej, z dogodnymi połączeniami z Poznaniem zarówno w ramach komunikacji miejskiej jak i PKP (dojazd w 9 minut z Lubonia do Dworca Głównego w Poznaniu). Bliskość⁣ do rzeki Warty stwarza​ doskonałe warunki do⁢ uprawiania sportów wodnych i rekreacji, wycieczek rowerowych i spacerów. Natomiast bliskość innych licznych miejsc przyrodniczych sprzyja bogactwu i różnorodności form spędzania wolnego czasu. Wśród tych miejsc można wymienić: Park Leśny w Luboniu, Rezerwat ⁢Przyrody „Kępa ‍Warty”, Wielkopolski Park Narodowy, Puszczę Notecką, Rezerwat „Uroczysko​ Puszczy Zielonka” czy Jezioro Góreckie i Jezioro Dymaczewskie.

Mieszkanie jest w tzw. standardzie developerskim: wyskość 2.60m, wszystkie instalacje rozprowadzone, tynki maszynowe, zamontowany boiler i kaloryfery, ogrzewanie na prąd, plus zainstalowana klimatyzacja. 

Mieszkanie idealne pod: inwestycję na wynajem dla studentów, młodego małżeństwa, wynajem krótkoterminowy, sprzedawane w bezpiecznym dla kupującego momencie tj. w istniejącej i oddanej do użytkowania inwestycji. 

W pobliżu pełna infrastruktura miejska: sklepy, przychodnie, poczta, szkoły, przedszkola, przystanki autobusowe.

Zdjęcia oferty: stanowią część projektu architektonicznego wykonanego przez renomowaną firmę specjalnie na potrzeby tego mieszkania. Projekt zostanie przekazany w cenie sprzedaży.



Pokaż więcejmniej  

 
Ogólne warunki:
Cena:269 500 PLN
Waluta:PLN
Liczba pokoi:1
Powierzchnia:28.57 m²
Cena za m2:9 433 PLN
Czynsz administracyjny:300 zł
Rynek:Wtórny
 
Opis budynku:
Rok budowy:2025
Liczba pięter:3
Piętro:2
Stan budynku:surowy zamknięty
Winda:nie
 
Standard mieszkania:
Stan nieruchomości:surowy zamknięty
 
Pomieszczenia i pokoje:
Typ kuchni:Aneks kuchenny
 
Powierzchnia dodatkowa:
Balkon:tak
Komórka/Piwnica:nie
Loggia:nie
Ogródek:nie
Schowek:nie
Taras:nie
 
Bezpieczeństwo:
Monitoring:nie
Ochrona:nie
Teren ogrodzony:nie
 
Numer oferty:
CRM:34964541245

Pokaż więcejmniej  

Tagi

Masz pytania? Napisz!

Przepisz kod captcha:

Polecamy podobne oferty

Zapisz się na powiadomienia o podobnych ofertach

Przepisz kod captcha:

Zaktualizowaliśmy naszą Politykę Prywatności.

Nowe zapisy w Polityce Prywatności wynikają z konieczności dostosowania naszych działań oraz dokumentacji do nowych wymagań europejskiego Rozporządzenia o Ochronie Danych Osobowych (RODO), które jest stosowane od 25 maja 2018 r.

Zaawansowane