Mieszkanie 3 pokojowe na Sprzedaż

3 pokoje 51.48m²
MAZOWIECKIE Warszawa Bemowo Jelonki Półudniowe ul. Puszczy Solskiej

680 000 PLN

Dobra cena | 51,48 m2 | 3 pokoje | Do remontu 51.48 m²

680 000 PLN Negocjuj cenę >

MAZOWIECKIE Warszawa Bemowo Jelonki Półudniowe ul. Puszczy Solskiej MAPA

1/12

680 000 PLN WYŁĄCZNOŚĆ   

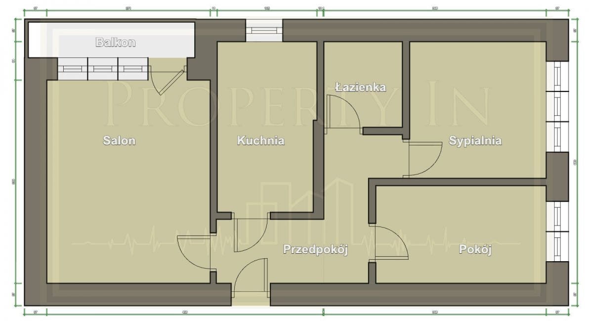
3 pokoje | oddzielna kuchnia | balkon | piwnica

Zapraszam do zapoznania się z funkcjonalnym, 3-pokojowym mieszkaniem o powierzchni 51,48 m², położonym na 1. piętrze w zadbanym, jedenastopiętrowym budynku z 1976 roku. To idealna propozycja dla osób poszukujących mieszkania z niezależnym układem pomieszczeń, dużą ilością światła dziennego oraz pełną infrastrukturą w zasięgu kilku minut.

Lokal znajduje się w spokojnej, zielonej części Bemowa, przy ul. Puszczy Solskiej, wśród niskiej zabudowy i licznych terenów rekreacyjnych. Mieszkanie doskonale sprawdzi się zarówno dla rodzin, par, jak i inwestorów.



  • 3-pokojowe mieszkanie z potencjałem na Bemowie

  • Warszawa, Bemowo - Jelonki Południowe, ul. Puszczy Solskiej

  • metraż: 51,48 m²

  • piętro: 1 z 11

  • status prawny: spółdzielcze własnościowe z możliwością założenia Księgi Wieczystej

  • cena: 680 000 zł 

  • czynsz administracyjny: ok. 800 zł 




Informacje o budynku:

Budynek z 1976 roku znajduje się na zadbanym terenie z dużą ilością zieleni i licznymi miejscami parkingowymi dostępnymi dla mieszkańców, co w tej okolicy jest ogromnym atutem.

W bloku znajduje się winda, przestronna wózkarnia, a części wspólne są utrzymane w dobrym stanie. Lokalizacja zapewnia ciszę, spokój oraz bardzo wygodne warunki codziennego życia dzięki pełnej infrastrukturze w bezpośrednim sąsiedztwie.

Nieruchomość składa się z:


  • salonu (ok. 16 m²) z wyjściem na ok. 3-metrowy balkon (ekspozycja wschodnia)

  • sypialni 1 - ok. 9,2 m² (ekspozycja północna)

  • sypialni 2 - ok. 10 m² (ekspozycja północna)

  • widnej kuchni z pełnym podstawowym wyposażeniem 

  • łazienki z pełnym wyposażeniem

  • przedpokoju (ok. 8 m²) z miejscem na szafy

  • Do mieszkania przynależy piwnica (ok. 2 m²).


Układ mieszkania jest niezależny i bardzo funkcjonalny, świetny zarówno do zamieszkania, jak i pod wynajem. Istnieje możliwość pozostawienia obecnego podziału na 3 pokoje lub stworzenia większej strefy dziennej.

Najważniejsze informacje dotyczące nieruchomości:

-funkcjonalny układ 3 niezależnych pokoi
-jasny salon z balkonem
-mieszkanie do remontu - możliwość pełnej aranżacji pod własny projekt
-oddzielna, widna kuchnia
-piętro - rzadko dostępne i bardzo wygodne
-wózkarnia w budynku
-dużo darmowych miejsc parkingowych wokół
-piwnica w cenie
-możliwość zakupu na kredyt
-spokojna, zielona okolica z pełną infrastrukturą

Opis okolicy i komunikacji:

Mieszkanie położone jest na warszawskim Bemowie, w rejonie Jelonek Południowych — jednej z najbardziej zielonych i kameralnych części dzielnicy. W okolicy znajdują się liczne tereny rekreacyjne, skwery, ścieżki spacerowe oraz punkty usługowe, które sprawiają, że życie tutaj jest wygodne i spokojne.

W pobliżu:

-sklepy i punkty usługowe
-szkoły i przedszkola
-rozbudowana infrastruktura rekreacyjna
-liczne miejsca parkingowe
-Komunikacja miejska:
-3 minuty pieszo do najbliższego przystanku autobusowego
-szybki dojazd do stacji metra Bemowo / Ratusz Bemowo (w zależności od trasy)
-dogodny dostęp do tras wyjazdowych i głównych arterii Bemowa

Lokalizacja pozwala cieszyć się ciszą i zielenią bez rezygnacji z wygodnych połączeń z resztą miasta.

Komunikacja:

Dzięki licznym liniom autobusowym oraz bliskości głównych ulic Bemowa dojazd do centrum lub innych rejonów Warszawy jest szybki i wygodny.
W przyszłości dodatkowym atutem będzie rozwój linii tramwajowych w kierunku centrum.

Więcej informacji udzielę telefonicznie.

Informacje zawarte w niniejszej ofercie nie są prawnie wiążące i nie stanowią oferty handlowej w rozumieniu art. 66 §1 Kodeksu Cywilnego.



Pokaż więcejmniej  

 
Ogólne warunki:
Cena:680 000 PLN
Waluta:PLN
Liczba pokoi:3
Powierzchnia:51.48 m²
Cena za m2:13 209 PLN
Czynsz administracyjny:800 zł
Rynek:Wtórny
 
Opis budynku:
Rodzaj budynku:Blok mieszkalny
Rok budowy:1976
Liczba pięter:11
Piętro:1
Stan budynku:do odświeżenia
Winda:tak
 
Standard mieszkania:
Stan nieruchomości:do odświeżenia
Rodzaj ogrzewania:CO miejskie
 
Pomieszczenia i pokoje:
Typ kuchni:Zamykana z oknem
 
Powierzchnia dodatkowa:
Balkon:tak
Komórka/Piwnica:tak
Loggia:nie
Ogródek:nie
Schowek:nie
Taras:nie
 
Bezpieczeństwo:
Monitoring:tak
Ochrona:nie
Teren ogrodzony:nie
 
Numer oferty:
CRM:34964543657

Pokaż więcejmniej  

Tagi

Karolina Grudzińska-Wolińska

Pośredniczka w Obrocie Nieruchomościami



Masz pytania? Napisz!

Przepisz kod captcha:

Polecamy podobne oferty

Zapisz się na powiadomienia o podobnych ofertach

Przepisz kod captcha:

Zaktualizowaliśmy naszą Politykę Prywatności.

Nowe zapisy w Polityce Prywatności wynikają z konieczności dostosowania naszych działań oraz dokumentacji do nowych wymagań europejskiego Rozporządzenia o Ochronie Danych Osobowych (RODO), które jest stosowane od 25 maja 2018 r.

Zaawansowane