Dom 4 pokojowe na Sprzedaż

4 pokoje 170.5m²
MAZOWIECKIE Warszawa Bemowo ul. Szeligowska

2 171 000 PLN

Dom z ogrodem/Szeligi,/blisko metro chrzanów 170.5 m²

2 171 000 PLN Negocjuj cenę >

MAZOWIECKIE Warszawa Bemowo ul. Szeligowska MAPA

1/19

2 171 000 PLN WYŁĄCZNOŚĆ   

Mam przyjemność zaprezentować Państwu ofertę domu wolnostojącego w Szeligach przy Ulicy Szeligowskiej.

Usytuowany w cichym osiedlu domów jednorodzinnych na granicy z Warszawą Bemowo. Komunikację z centrum Warszawy umożliwia znakomita lokalizacja - 50 m od przystanku, niedaleko powstającej linii metra- stacji Metro Chrzanów oraz 5 minut od wjazdu na trasę S8.

Dom idealny dla rodziny z dziećmi: blisko żłobek, przedszkole, szkoła języków obcych dla dzieci, plac zabaw, skwer, niepubliczna szkoła podstawowa Montessori, szkoła podstawowa z oddziałami integracyjnymi, kościół.

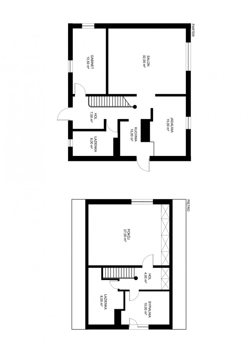
Dom o powierzchni użytkowej 140,5 mkw. składa się z:

PARTER o powierzchni 90,5mkw.
Salon z kominkiem o powierzchni 32 mkw. z wyjściem na duży taras.
Kuchnia z jadalnią 30 mkw.
Łazienka 8 mkw.
Hol 8 mkw.
Gabinet 13,5 mkw.
Garaż oraz pomieszczenie techniczne około 40 mkw.

PIĘTRO o powierzchni 50 mkw.

Główna sypialnia 27 mkw.
Pierwsza sypialnia 10 mkw. z wyjściem na taras.
Hol 5 mkw.
Łazienka z prysznicem 8 mkw.

Dom został wybudowany w 1996 roku w technologii murowanej, na działce o powierzchni 893 mkw. Duży taras oraz zadbana, porośnięta zielenią część ogrodowa o powierzchni ok 500 mkw. wyeksponowana jest na południe gwarantując dobre nasłonecznienie przez cały rok.

Dom posadowiony na narożnej działce o powierzchni o 893 o wymiarach 19,86 x 45,14 metra.

Dzięki świetnej lokalizacji blisko Bemowa oraz stacji Metra Chrzanów, z dobrym dojazdem do Warszawy.

W związku z intensywną rozbudową Osiedla Chrzanów w niewielkiej odległości znajdują się wszystkie istotne dla codziennego funkcjonowania miejsca - przystanek autobusowy, Stacja Metra, przedszkole, nowa szkoła podstawowa nr 407, sklepy, markety , bary i restauracje, oraz sprzyjający odpoczynkowi i rekreacji Park Górczewska.

W najbliższej okolicy:

- 500 m sklep spożywczy,
- 50 m przystanek autobusowy linii 743, zapewniającej bezpośredni dojazd do Warszawy,
- 340 m plac zabaw,
- 700 m trasa szybkiego ruchu S8,
- 2 km Stacja metra Chrzanów
- 2,5 km szkoła podstawowa - nowo powstała Szkoła Podstawowa nr 407,
- 2 km supermarket: Biedronka, Lidl,
- 2,7 km przychodnia,
- 3,2 km przedszkole,
- 4 km apteka,
- 5,3 km Handlowy Babice Nowe ( Biedronka, CCC, Rossmann, Empik, Smyk, Pepco, Kik, Martes Sport, Neonet),
- 500 m kościół.
W promieniu 4 km znajdują się restauracje oraz wiele punktów handlowo-usługowych.

PLAN ZAGOSPODAROWANIA - WARUNKI ZABUDOWY

Zgodnie z miejscowym planem zagospodarowania przestrzennego gminy Ożarów Mazowiecki nieruchomość znajduje się na terenie zabudowy mieszkaniowej jednorodzinnej, oznaczonej w miejscowym planie literą M.
§ 16.1. Plan ustala przeznaczenie podstawowe - zabudowa mieszkaniowa jednorodzinna w układzie wolno stojącym lub bliźniaczym.
2. Plan ustala:
1) przeznaczenie uzupełniające;
a) budynki gospodarcze (w tym garaże), jeden na działce o łącznej powierzchni zabudowy nie
większej niż 60m2
b) infrastruktura techniczna dla potrzeb lokalnych lub potrzeb działki, dojazdy, dojścia, podjazdy,
zieleń, miejsca postojowe

5. Plan ustala warunki zagospodarowania terenu i kształtowania zabudowy:
1) działka:
a) dla mieszkaniowej zabudowy wolno stojącej na działce o minimalnej powierzchni 1000m2 z dopuszczalnym 5% obniżeniem tej powierzchni, plan ustala lokowanie jednego budynku mieszkalnego z jednym mieszkaniem,
b) dla mieszkaniowej zabudowy bliźniaczej na działce o minimalnej powierzchni 1000m2 (dwa segmenty) z dopuszczalnym 5% obniżeniem tych powierzchni, plan ustala lokowanie jednego mieszkania w każdym segmencie,
2) kształtowanie zabudowy: a) na każdej działce ustala się zachowanie, co najmniej 50% powierzchni przyrodniczo aktywnej, maksymalną powierzchnię zabudowy do 40% oraz maksymalną powierzchnię utwardzoną do 50%.

STAN PRAWNY NIERUCHOMOŚCI
Mieszkanie własnościowe z księgą wieczystą.

Powyższa oferta ma charakter informacyjny i nie stanowi oferty handlowej w rozumieniu art. 66 §1 Kodeksu Cywilnego. Mieszkanie przeszło w tym roku generalne odświeżenie.


 


 




Pokaż więcejmniej  

 
Ogólne warunki:
Rynek:Wtórny
Cena:2 171 000 PLN
Waluta:PLN
Cena za m2:12 733 PLN
Liczba pokoi:4
 
Standard domu:
Rok budowy:1996
Liczba pięter:1
 
Bezpieczeństwo:
Monitoring:tak
Teren strzeżony:nie
 
Media:
Rodzaj ogrzewania:CO własne
 
Numer oferty:
CRM:34964534286

Pokaż więcejmniej  

Tagi

Karolina Grudzińska-Wolińska

Managerka Zespołu / Pośredniczka w Obrocie Nieruchomościami



Masz pytania? Napisz!

Przepisz kod captcha:

Polecamy podobne oferty

Zapisz się na powiadomienia o podobnych ofertach

Przepisz kod captcha:

Zaktualizowaliśmy naszą Politykę Prywatności.

Nowe zapisy w Polityce Prywatności wynikają z konieczności dostosowania naszych działań oraz dokumentacji do nowych wymagań europejskiego Rozporządzenia o Ochronie Danych Osobowych (RODO), które jest stosowane od 25 maja 2018 r.

Zaawansowane