Mieszkanie 12 pokojowe na Sprzedaż

12 pokoje 234.58m²
MAZOWIECKIE Warszawa Żoliborz ul. Włościańska

3 000 000 PLN

Dwupoziomowe Mieszkanie Inwestycyjne | 10 pokoi 234.58 m²

3 000 000 PLN Negocjuj cenę >

MAZOWIECKIE Warszawa Żoliborz ul. Włościańska MAPA

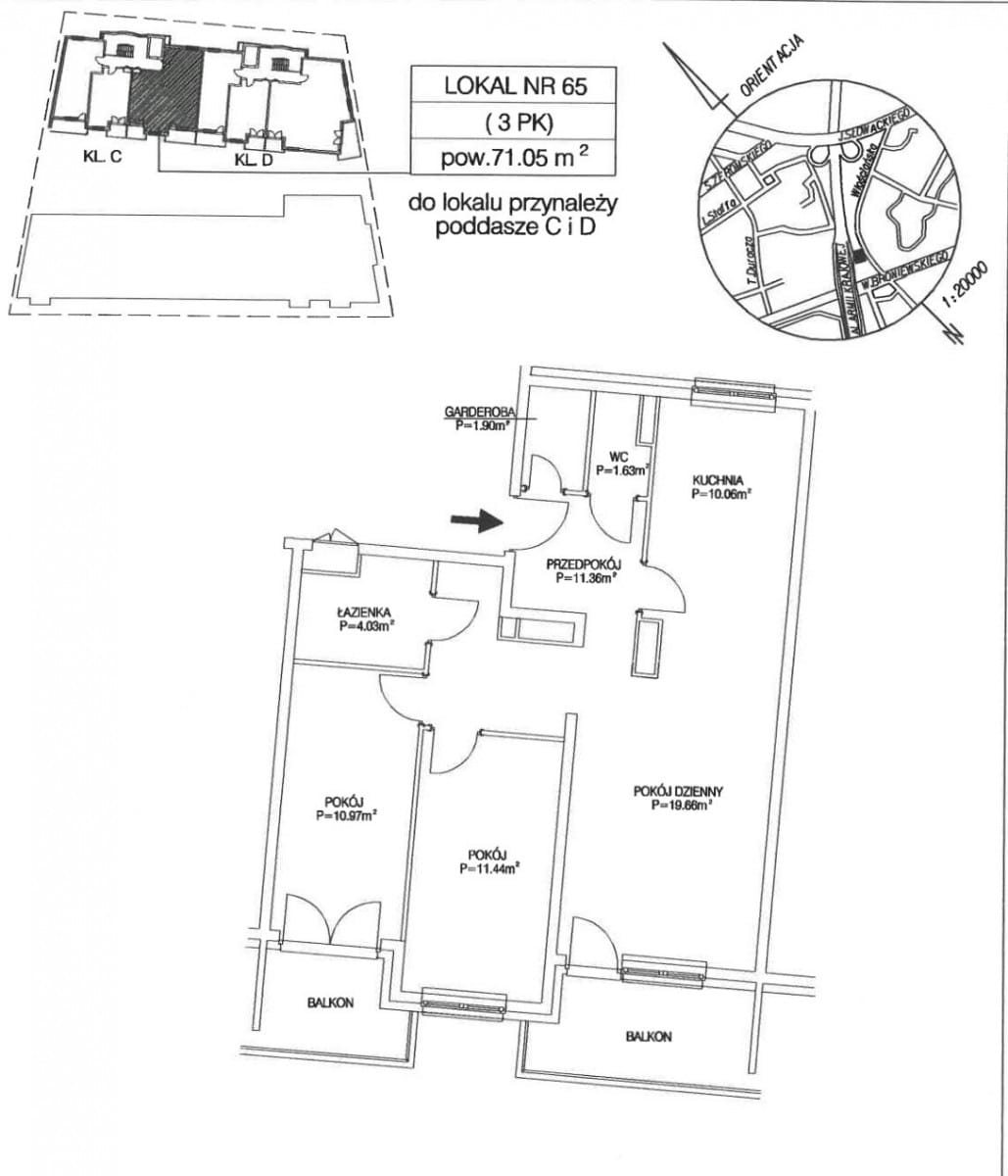
1/11

3 000 000 PLN WYŁĄCZNOŚĆ   

Wyjątkowa okazja - 234 m² - 10 sypialni - dwupoziomowy kompleks pokoi na wynajem przy ul. Włościańskiej 15

Szukasz nieruchomości, która zarabia od pierwszego dnia i daje ogromny potencjał wzrostu po remoncie?

To oferta, która na warszawskim rynku pojawia się ekstremalnie rzadko.

Co oferujemy?
Dwupoziomowe, 234-metrowe mieszkanie położone na 8. i 9. piętrze nowoczesnego budynku z 2009 roku — z windą.

Nieruchomość aktualnie funkcjonuje jak inwestycyjny kompleks najmu

Istnieje możliwość rozdzielenia mieszkania na conajmniej dwie oddzielne nieruchomości

10 osobnych pokoi do wynajęcia
Pokoje mieszczą od 1 do 3 najemców jednocześnie — łącznie nieruchomość swobodnie pomieści nawet 16 najemców jednocześnie.

Część pokoi jest już wynajmowana, co daje od razu gotowy start dla inwestora. Istnieje możliwość wprowadzenia najemców do wszystkich pokoi przed finalizacją sprzedaży.

Układ idealny pod wynajem:
- 10 pokoi do wynajęcia
- Kuchnia i jadalnia na dolnym poziomie
- 3 łazienki + 2 WC
- Część wspólna na piętrze
- 2 balkony (na niższym piętrze)

Mieszkanie jest do remontu, ale dzięki temu masz pełną swobodę stworzenia swojej wizji: możesz podnieść standard pokoi, zwiększyć liczbę najemców, a tym samym zwiększyć rentowność.

Lokalizacja, która się wynajmuje sama:
ul. Włościańska 15 to świetnie skomunikowany punkt Warszawy — blisko metra, tramwajów, sklepów, uczelni i centrów biurowych.

Grupa docelowa: studenci, młodzi pracujący, single, pary, osoby wchodzące na rynek pracy.
Ten adres to gwarancja stałego popytu.

Formalności i opłaty:
Pełna własność z księgą wieczystą
Czynsz administracyjny: 4 086 zł
Budynek z 2009 roku z windą

Dlaczego warto?
- Unikalna skala - 234 m² w jednej księdze to rzadkość
- Gotowa struktura inwestycyjna - łatwy model zarabiania
- Możliwość pełnej przebudowy i personalizacji
- Nieruchomość może zarabiać od zaraz

Idealna przestrzeń na: mini akademik, coliving, dom pracowniczy lub inwestycję hybrydową

Jeśli szukasz nieruchomości, która daje więcej niż standardowe mieszkania inwestycyjne — trafiłeś idealnie.

Zadzwoń i umów się na prezentację.



Pokaż więcejmniej  

 
Ogólne warunki:
Cena:3 000 000 PLN
Waluta:PLN
Liczba pokoi:12
Powierzchnia:234.58 m²
Cena za m2:12 789 PLN
Czynsz administracyjny:4086 zł
Rynek:Wtórny
 
Opis budynku:
Rok budowy:2008
Liczba pięter:9
Piętro:9
Stan budynku:do remontu
Winda:nie
 
Standard mieszkania:
Stan nieruchomości:do remontu
 
Pomieszczenia i pokoje:
Typ kuchni:Z oknem
 
Powierzchnia dodatkowa:
Balkon:tak
Komórka/Piwnica:nie
Loggia:nie
Ogródek:nie
Schowek:nie
Taras:nie
 
Bezpieczeństwo:
Monitoring:nie
Ochrona:nie
Teren ogrodzony:nie
 
Numer oferty:
CRM:34964537505

Pokaż więcejmniej  

Tagi

Agnieszka Rochalska

Doradca Nieruchomości



Masz pytania? Napisz!

Przepisz kod captcha:

Polecamy podobne oferty

Zapisz się na powiadomienia o podobnych ofertach

Przepisz kod captcha:

Zaktualizowaliśmy naszą Politykę Prywatności.

Nowe zapisy w Polityce Prywatności wynikają z konieczności dostosowania naszych działań oraz dokumentacji do nowych wymagań europejskiego Rozporządzenia o Ochronie Danych Osobowych (RODO), które jest stosowane od 25 maja 2018 r.

Zaawansowane