Mieszkanie 2 pokojowe na Sprzedaż

2 pokoje 52.7m²
WIELKOPOLSKIE Poznań Piątkowo os. Stefana Batorego

560 000 PLN

Hit cenowy! Rewelacyjna okolica! 52.7 m²

560 000 PLN Negocjuj cenę >

WIELKOPOLSKIE Poznań Piątkowo os. Stefana Batorego MAPA

1/16

560 000 PLN WYŁĄCZNOŚĆ   

Polecam ofertę 2 - pokojowego mieszkania położonego w Poznaniu na Piątkowie - os. Stefana Batorego. Mieszkanie znajduje się na 3 piętrze w 5 piętrowym budynku bez windy. Lokal usytułowany blisko terenów zielonych.

OPIS LOKALU
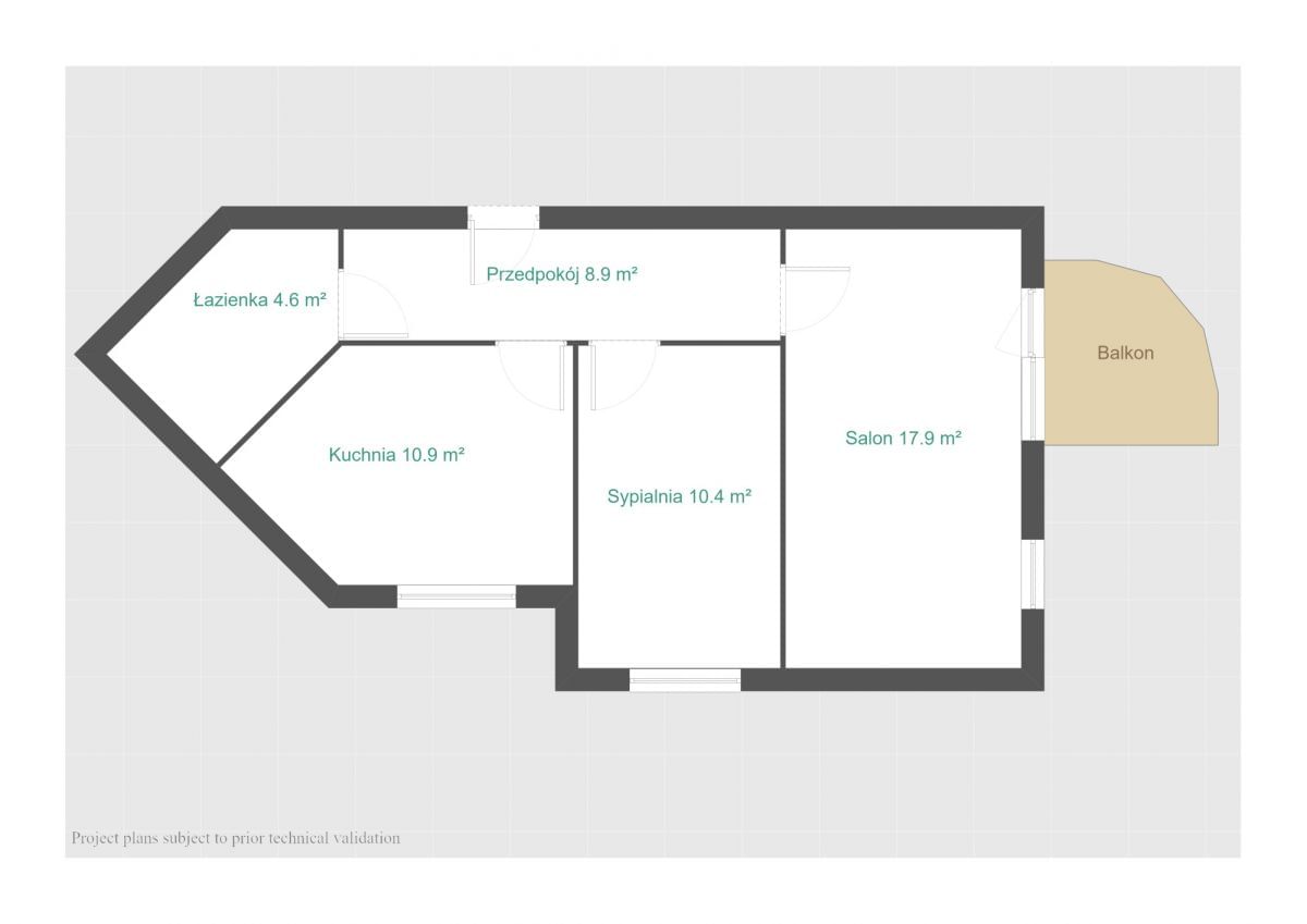
Mieszkanie o powierzchni według Księgi Wieczystej 52,70 m2 składa się z:
• salonu około 17.9 m2
• sypialni około 10.4 m2
• oddzielnej jasnej kuchni około 10.9 m2
• łazienki z toaletą około 4.6 m2
• przedpokoju około 8.9 m2

Układ mieszkania: niezależny z oddzielną, jasną kuchnią, salon z wyjściem na balkon, sypialnia, łazienka z toaleta.
Piętro: 3 w niskim 5 piętrowym bloku.
Ogrzewanie: cieplik miejski
Wystawa okien: wschód i południe
Wysokość czynszu: około 660 zł

Do lokalu przynależy:
• balkon
• piwnica

Standard wykończenia:
• podłogi - panele
• ściany - gładź gipsowa
• okna - PCV
• instalacja elektryczna miedziana

OPIS LOKALIZACJI
W bliskiej odległości znajdziemy:

• Żłobek "Pluszowy Miś" w odległości około 350m (5 min)
• Szkoła Tańca Discofox Dance School Klub Sportowy w odległości około 750m (10 min)
• Bajkowa Akademia Smyka w odległości około 900m (13 min)
• przedszkole Pluszaki w odległości około 950m (13 min)
• Szkoła Podstawowa nr 67 w odległości około 1100m (16 min)
• Morasko Campus w odległości około 1100m (16 min)

• Żabka w odległości około 180m (2 min)
• Pizzeria Rapotrius Piątkowo w odległości około 200m (3 min)
• Fawor w odległości około 650m (10 min)
• Lodolandia w odległości około 700m (10 min)

• Wielkopolskie centrum medyczne w odległości około 400m (5 min)
• Poczta Polska w odległości około 550m (8 min)
• pasaż usługowo-handowy w którym znajduje się m.in. sklep Kaufland, Drogeria Rossmann, Jysk, Kantor, Biuro podróży, kwiaciarnia itd. w
odległości około 600m (8 min)

• Plac Zabaw w odległości około 150m (2 min)
• Las w odległości około 500m (7 min)
• Kościół Narodzenia Pańskiego w Poznaniu w odległości około 850m ( 12 min)
• Pływalnia Miejska POSiR Atlantis 1200m (16 min)
• w okolicy także fryzjer, pizzeria, restauracje oraz apteki.

Komunikacja:
• linie autobusowe: 151, 185, 188, 253, 901, 902, 904 przystanek Szeligowskiego w odległości około 300m (4 min)
•linie tramwajowe: 12, 14, 15, 16, 42, 201, 202 przystanek Szymanowskiego w odległości około 550m (8 min)

FORMA WŁASNOŚCI - spółdzielczo własnościowe prawo do lokalu z Księgą Wieczystą.

CENA - 560 000 zł

SERDECZNIE ZAPRASZAMY NA PREZENTACJE!
Informacja dla pośredników - współpracujemy przy każdej ofercie.



Pokaż więcejmniej  

 
Ogólne warunki:
Cena:560 000 PLN
Waluta:PLN
Liczba pokoi:2
Powierzchnia:52.7 m²
Cena za m2:10 626 PLN
Czynsz administracyjny:660 zł
Rynek:Wtórny
 
Opis budynku:
Rodzaj budynku:Blok mieszkalny
Rok budowy:2000
Liczba pięter:5
Piętro:3
Stan budynku:dobry
Winda:nie
 
Standard mieszkania:
Stan nieruchomości:dobry
Rodzaj ogrzewania:CO miejskie
 
Pomieszczenia i pokoje:
Typ kuchni:Zamykana z oknem
 
Powierzchnia dodatkowa:
Balkon:tak
Komórka/Piwnica:tak
Loggia:nie
Ogródek:nie
Schowek:nie
Taras:nie
 
Bezpieczeństwo:
Monitoring:nie
Ochrona:nie
Teren ogrodzony:nie
 
Numer oferty:
CRM:34964535335

Pokaż więcejmniej  

Tagi

Masz pytania? Napisz!

Polecamy podobne oferty

Zapisz się na powiadomienia o podobnych ofertach

Zaktualizowaliśmy naszą Politykę Prywatności.

Nowe zapisy w Polityce Prywatności wynikają z konieczności dostosowania naszych działań oraz dokumentacji do nowych wymagań europejskiego Rozporządzenia o Ochronie Danych Osobowych (RODO), które jest stosowane od 25 maja 2018 r.

Zaawansowane