Lokal użytkowy  pokojowe na Wynajem

pokoje 52.7m²
MAZOWIECKIE Warszawa Ursynów ul. Belgradzka

5 200 PLN

Lokal do wynajęcia Belgradzka, Warszawa 52.7 m²

5 200 PLN Negocjuj cenę >

MAZOWIECKIE Warszawa Ursynów ul. Belgradzka MAPA

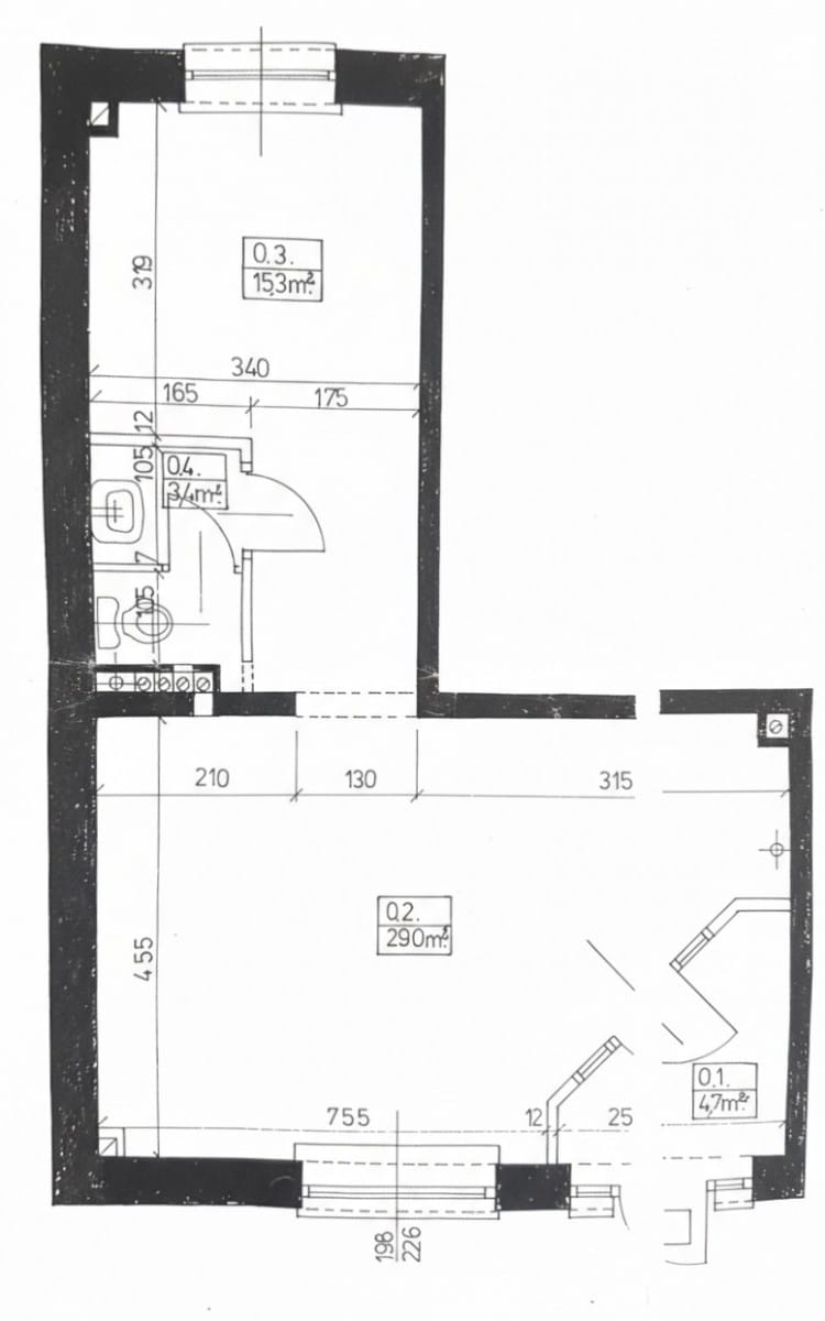
1/13

5 200 PLN WYŁĄCZNOŚĆ   

Na wynajem lokal usługowo-handlowy o powierzchni 52,70 m², zlokalizowany w bezpośrednim sąsiedztwie stacji metra Metro Natolin oraz przystanku autobusowego.

Doskonała ekspozycja i stały przepływ pieszych gwarantują świetną widoczność oraz potencjał biznesowy.

Lokal znajduje się na parterze budynku, posiada dużą witrynę od strony ruchliwej ulicy, co zapewnia naturalne doświetlenie wnętrza oraz bardzo dobrą przestrzeń reklamową.

Lokal posiada dwa pomieszczenia, schowek , przedsionek i łazienkę - rzut w galerii zdjęć.

W budynku funkcjonują m.in. Carrefour, sklep odzieżowy, biuro podróży oraz szkoła językowa, co dodatkowo generuje stały ruch klientów.
Parking ogólnodostępny obok lokalu, jak również dostęp do parkingu osiedlowego za szlabanem.

WARUNKI NAJMU:
Czynsz najmu: 5200 zł + VAT
Czynsz do administracji ok 900 zł w zależności od zużycia mediów
Prąd
Kaucja: 7000 zł
Długoś okresu najmu do ustalenia.

Lokal dostępny od zaraz.
Zapraszam do kontaktu i na prezentację - to miejsce z potencjałem w jednej z najlepiej skomunikowanych części Ursynowa.



Pokaż więcejmniej  

 
Ogólne warunki:
Rynek:Wtórny
Cena:5 200 PLN
Waluta:PLN
Powierzchnia:52.7 m²
Cena za m2:99 PLN
 
Opis budynku:
Liczba pięter:3
Winda:nie
 
Bezpieczeństwo:
Monitoring:nie
Ochrona:nie
 
Powierzchnia dodatkowa:
Balkon:nie
Komórka/Piwnica:nie
Loggia:nie
 
Numer oferty:
CRM:34964542997

Pokaż więcejmniej  

Roberto Sochaj

Pośrednik w Obrocie Nieruchomościami



Masz pytania? Napisz!

Przepisz kod captcha:

Polecamy podobne oferty

Zapisz się na powiadomienia o podobnych ofertach

Przepisz kod captcha:

Zaktualizowaliśmy naszą Politykę Prywatności.

Nowe zapisy w Polityce Prywatności wynikają z konieczności dostosowania naszych działań oraz dokumentacji do nowych wymagań europejskiego Rozporządzenia o Ochronie Danych Osobowych (RODO), które jest stosowane od 25 maja 2018 r.

Zaawansowane