Mieszkanie 2 pokojowe na Sprzedaż

2 pokoje 53.73m²
MAZOWIECKIE Warszawa Żoliborz ul. Włościańska

790 000 PLN

Mieszkanie przy Metrze Marymont | KW | Garaż 53.73 m²

790 000 PLN Negocjuj cenę >

MAZOWIECKIE Warszawa Żoliborz ul. Włościańska MAPA

1/9

790 000 PLN WYŁĄCZNOŚĆ   

Na sprzedaż przestronne i słoneczne mieszkanie na Żoliborzu

Zapraszam do zapoznania się z ofertą dwupokojowego mieszkania przy ul. Włościańskiej 15!

To idealna propozycja dla osób ceniących przestrzeń, świetną komunikację oraz bliskość terenów zielonych. Mieszkanie jest jasne, narożne i ma bardzo funkcjonalny układ, dając wiele możliwości aranżacyjnych.

Najważniejsze informacje:
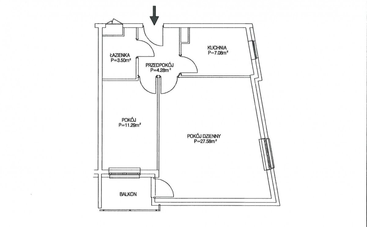
- Powierzchnia: 53,73 m²
- Liczba pokoi: 2
- Kuchnia: Oddzielna, z oknem
- Łazienka: Możliwość rozmieszczenia wanny

Ekspozycja okien:
Południowy zachód i południowy wschód - mieszkanie pełne naturalnego światła przez większość dnia!

Balkon:
Przestronna, niezabudowana loggia z widokiem na zieleń - idealne miejsce na poranną kawę czy odpoczynek po pracy.

Stan:
Do remontu - możliwość dostosowania wnętrza do swoich potrzeb!
Białe ściany stanowią wizualizację, aktualnie są słoneczno żółte :)

Budynek i udogodnienia:
- Mieszkanie znajduje się na 2. piętrze z 4 w budynku z 2009 roku.
- W dalszej perspektywie w planach budowa windy, która podniesie wartość nieruchomości o min. 30 000 zł, a także zwiększy komfort
- Bezpłatny parking naziemny z kartą mieszkańca.
- Możliwość dokupienia dwóch miejsc parkingowych w garażu podziemnym.

Lokalizacja - wszystko w zasięgu ręki!

Mieszkanie znajduje się w zielonej i doskonale skomunikowanej części Żoliborza.

Komunikacja:
Metro Marymont oraz przystanki tramwajowe i autobusowe w zasięgu 5-minutowego spaceru. Szybki dojazd do centrum - około 15 minut. W pobliżu również wjazd na S8, jednak mieszkanie pozostaje ciche.

Rekreacja:
Bliskość terenów zielonych: Glinianki Włościańskie, Park Olszyna, Park im. Zbigniewa Herberta - idealne miejsca na spacery, jogging czy odpoczynek.

Usługi i handel:
Galeria Żoliborz (Auchan, Rossmann, Pepco) - 280 m, Biedronka - 1 km, apteka - 450 m.

Pełna własność z Księgą Wieczystą - możliwość zakupu na kredyt. Nasz Doradca Kredytowy z chęcią pomoże przejść przez cały proces kredytowania bez stresu.

Cena: 790 000 zł

Czynsz administracyjny: 1090 zł/msc

Dodatkowe atuty:
Sprawdza się zarówno dla par, małej rodziny, jak i singla szukającego przestronnego mieszkania.

Nie przegap tej okazji!



Pokaż więcejmniej  

 
Ogólne warunki:
Cena:790 000 PLN
Waluta:PLN
Liczba pokoi:2
Powierzchnia:53.73 m²
Cena za m2:14 703 PLN
Czynsz administracyjny:1090 zł
Rynek:Wtórny
 
Opis budynku:
Liczba pięter:4
Piętro:2
Stan budynku:do remontu
Winda:nie
 
Standard mieszkania:
Stan nieruchomości:do remontu
 
Powierzchnia dodatkowa:
Balkon:tak
Komórka/Piwnica:nie
Loggia:nie
Ogródek:nie
Schowek:nie
Taras:nie
 
Bezpieczeństwo:
Monitoring:nie
Ochrona:nie
Teren ogrodzony:nie
 
Numer oferty:
CRM:34964534384

Pokaż więcejmniej  

Tagi

Agnieszka Rochalska

Doradca Nieruchomości



Masz pytania? Napisz!

Polecamy podobne oferty

Zapisz się na powiadomienia o podobnych ofertach

Zaktualizowaliśmy naszą Politykę Prywatności.

Nowe zapisy w Polityce Prywatności wynikają z konieczności dostosowania naszych działań oraz dokumentacji do nowych wymagań europejskiego Rozporządzenia o Ochronie Danych Osobowych (RODO), które jest stosowane od 25 maja 2018 r.

Zaawansowane