Mieszkanie 4 pokojowe na Sprzedaż

4 pokoje 122.81m²
MAZOWIECKIE Warszawa Mokotów ul. Jana III Sobieskiego

1 999 000 PLN

Mokotów przy Parku,4 Pokoje, 2 M. Postojowe 122.81 m²

1 999 000 PLN Negocjuj cenę >

MAZOWIECKIE Warszawa Mokotów ul. Jana III Sobieskiego MAPA

1/22

1 999 000 PLN WYŁĄCZNOŚĆ   

Mieszkanie z potencjałem w sercu Mokotowa — idealne dla rodziny lub na cele biurowe


Mam przyjemność zaprezentować przestronne, 4-pokojowe mieszkanie o powierzchni 122,81 m², położone na 2. piętrze nowoczesnego budynku z windą i parkingiem podziemnym. Inwestycja znajduje się przy ul. Jana III Sobieskiego, na prestiżowym Mokotowie — jednej z najbardziej pożądanych dzielnic Warszawy, łączącej miejski styl życia z parkowym spokojem.


Wyjątkowa lokalizacja
Nieruchomość sąsiaduje bezpośrednio z Parkiem Sieleckim, a w promieniu kilometra znajdują się również Łazienki Królewskie, Park Arkadia i Park Morskie Oko. To idealne miejsce dla osób ceniących zieleń, spacery i rekreację na świeżym powietrzu.

Dojazd do ścisłego centrum Warszawy zajmuje zaledwie 15 minut — dzięki licznym liniom autobusowym oraz nowo-powstałej linii tramwajowej przy ul. Sobieskiego, która dodatkowo usprawniła komunikację. W odległości 2 km znajduje się stacja metra Racławicka.


W najbliższym otoczeniu dostępna jest pełna infrastruktura — sklepy, restauracje, kawiarnie, punkty usługowe, placówki medyczne i edukacyjne wszystkich szczebli.


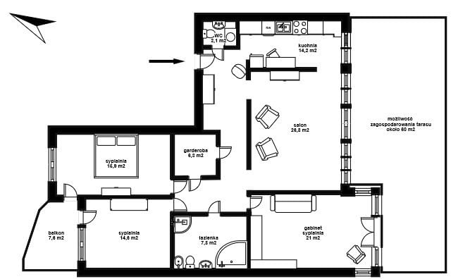
Układ i wyposażenie mieszkania
- Salon (26,78 m²) - przestronny i doskonale doświetlony, z wyjściem na balkon

- Kuchnia (ok. 14,18 m²) - widna, w pełni wyposażona w sprzęt AGD (zmywarka, płyta indukcyjna, piekarnik)

- Dwie sypialnie (15,91 m² i 14,6 m²) - z wyjściem na 7-metrowy balkon

- Trzecia sypialnia / pracownia - z ogrodem zimowym, obecnie zaadaptowana na atelier

- Łazienka (7,75 m²) - z wanną, prysznicem, toaletą i bidetem

- Dodatkowa toaleta

- Garderoba (2,9 m²) - pojemna i funkcjonalna

- Przestronny przedpokój z korytarzem


Dodatkowe atuty
- 2 miejsca postojowe w hali garażowej (płatne dodatkowo 60 000 zł każde)

- Balkon (7,46 m²)

- Możliwość korzystania z dużego tarasu o powierzchni ok. 60 m²

- Osiedle zamknięte i strzeżone, zapewniające komfort i bezpieczeństwo


Stan techniczny
Mieszkanie jest gotowe do zamieszkania, jednak wymaga odświeżenia lub własnej aranżacji, zgodnie z potrzebami nowego właściciela.
Na podłogach znajdują się parkiet oraz płytki ceramiczne, a kuchnia wyposażona jest w drewnianą zabudowę.
W jednej z sypialni umieszczono elegancką, przeszkloną witrynę na książki, która dodaje wnętrzu charakteru i funkcjonalności.


Możliwości adaptacji

Dzięki powierzchni i rozkładowi lokal świetnie sprawdzi się nie tylko jako komfortowe mieszkanie rodzinne, ale również jako kancelaria, atelier, gabinet lub biuro.




Pokaż więcejmniej  

 
Ogólne warunki:
Cena:1 999 000 PLN
Waluta:PLN
Liczba pokoi:4
Powierzchnia:122.81 m²
Cena za m2:16 277 PLN
Czynsz administracyjny:2000 zł
Rynek:Wtórny
 
Opis budynku:
Rok budowy:1998
Liczba pięter:6
Piętro:2
Stan budynku:do odświeżenia
Winda:nie
 
Standard mieszkania:
Stan nieruchomości:do odświeżenia
 
Pomieszczenia i pokoje:
Typ kuchni:Z oknem otwarta na salon
 
Powierzchnia dodatkowa:
Balkon:tak
Komórka/Piwnica:nie
Loggia:nie
Ogródek:nie
Schowek:nie
Taras:tak
 
Bezpieczeństwo:
Monitoring:nie
Ochrona:nie
Teren ogrodzony:nie
 
Numer oferty:
CRM:34964533760

Pokaż więcejmniej  

Tagi

Roberto Sochaj

Pośrednik w Obrocie Nieruchomościami



Masz pytania? Napisz!

Polecamy podobne oferty

Zapisz się na powiadomienia o podobnych ofertach

Zaktualizowaliśmy naszą Politykę Prywatności.

Nowe zapisy w Polityce Prywatności wynikają z konieczności dostosowania naszych działań oraz dokumentacji do nowych wymagań europejskiego Rozporządzenia o Ochronie Danych Osobowych (RODO), które jest stosowane od 25 maja 2018 r.

Zaawansowane