Mieszkanie 2 pokojowe na Sprzedaż

2 pokoje 56.7m²
DOLNOŚLĄSKIE Wrocław Stare Miasto ul. Krawiecka

870 500 PLN

Na sprzedaż apartament w samym centrum Wrocławia! 56.7 m²

870 500 PLN Negocjuj cenę >

DOLNOŚLĄSKIE Wrocław Stare Miasto ul. Krawiecka MAPA

1/16

870 500 PLN WYŁĄCZNOŚĆ   

Na sprzedaż apartament przy ulicy Krawieckiej (Justin Center) we Wrocławiu.

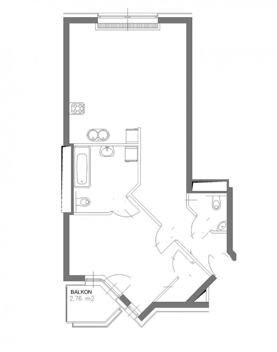
Mieszkanie składa się z dużego salonu z aneksem kuchennym (25,46 m2), sypialni (14,05 m2) z balkonem (2,76m2), przedpokoju (3,5 m2), garderoby (1,68 m2), łazienki z WC (6,65 m2) oraz dodatkowej toalety (1,94 m2). 

W budynku (który ma 7 kondygnacji naziemnych oraz 2 podziemne) znajdują się windy, ochrona fizyczna wraz z recepcją, wewnętrzne patio dla mieszkańców oraz garaże podziemne wraz z komórkami lokatorskimi. 

Świetna lokalizacja do życia, jak i na inwestycje - apartamenty w tym budynku są wynajmowane w cenie 400 zł / dobę. Dodatkowo w najbliżej okolicy ogromny wybór punktów usługowych, handlowych i rozrywkowych. Na parterze budynku znajdują się lokale komercyjne, naprzeciwko jest Galeria Dominikańska wraz z OVO i parkiem, natomiast w odległości 80 metrów mamy płytę rynku.

Cena mieszkania wraz z komórką lokatorską wynosi jedyne 870 500 zł.



Pokaż więcejmniej  

 
Ogólne warunki:
Cena:870 500 PLN
Waluta:PLN
Liczba pokoi:2
Powierzchnia:56.7 m²
Cena za m2:15 353 PLN
Rynek:Wtórny
 
Opis budynku:
Rodzaj budynku:Apartamentowiec
Rok budowy:2009
Liczba pięter:7
Piętro:5
Stan budynku:bardzo dobry
Winda:tak
 
Standard mieszkania:
Stan nieruchomości:bardzo dobry
Rodzaj ogrzewania:CO miejskie
 
Pomieszczenia i pokoje:
Typ kuchni:Aneks kuchenny
 
Powierzchnia dodatkowa:
Balkon:tak
Komórka/Piwnica:nie
Loggia:nie
Ogródek:nie
Schowek:tak
Taras:nie
 
Bezpieczeństwo:
Monitoring:nie
Ochrona:tak
Teren ogrodzony:nie
 
Numer oferty:
CRM:34964537372

Pokaż więcejmniej  

Tagi

Masz pytania? Napisz!

Polecamy podobne oferty

Zapisz się na powiadomienia o podobnych ofertach

Zaktualizowaliśmy naszą Politykę Prywatności.

Nowe zapisy w Polityce Prywatności wynikają z konieczności dostosowania naszych działań oraz dokumentacji do nowych wymagań europejskiego Rozporządzenia o Ochronie Danych Osobowych (RODO), które jest stosowane od 25 maja 2018 r.

Zaawansowane