Mieszkanie 1 pokojowe na Sprzedaż

1 pokoje 28.4m²
MAZOWIECKIE Warszawa Targówek Bródno

440 000 PLN

Przytulna kawalerka po remoncie 28.4 m²

440 000 PLN Negocjuj cenę >

MAZOWIECKIE Warszawa Targówek Bródno MAPA

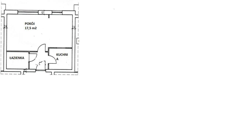
1/8

440 000 PLN WYŁĄCZNOŚĆ   

Do sprzedaży przytulna kawalerka na Bródnie, ul. Łojewska .
OPIS
Mieszkanie po remoncie.
Duży pokój z dwoma oknami. Bardzo słoneczny. Bez problemu mogą powstać 2 oddzielne pokoje. Na podłodze parkiet (mozaika) w bardzo dobrym stanie.
Kuchnia ciemna, wyposażona meble w zabudowie w b. dobrym stanie. Sprzęt agd w bardzo dobrym stanie, sprawny.
Łazienka - kabina prysznicowa oraz pralka w b. dobrym stanie.
Mieszkanie po remoncie, gotowe do wprowadzenia, bez dodatkowych nakładów.
Możliwość zakupu na kredyt - grunty uregulowane. KW

LOKALIZACJA
Doskonała lokalizacja zarówno pod względem komunikacyjnym jak również infrastruktury.
W pobliżu szkoła podstawowa , przedszkole, żłobek, park brudnowski, las bródnowski , szpital.
Komunikacja:
metro, autobus, tramwaj






Pokaż więcejmniej  

 
Ogólne warunki:
Cena:440 000 PLN
Waluta:PLN
Liczba pokoi:1
Powierzchnia:28.4 m²
Cena za m2:15 493 PLN
Rynek:Wtórny
Stan prawny:
 
Opis budynku:
Rok budowy:1971
Liczba pięter:4
Piętro:3
Stan budynku:dobry
Winda:nie
 
Standard mieszkania:
Stan nieruchomości:dobry
 
Powierzchnia dodatkowa:
Balkon:nie
Komórka/Piwnica:nie
Loggia:nie
Ogródek:nie
Schowek:nie
Taras:nie
 
Bezpieczeństwo:
Monitoring:nie
Ochrona:nie
Teren ogrodzony:nie
 
Numer oferty:
CRM:34964533035

Pokaż więcejmniej  

Agnieszka Gozdek

Pośrednik w Obrocie Nieruchomościami



Masz pytania? Napisz!

Polecamy podobne oferty

Zapisz się na powiadomienia o podobnych ofertach

Zaktualizowaliśmy naszą Politykę Prywatności.

Nowe zapisy w Polityce Prywatności wynikają z konieczności dostosowania naszych działań oraz dokumentacji do nowych wymagań europejskiego Rozporządzenia o Ochronie Danych Osobowych (RODO), które jest stosowane od 25 maja 2018 r.

Zaawansowane