Dom 5 pokojowe na Sprzedaż

5 pokoje 154.05m²
WIELKOPOLSKIE Poznań Morasko ul. Przedwiośnia

1 659 000 PLN

Rodzinny spokój na Morasku – przestrzeń i przyroda 154.05 m²

1 659 000 PLN Negocjuj cenę >

WIELKOPOLSKIE Poznań Morasko ul. Przedwiośnia MAPA

1/24

1 659 000 PLN WYŁĄCZNOŚĆ   

DOM, w którym każdy dzień daje poczucie swobody i komfortu w otoczeniu przyrody, a jednocześnie korzyści z miejskich udogodnień.
Nieruchomość jest idealna dla rodziny, która ceni przestrzeń, prywatność i bliskość natury.

Dom o powierzchni 154 m² na działce 670 m²

Bliźniak, połączony z sąsiadem tylko ścianą garażową, co daje pełną prywatność i komfort jak w domu wolnostojącym.

Położony przy cichej, nieprzejezdnej ulicy, w zielonej okolicy.

Blisko szkoły, przedszkola i żłobki - idealne dla rodziny z dziećmi.

W pobliżu Rezerwat Meteoryt Morasko - idealne miejsce na spacery i aktywny wypoczynek

Funkcjonalny układ wnętrza:

Parter:
- Przestronny hol z klatką schodową

- Gabinet / pokój gościnny

- Jasny salon z kominkiem i wyjściem na taras

- Funkcjonalna kuchnia połączona z salonem

- Łazienka

- Pralnia z osobnym wyjściem na ogród

- Garaż w bryle budynku

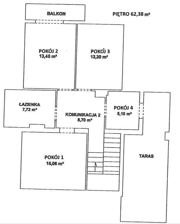
Piętro:

- przestronny hol

- 4 pokoje (w tym jeden z balkonem, drugi z tarasem)

- Łazienka

Możliwość adaptacji poddasza na dodatkowy pokój lub miejsce zabaw

Wnętrze domu utrzymane jest w nowoczesnym stylu z klasycznymi akcentami i eleganckimi wykończeniami, tworząc przytulną i funkcjonalną przestrzeń.
Dom jest w dobrym stanie technicznym, jednak wymaga odświeżenia według indywidualnych potrzeb nabywcy. Wnętrze do dopasowania własnego gustu i stylu życia.

Udogodnienia i atuty:

Ogrzewanie podłogowe na parterze i częściowo na piętrze zasilane kotłem gazowym.

Kominek w salonie 

Rolety w całym domu

Światłowód

Miejsca postojowe na 3 auta

Nasłoneczniony ogród z dojrzałą zielenią - idealny do zabawy dla dzieci i rodzinnego wypoczynku

Gotowa przestrzeń do życia, nauki, zabawy i odpoczynku - wnętrza pełne światła czekają, by nadać im Twój własny charakter.
Zapraszam



Pokaż więcejmniej  

 
Ogólne warunki:
Rynek:Wtórny
Cena:1 659 000 PLN
Waluta:PLN
Cena za m2:10 769 PLN
Liczba pokoi:5
 
Standard domu:
Stan budynku:dobry
Rok budowy:2013
Liczba pięter:1
 
Bezpieczeństwo:
Monitoring:nie
Teren strzeżony:nie
 
Media:
Rodzaj ogrzewania:Gazowe
 
Pomieszczenia i pokoje:
Typ kuchni:Z oknem otwarta na salon
 
Numer oferty:
CRM:34964534609

Pokaż więcejmniej  

Tagi

Masz pytania? Napisz!

Polecamy podobne oferty

Zapisz się na powiadomienia o podobnych ofertach

Zaktualizowaliśmy naszą Politykę Prywatności.

Nowe zapisy w Polityce Prywatności wynikają z konieczności dostosowania naszych działań oraz dokumentacji do nowych wymagań europejskiego Rozporządzenia o Ochronie Danych Osobowych (RODO), które jest stosowane od 25 maja 2018 r.

Zaawansowane