Dom 6 pokojowe na Sprzedaż

6 pokoje 226.4m²
MAZOWIECKIE otwocki ul. Tatrzańska

2 990 000 PLN

Smart home w otoczeniu lasu Józefów 226.4 m²

2 990 000 PLN Negocjuj cenę >

MAZOWIECKIE otwocki ul. Tatrzańska MAPA

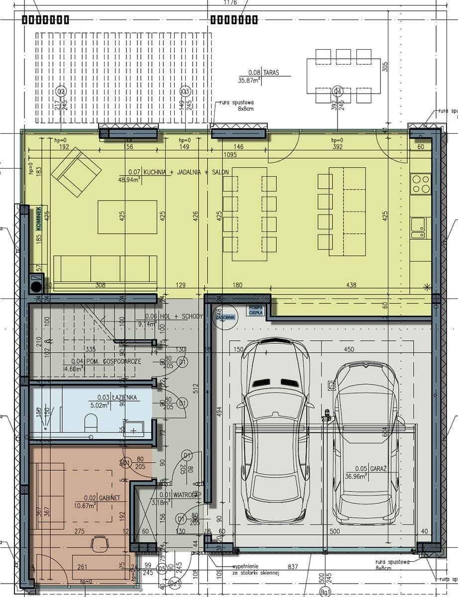
1/20

2 990 000 PLN WYŁĄCZNOŚĆ   

LUKSUSOWA REZYDENCJA | LAS | GOTOWA DO ZAMIESZKANIA

Na sprzedaż nowoczesny, nigdy niezamieszkany dom wolnostojący o powierzchni 226 m², usytuowany na działce 1001 m² w prestiżowej Ostoi Leśnej w Józefowie. Nieruchomość została wykończona „pod klucz” z materiałów najwyższej jakości i wyróżnia się panoramicznymi przeszkleniami z widokiem na malowniczy las. 

Strefa dzienna obejmuje przestronny salon połączony z jadalnią i kuchnią, gabinet, łazienkę oraz reprezentacyjny hol. Na piętrze znajdują się: sypialnia master z prywatną łazienką, garderobą i tarasem, dwie dodatkowe sypialnie, pokój rekreacyjny, łazienka oraz pralnia. W bryle budynku zaprojektowano garaż na dwa samochody.

Dom wykończono w standardzie premium: dębowe podłogi ułożone w jodełkę, aluminiowa stolarka okienna, przesuwne systemy HS, kuchnia i zabudowy wykonane na wymiar, sprzęt AGD najwyższej klasy, wielkoformatowe gresy, granit oraz beton strukturalny. W salonie oraz sypialni master zainstalowano klimatyzację i telewizory.

Nieruchomość wyposażona jest w nowoczesne rozwiązania ekologiczne: pompę ciepła, rekuperację, przygotowanie pod instalację fotowoltaiczną, ogrzewanie podłogowe oraz instalację do ładowania samochodu elektrycznego. Ogród obsługiwany jest przez automatyczny system nawadniania.

Osiedle stanowi kameralną, zamkniętą enklawę czterech willi, położoną w otoczeniu Mazowieckiego Parku Krajobrazowego, z szybkim dojazdem do Warszawy (ok. 20 minut pociągiem, dogodny dostęp do trasy S2). W pobliżu znajdują się szkoły, sklepy, restauracje oraz tereny rekreacyjne.



Pokaż więcejmniej  

 
Ogólne warunki:
Rynek:Wtórny
Cena:2 990 000 PLN
Waluta:PLN
Cena za m2:13 207 PLN
Liczba pokoi:6
 
Standard domu:
Stan budynku:idealny
Rok budowy:2024
Liczba pięter:2
 
Bezpieczeństwo:
Monitoring:nie
Teren strzeżony:nie
 
Media:
Rodzaj ogrzewania:Pompa ciepła
 
Pomieszczenia i pokoje:
Typ kuchni:Z oknem otwarta na salon
 
Numer oferty:
CRM:34964548524

Pokaż więcejmniej  

Tagi

Masz pytania? Napisz!

Przepisz kod captcha:

Polecamy podobne oferty

Zapisz się na powiadomienia o podobnych ofertach

Przepisz kod captcha:

Zaktualizowaliśmy naszą Politykę Prywatności.

Nowe zapisy w Polityce Prywatności wynikają z konieczności dostosowania naszych działań oraz dokumentacji do nowych wymagań europejskiego Rozporządzenia o Ochronie Danych Osobowych (RODO), które jest stosowane od 25 maja 2018 r.

Zaawansowane