Dom 5 pokojowe na Sprzedaż

5 pokoje 206.83m²
WIELKOPOLSKIE poznański ul. Polna

1 449 000 PLN

Dom na sprzedaż 5 pokoje Polna, Golęczewo 206.83 m²

1 449 000 PLN Negocjuj cenę >

WIELKOPOLSKIE poznański ul. Polna MAPA

1/18

1 449 000 PLN WYŁĄCZNOŚĆ   

Golęczewo | dom wolnostojący | 5 pokoi | garaż wolnostojący

::O nieruchomości::

-dom wolnostojący z 2019 roku
-powierzchnia użytkowa około 206,83 mkw plus dodatkowo garaż wolnostojący o powierzchni około 34 mkw.
-działka 765 mkw.
-dom nigdy nie zamieszkały, w idealnym stanie, wnętrze domu w pełni wykończone, wystarczy wstawić meble
-przygotowana instalacja pod centralny odkurzacz
-wysokiej jakości materiały, dom budowano dla własnych potrzeb
-drewniane podłogi (bambus) na parterze+gres, na piętrze panele
-drzwi wewnętrzne drewniane
-ocieplenie domu styropian 12 cm
-ogrzewanie gazowe, kocioł 2 funkcyjny z zasobnikiem na wodę 150 l firmy Viessmann 
-część parteru plus łazienki ogrzewanie podłogowe
-w salonie kominek spełniający aktualne normy Ekoprojektu
-na parterze okna plastikowe dwuszybowe, ramy pięciokomorowe z wbudowaną wentylacją
-w oknach na parterze rolety sterowane elektrycznie
-na piętrze okna drewniane Fakro wyposażone w rolety
-pokrycie dachu dachówka cementowa
-pełna media w tym kanalizacja
-na terenie posesji dwa zbiorniki, betonowe (prefabrykowane, woda używana do podlewania ogrodu) 10m3 i plastikowe 6m3 (podłączona deszczówka)
-do zagospodarowania teren wokół domu plus położenie tzw baranka na elewacji (posiadamy na to aktualną wycenę)
-dom w bardzo dobrym stanie technicznym, dla zainteresowanych zakupem udostępniamy wszystkie aktualne przeglądy (kominiarski, gazowy, budowlany, elektryczny, świadectwo charakterystyki energetycznej)


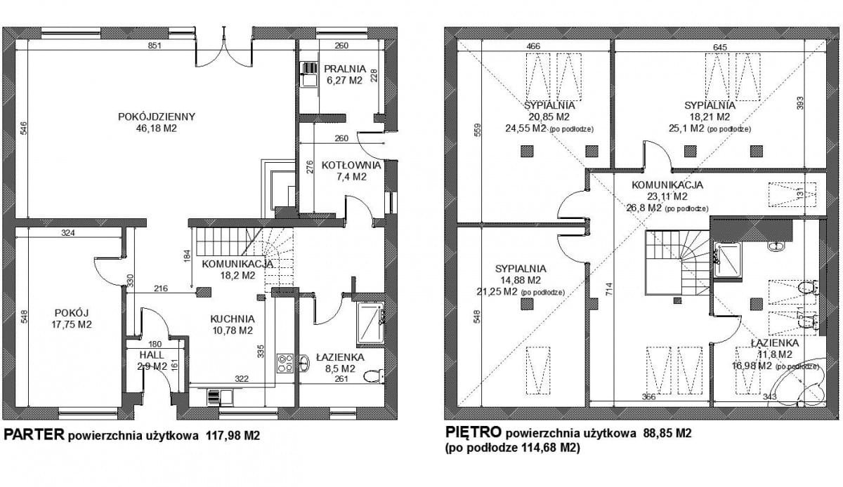
::Układ domu::

Parter około 117,98 mkw.

-salon+jadalnia 46,18 mkw.
-kuchnia 10,78 mkw.
-pokój/sypialnia 17,75 mkw.
-wiatrołap 2,9 mkw.
-łazienka z prysznicem 8,5 mkw.
-kotłownia 7,4 mkw.
-pralnia 6,27 mkw.
-komunikacja 18,2 mkw.

Piętro około 88,85 mkw.

sypialnia 20,85 mkw.
sypialnia 18,21 mkw.
sypialnia 14,88 mkw.
łazienka z prysznicem i wanną 11,8 mkw.
komunikacja 23,11 mkw.

Strych nieużytkowy


::Lokalizacja::

-10 minut pieszo (800m) stacja PKP, dojazd kolejką podmiejską na stację Poznań Główny 20 minut
-komunikacja autobusowa
-około 3 km zjazd na S11
-w Golęczewie żłobek, przedszkole, szkoła podstawowa klasy 1-3


Powyższy opis ma charakter informacyjny i nie stanowi oferty w rozumieniu przepisów Kodeksu Cywilnego. Informacja przekazana w ogłoszeniu jest dokładna i rzetelna, ale nie jest gwarantowana i powinna zostać niezależnie zweryfikowana.



Pokaż więcejmniej  

 
Ogólne warunki:
Rynek:Wtórny
Cena:1 449 000 PLN
Waluta:PLN
Cena za m2:7 006 PLN
Liczba pokoi:5
 
Standard domu:
Stan budynku:bardzo dobry
Rok budowy:2019
Liczba pięter:1
 
Bezpieczeństwo:
Monitoring:nie
Teren strzeżony:nie
 
Media:
Rodzaj ogrzewania:Gazowe
 
Pomieszczenia i pokoje:
Typ kuchni:Z oknem
 
Numer oferty:
CRM:34964543707

Pokaż więcejmniej  

Tagi

Masz pytania? Napisz!

Przepisz kod captcha:

Polecamy podobne oferty

Zapisz się na powiadomienia o podobnych ofertach

Przepisz kod captcha:

Zaktualizowaliśmy naszą Politykę Prywatności.

Nowe zapisy w Polityce Prywatności wynikają z konieczności dostosowania naszych działań oraz dokumentacji do nowych wymagań europejskiego Rozporządzenia o Ochronie Danych Osobowych (RODO), które jest stosowane od 25 maja 2018 r.

Zaawansowane