Dom  pokojowe na Sprzedaż

pokoje 84.88m²
WIELKOPOLSKIE wągrowiecki ul. Polna

560 000 PLN

Dom na sprzedaż Polna, Skoki 84.88 m²

560 000 PLN Negocjuj cenę >

WIELKOPOLSKIE wągrowiecki ul. Polna MAPA

1/23

560 000 PLN WYŁĄCZNOŚĆ   

Marzysz o własnym domu z dala od miejskiego zgiełku, gdzie po pracy możesz się zrelaksować? Marzysz o bliskości jezior i lasów, o pieszych wycieczkach i bliskości natury? Jeśli tak, to zapraszam do domu znajdującego się w Skokach - zaledwie 17 km od Wągrowca i około 40 km od Poznania.
Dom ten jest doskonałym miejscem dla pary lub rodziny z dziećmi. Mieści się w Skokach gdzie znajdują się szkoły, przedszkola, sklepy i wszystko czego potrzebujemy, aby załatwić codzienne sprawy a jednocześnie na uboczu z dala od miejskiego zgiełku w otoczeniu natury.
A teraz kilka słów o samej nieruchomości:
Nieruchomość położona jest w cichej uliczce w niedalekiej odległości od głównej drogi asfaltowej. Dom jednorodzinny o powierzchni całkowitej 84,88 m2 leży na działce o powierzchni 350m2 i został wybudowany w 2025 roku. Składa się z 5 pokoi, 2 łazienek, aneksu kuchennego oraz pomieszczenia gospodarczego. Łazienka na parterze została wykończona na gotowo, jednak z uwagi na zmianę planów życiowych właściciele są zmuszeni do sprzedaży przedmiotowej nieruchomości.
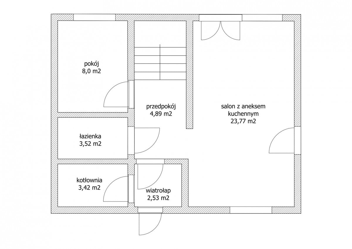
Rozkład pomieszczeń:
PARTER
Wiatrołap 2,53 m2
Przedpokój 4,89 m2
Pokój + aneks 23,77 m2
Pokój 8,00 m2
Łazienka 3,52 m2
Pomieszczenie gospodarcze 3,42 m2
PIĘTRO
Kl. schodowa 4,31 m2
Przedpokój 5,14 m2
Łazienka 4,96 m2
Pokój 1 6,92 m2
Pokój 2 8,00 m2
Pokój 3 9,42 m2
Kilka informacji technicznych
• wejście do domu wykonane z kostki brukowej z miejscem postojowym na auto oraz taras, opaska wokół budynku;
• woda miejska;
• szambo 6m3 ( w planach doprowadzenie kanalizacji miejskiej );
• ogrzewanie podłogowego parter/piętro;
• ogrzewanie : Pompa ciepła Beretta powietrze-woda Monoblok R32;
• poddasze docieplone wełną o grubości 15cm+10cm, 0,39 Climwool,
• ściany murowane z Porotherm P+W 25, ściany wewnętrzne: beton komórkowy firmy SOLBET 12x24x59;
• sufity podwieszane płyta GK Knauff ogniowa F15;
• strop Teriva firmy KONBET, pustak, beton trzykomorowy,;
• komin firmy Perfekt systemowy;
• dach betonowa dachówka Brass Lumino Celtycka, kolor antracyt;
• okna trzyszybowe kolor biały wewnątrz, kolor antracyt na zewnątrz;
• rolety zewnętrzne sterowane elektrycznie w każdym pomieszczeniu;
• elektryka kable/przewody firmy NKT;
• instalacja elektryczna, dodatkowo wyprowadzone kable pod domofon, bramę elektryczną oraz pod fotowoltaikę;
• instalacja alarmowa



Pokaż więcejmniej  

 
Ogólne warunki:
Rynek:Wtórny
Cena:560 000 PLN
Waluta:PLN
Cena za m2:6 598 PLN
 
Bezpieczeństwo:
Monitoring:nie
Teren strzeżony:nie
 
Numer oferty:
CRM:34964538445

Pokaż więcejmniej  

Masz pytania? Napisz!

Przepisz kod captcha:

Polecamy podobne oferty

Zapisz się na powiadomienia o podobnych ofertach

Przepisz kod captcha:

Zaktualizowaliśmy naszą Politykę Prywatności.

Nowe zapisy w Polityce Prywatności wynikają z konieczności dostosowania naszych działań oraz dokumentacji do nowych wymagań europejskiego Rozporządzenia o Ochronie Danych Osobowych (RODO), które jest stosowane od 25 maja 2018 r.

Zaawansowane