Działka  pokojowe na Sprzedaż

pokoje 1004m²
DOLNOŚLĄSKIE wrocławski ul. Słoneczna

299 000 PLN

Działka nad Zalewem Mietkowskim Film 1004 m²

299 000 PLN Negocjuj cenę >

DOLNOŚLĄSKIE wrocławski ul. Słoneczna MAPA

1/10

299 000 PLN WYŁĄCZNOŚĆ   

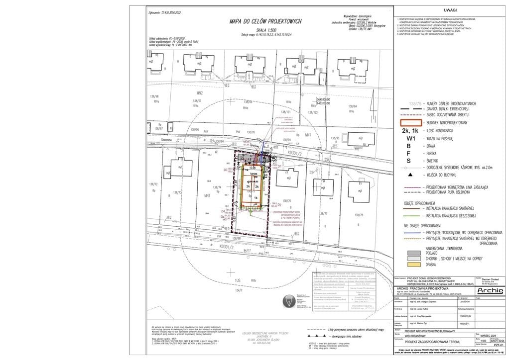
• Lokalizacja: Borzygniew, gmina Mietków
• Metraż: działka nr 138/75, powierzchnia 1004 m2,
• Zabudowa: przeznaczenie działki zgodnie z MPZP - MN1 teren zabudowy mieszkaniowej - jednorodzinnej,
• Dodatkowe informacje: media (w drodze: woda, prąd, kanalizacja).

Na sprzedaż atrakcyjna działka budowlana w Borzygniewie, położona nad samym Zalewem Mietkowskim. Spokojna lokalizacja, otoczenie nowej zabudowy jednorodzinnej, terenów rekreacyjnych oraz gotowe pozwolenie na budowę z projektem domu czynią tę ofertę wyjątkowo atrakcyjną.

To doskonałe miejsce dla osób poszukujących ciszy, przestrzeni i kontaktu z naturą ponieważ zaledwie 300 m od działki znajduje się Zalew Mietkowski z piękną plażą. Dojazd do nieruchomości prowadzi drogą gminną o utwardzonej nawierzchni, co zapewnia wygodny dostęp przez cały rok. Obecnie na działce rosną samosiejki sosnowe i drzew owocowych, które nadają jej naturalny, leśny charakter. Istnieje możliwość samodzielnej wycinki z pozostawieniem wybranych drzew, dzięki czemu przyszły właściciel może zachować część zieleni jako element ogrodu.
Wymiary działki 20 m szerokość i 50m długość.

Zgodnie z miejscowym planem zagospodarowania przestrzennego teren oznaczony symbolem MN przeznaczony jest pod zabudowę mieszkaniową jednorodzinną. Dopuszcza się również realizację niezbędnych obiektów i urządzeń towarzyszących, takich jak garaże, budynki gospodarcze, sieci i przyłącza infrastruktury technicznej oraz zieleń urządzona.

Warunki zabudowy wynikające z MPZP
  • maksymalna powierzchnia zabudowy: 60 % powierzchni działki,
  • minimalna powierzchnia biologicznie czynna: 40 %,
  • wysokość zabudowy: do 9,5 m (budynek mieszkalny),
  • dachy dwu- lub wielospadowe, o kącie nachylenia 35–50,
  • możliwość realizacji budynku mieszkalnego jednorodzinnego oraz obiektów towarzyszących (garaż, budynek gospodarczy, zieleń, przyłącza).

Właściciel posiada aktualne pozwolenie na budowę - udostępnia projekt domu wraz ze szczegółowym kosztorysem i przyłączeniami OZE

LOKALIZACJA: Borzygniew to urokliwa miejscowość położona w otoczeniu zieleni, z dogodnym dojazdem do Wrocławia lub Świdnicy czy Wałbrzycha - Sama działka położona jest niemalże bezpośrednio nad Zalewem Mietkowskim co zapewnia idealne warunki do aktywnego spędzania wolnego czasu - w pobliżu Marina Mietkow, Ośrodek Sportów Wodnych, tereny spacerowe. Miejsce to łączy w sobie komfort mieszkania blisko natury z dostępem do niezbędnej infrastruktury miejskiej.

Ślężański Park Krajobrazowy - 18 min samochodem
Wrocław centrum - 50 min samochodem
Aleja Bielany - 30 minut samochodem
Świdnica - 35 min samochodem
Autostrada A4 - 19 minut

MEDIA: prąd, w drodze woda, kanalizacja



Pokaż więcejmniej  

 
Ogólne warunki:
Cena:299 000 PLN
Waluta:PLN
Cena za m2:298 PLN
 
Numer oferty:
CRM:34964534494

Pokaż więcejmniej  

Masz pytania? Napisz!

Przepisz kod captcha:

Polecamy podobne oferty

Zapisz się na powiadomienia o podobnych ofertach

Przepisz kod captcha:

Zaktualizowaliśmy naszą Politykę Prywatności.

Nowe zapisy w Polityce Prywatności wynikają z konieczności dostosowania naszych działań oraz dokumentacji do nowych wymagań europejskiego Rozporządzenia o Ochronie Danych Osobowych (RODO), które jest stosowane od 25 maja 2018 r.

Zaawansowane