Mieszkanie 4 pokojowe na Sprzedaż

4 pokoje 88m²
WIELKOPOLSKIE poznański ul. Słonecznikowa

649 000 PLN

Mieszkanie na sprzedaż 4 pokoje Słonecznikowa, Tarnowo Podgórne 88 m²

649 000 PLN Negocjuj cenę >

WIELKOPOLSKIE poznański ul. Słonecznikowa MAPA

1/19

649 000 PLN WYŁĄCZNOŚĆ   

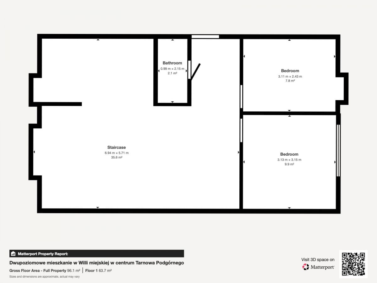
Dwupoziomowe mieszkanie z antresolą w Tarnowie Podgórnym - 88 m², ul. Słonecznikowa

Szukasz przestrzeni, która daje więcej swobody niż typowe mieszkanie? To miejsce może Ci się naprawdę spodobać.

Na sprzedaż oferujemy komfortowe, dwupoziomowe mieszkanie o łącznej powierzchni ok. 88 m² (68,4 m² + 20 m² poddasza użytkowego), położone na II piętrze kameralnego budynku z 2000 roku.

Układ, który dużo ułatwia

Poziom główny:
-jasny pokój dzienny połączony z miejscem na kuchnię (do własnej aranżacji),
-dwie ustawne sypialnie,
-łazienka,
-wygodna komunikacja.

Poddasze (ok. 20 m²):
-dodatkowy pokój — świetnie sprawdzi się jako sypialnia, gabinet albo pokój dziecięcy,
-garderoba.

Mieszkanie jest świeżo po remoncie: odmalowane, z nowymi panelami i wykładziną. Dzięki temu możesz od razu się urządzać i dopasować przestrzeń do własnego stylu. Całość ma przyjemny, funkcjonalny rozkład — strefa dzienna i prywatna są wyraźnie oddzielone.
Do tego dochodzą niskie koszty utrzymania, ogrzewanie gazowe, nowy roczny piec dwufunkcyjny.

Lokalizacja, która ułatwia codzienność:
Ul. Słonecznikowa to spokojna część Tarnowa Podgórnego, z wygodnym dostępem do:
-sklepów i punktów usługowych,
-szkoły i przedszkola,
-terenów rekreacyjnych,
-szybkiego dojazdu do Poznania — zarówno autem, jak i komunikacją podmiejską.

Do mieszkania przynależy komórka lokatorska w piwnicy oraz współdzielony ogródek z tyłu budynku :)

Mieszkanie jest bezczynszowe, pełna własność bez obciążeń.

Jeśli chcesz poznać więcej szczegółów lub umówić prezentację — zapraszam do kontaktu.





Pokaż więcejmniej  

 
Ogólne warunki:
Cena:649 000 PLN
Waluta:PLN
Liczba pokoi:4
Powierzchnia:88 m²
Cena za m2:7 375 PLN
Rynek:Wtórny
 
Opis budynku:
Rok budowy:2000
Liczba pięter:2
Piętro:2
Stan budynku:po remoncie
Winda:nie
 
Standard mieszkania:
Stan nieruchomości:po remoncie
 
Pomieszczenia i pokoje:
Typ kuchni:Z oknem otwarta na salon
 
Powierzchnia dodatkowa:
Balkon:nie
Komórka/Piwnica:nie
Loggia:nie
Ogródek:nie
Schowek:tak
Taras:nie
 
Bezpieczeństwo:
Monitoring:nie
Ochrona:nie
Teren ogrodzony:nie
 
Numer oferty:
CRM:34964539855

Pokaż więcejmniej  

Tagi

Masz pytania? Napisz!

Przepisz kod captcha:

Polecamy podobne oferty

Zapisz się na powiadomienia o podobnych ofertach

Przepisz kod captcha:

Zaktualizowaliśmy naszą Politykę Prywatności.

Nowe zapisy w Polityce Prywatności wynikają z konieczności dostosowania naszych działań oraz dokumentacji do nowych wymagań europejskiego Rozporządzenia o Ochronie Danych Osobowych (RODO), które jest stosowane od 25 maja 2018 r.

Zaawansowane