Działka  pokojowe na Sprzedaż

pokoje 96689m²
WIELKOPOLSKIE czarnkowsko-trzcianecki

2 000 000 PLN

Pomysł na inwestycję. 96689 m²

2 000 000 PLN Negocjuj cenę >

WIELKOPOLSKIE czarnkowsko-trzcianecki MAPA

1/15

2 000 000 PLN WYŁĄCZNOŚĆ   

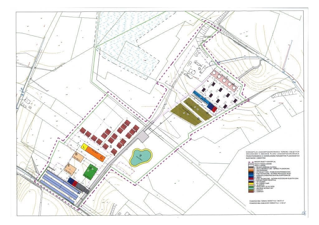
Jeśli szukasz pomysłu na inwestycje ta oferta może być dla Ciebie.

Mam do zaproponowania działkę inwestycyjną z gotowym projektem zagospodarowania pod kemping wraz z pensjonatem, domkami i glampingiem.

Najważniejsze cechy:


  • świetna lokalizacja - w pobliżu trzy duże miasta, Gorzów Wielkopolski, Poznań i Piła

  • działka zlokalizowana na ternach częściowo zalesionych w pięknym otoczeniu natury,

  • gotowy projekt zagospodarowania terenu 

  • bardzo dobry dojazd


Jeżeli jesteś zainteresowany zapraszam serdecznie do kontaktu po więcej szczegółów.

Daniel Ćwikowski



Pokaż więcejmniej  

 
Ogólne warunki:
Cena:2 000 000 PLN
Waluta:PLN
Cena za m2:21 PLN
 
Numer oferty:
CRM:34964550234

Pokaż więcejmniej  

Masz pytania? Napisz!

Przepisz kod captcha:

Polecamy podobne oferty

Zapisz się na powiadomienia o podobnych ofertach

Przepisz kod captcha:

Zaktualizowaliśmy naszą Politykę Prywatności.

Nowe zapisy w Polityce Prywatności wynikają z konieczności dostosowania naszych działań oraz dokumentacji do nowych wymagań europejskiego Rozporządzenia o Ochronie Danych Osobowych (RODO), które jest stosowane od 25 maja 2018 r.

Zaawansowane