Mieszkanie 2 pokojowe na Sprzedaż

2 pokoje 43.19m²
POMORSKIE pucki ul. Wydmowa

899 900 PLN

2-pok. mieszkanie na pomorzu, Hel. 43.19 m²

899 900 PLN Negocjuj cenę >

POMORSKIE pucki ul. Wydmowa MAPA

1/12

899 900 PLN WYŁĄCZNOŚĆ   

Przedmiotem sprzedaży jest wyjątkowe mieszkanie w stanie deweloperskim, do własnej aranżacji, położone w nowym budynku apartamentowym o bardzo ciekawej architekturze. Lokal położony w jednej z najbardziej pożądanych lokalizacji na Półwyspie Helskim! Inwestycja "Czarna Perła" charakteryzująca się wyjątkowym designem i bardzo wysokim standardem.

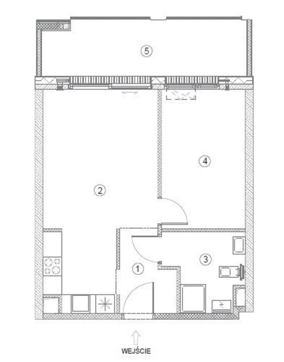
Szczegóły mieszkanie:
- Powierzchnia: 43,20 m²,
- Piętro: 1 z 3,
- Stan: deweloperski - możliwość zorganizowania wykończenia pod klucz,

Układ:
- Pokój dzienny z aneksem kuchennym,
- Sypialnia,
- Przestronny hall,
- Łazienka,
- Loggia (zadaszony balkon) z widokiem na basen i wydmy,

Lokalizacja:
Ulica Wydmowa 27 - spokojna część Helu tuż przy stacji PKP, w otoczeniu zieleni i w bliskiej odległości od plaży oraz portu. Doskonałe miejsce do wypoczynku z dala od miejskiego zgiełku, a jednocześnie z szybkim dostępem do atrakcji turystycznych.

Atuty nieruchomości:
- Basen dla mieszkańców z podgrzewaną wodą (28°C),
- Centralne ogrzewanie podłogowe w całym mieszkaniu,
- budynek ogrzewany ekologicznym i ekonomicznym źródłem ciepła - pompą ciepła,
- Cudowny widok na wydmy i zieleń,

Informacje dodatkowe:
- Lokal stanowiący odrębną własność - możliwość posiłkowania się kredytem hipotecznym,
- Czynsz administracyjny ok. 750 zł,
- Do mieszkania przynależy miejsce postojowe w garażu podziemnym a cenie - 50 000 zł,

Zapraszam za prezentację celem obejrzenia tej nietuzinkowej nieruchomości.


Wskaźnik rocznego zapotrzebowania na energię użytkową (EU): 75.890 kWh/(m2 · rok).
Wskaźnik rocznego zapotrzebowania na energię końcową (EK): 22.400 kWh/(m2 · rok).
Wskaźnik rocznego zapotrzebowania na nieodnawialną energię pierwotną (EP): 55.900 kWh/(m2 · rok).
Jednostkowa wielkość emisji CO2 (E CO2): 0.024 t CO2/(m2 · rok).
Udział odnawialnych źródeł energii w rocznym zapotrzebowaniu na energię końcową (U OZE): 57.52 %.



Pokaż więcejmniej  

 
Ogólne warunki:
Cena:899 900 PLN
Waluta:PLN
Liczba pokoi:2
Powierzchnia:43.19 m²
Cena za m2:20 836 PLN
Czynsz administracyjny:750 zł
Rynek:Wtórny
 
Opis budynku:
Rok budowy:2024
Liczba pięter:3
Piętro:1
Winda:nie
 
Powierzchnia dodatkowa:
Balkon:nie
Komórka/Piwnica:nie
Loggia:tak
Ogródek:nie
Schowek:nie
Taras:nie
 
Bezpieczeństwo:
Monitoring:nie
Ochrona:nie
Teren ogrodzony:nie
 
Numer oferty:
CRM:34964544125

Pokaż więcejmniej  

Masz pytania? Napisz!

Przepisz kod captcha:

Polecamy podobne oferty

Zapisz się na powiadomienia o podobnych ofertach

Przepisz kod captcha:

Zaktualizowaliśmy naszą Politykę Prywatności.

Nowe zapisy w Polityce Prywatności wynikają z konieczności dostosowania naszych działań oraz dokumentacji do nowych wymagań europejskiego Rozporządzenia o Ochronie Danych Osobowych (RODO), które jest stosowane od 25 maja 2018 r.

Zaawansowane