Mieszkanie 4 pokojowe na Sprzedaż

4 pokoje 108.18m²
POMORSKIE pucki ul. Regatowa

1 650 000 PLN

2-poziomowy apartament z widokiem na Zatokę! 108.18 m²

1 650 000 PLN Negocjuj cenę >

POMORSKIE pucki ul. Regatowa MAPA

1/20

1 650 000 PLN WYŁĄCZNOŚĆ   

Nowoczesny, dwupoziomowy apartament z tarasem i widokiem na Zatokę - Mechelinki, Osiedle Anchoria!

Wyjątkowa propozycja dla osób poszukujących komfortu, prywatności i nadmorskiego stylu życia - idealna zarówno do zamieszkania, jak i jako inwestycja premium.

GŁÓWNE ATUTY
-Prestiżowa, nadmorska lokalizacja - Mechelinki
-Widok na Zatokę Pucką
-Dwupoziomowy, funkcjonalny układ
-Przestronny taras na dachu o powierzchni ok. 50 m²
-Wysoki standard wykończenia
-Sauna w łazience
-Kameralne osiedle
-Miejsce garażowe oraz dodatkowe miejsce postojowe
-Budynek z 2018 roku

LOKALIZACJA
Apartament położony jest przy ul. Regatowej w Mechelinkach, na cenionym i kameralnym Osiedlu Anchoria. To miejsce łączące spokój nadmorskiej miejscowości z bliskością Trójmiasta.

W bezpośrednim sąsiedztwie znajdują się:
-plaża i molo,
-trasy spacerowe i rowerowe,
-restauracje i kawiarnie,
-tereny rekreacyjne.

Lokalizacja idealna zarówno dla miłośników ciszy i natury, jak i osób szukających prestiżowej nieruchomości wakacyjnej lub inwestycyjnej.

APARTAMENT
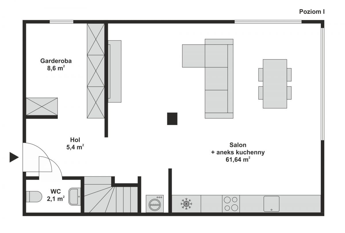
Na sprzedaż przestronny, dwupoziomowy apartament o powierzchni 108,18 m², usytuowany na ostatniej kondygnacji budynku. Wnętrze zaprojektowane z myślą o komforcie i funkcjonalności, z wyraźnym podziałem na strefę dzienną i prywatną.

Układ pomieszczeń:

Poziom I:
-przestronny salon z aneksem kuchennym,
-toaleta,
-garderoba,
-pokój gospodarczy z pralnią.

Poziom II:
-komfortowa sypialnia z bezpośrednim wyjściem na taras,
-łazienka wyposażona w wannę, prysznic oraz saunę,
-druga toaleta.

Dodatkowym atutem jest taras na dachu o powierzchni ok. 50m², oferujący spektakularny widok na Zatokę - idealne miejsce do relaksu, spotkań towarzyskich czy wypoczynku o zachodzie słońca.

BUDYNEK
Apartament znajduje się w kameralnym, nowoczesnym budynku z 2018 roku, wykonanym w technologii betonowej. Brak windy rekompensuje niewielka liczba kondygnacji oraz poczucie prywatności. Osiedle jest zadbane i spokojne, z estetycznymi częściami wspólnymi.

INFORMACJE DODATKOWE
-ogrzewanie: miejskie,
-czynsz: ok. 850 zł,
-stan prawny: pełna własność,
-rynek: wtórny,
-do apartamentu przynależy miejsce garażowe oraz miejsce postojowe.

Zapraszam do kontaktu!



Pokaż więcejmniej  

 
Ogólne warunki:
Cena:1 650 000 PLN
Waluta:PLN
Liczba pokoi:4
Powierzchnia:108.18 m²
Cena za m2:15 252 PLN
Czynsz administracyjny:800 zł
Rynek:Wtórny
 
Opis budynku:
Rodzaj budynku:Apartamentowiec
Rok budowy:2018
Liczba pięter:2
Piętro:1
Winda:nie
 
Standard mieszkania:
Rodzaj ogrzewania:CO miejskie
 
Powierzchnia dodatkowa:
Balkon:tak
Komórka/Piwnica:nie
Loggia:nie
Ogródek:nie
Schowek:nie
Taras:tak
 
Bezpieczeństwo:
Monitoring:nie
Ochrona:nie
Teren ogrodzony:nie
 
Numer oferty:
CRM:34964540026

Pokaż więcejmniej  

Tagi

Masz pytania? Napisz!

Przepisz kod captcha:

Polecamy podobne oferty

Zapisz się na powiadomienia o podobnych ofertach

Przepisz kod captcha:

Zaktualizowaliśmy naszą Politykę Prywatności.

Nowe zapisy w Polityce Prywatności wynikają z konieczności dostosowania naszych działań oraz dokumentacji do nowych wymagań europejskiego Rozporządzenia o Ochronie Danych Osobowych (RODO), które jest stosowane od 25 maja 2018 r.

Zaawansowane