Mieszkanie 3 pokojowe na Wynajem

3 pokoje 50.43m²
MAŁOPOLSKIE Kraków Złocień ul. Agatowa

3 200 PLN

3 pokoje, Agatowa, loggia, klimatyzacja 50.43 m²

3 200 PLN Negocjuj cenę >

MAŁOPOLSKIE Kraków Złocień ul. Agatowa MAPA

1/20

3 200 PLN WYŁĄCZNOŚĆ   

Na wynajem

Ulica: Agatowa 37

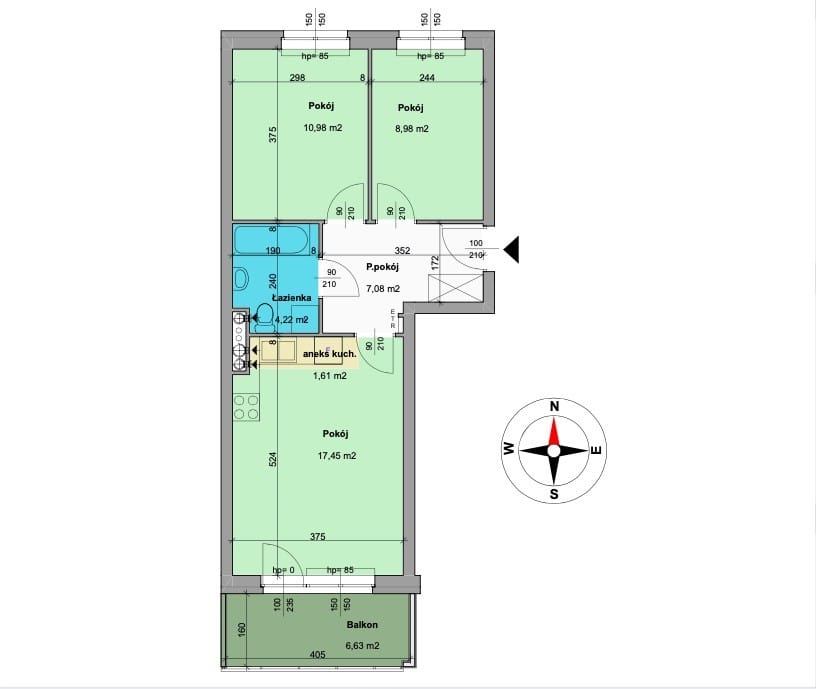
3 pokojowe mieszkanie o powierzchni 50,43 m2 zlokalizowane na 4 piętrze, 4 piętrowego budynku z windą, oddanego do użytku w 2021 r.

Mieszkanie składa się z:
Salonu z aneksem kuchennym - 17,45 m2
Sypialni - 10,98 m2
Sypialni - 8,98 m2
Łazienki - 4,22 m2
Przedpokoju - 7,08 m2

Do mieszkania przynależy loggia o powierzchni 6,63 m2

Kierunki świata: 
Salon z aneksem - południe. 
2 sypialnie - północ. 

W ramach podanej ceny, można korzystać z miejsca postojowego nr 33 w hali garażowej pod budynkiem. 

Załączone zdjęcia to stan faktyczny nieruchomości.

W ramach najmu, do użytku najemców pozostają:
Sprzęt marki SAMSUNG:
piekarnik,
mikrofala,
zmywarka(60cm),
lodówka w zabudowie,
telewizor.
Okap - marki Beko,
pralka i suszarka - marki Beko,
Klimatyzacja Fujitsu, w salonie.
Odkurzacz, deska do prasowania, żelazko, mop, drabina, suszarka, kubki, talerze, sztućce,

W łazience, dla komfortu użytkowania, zostało zamontowane ogrzewanie podłogowe.
Ogrzewanie i ciepła woda z sieci miejskiej(MPEC)
Ekspozycja: północ - południe.
Północ od strony obu sypialni, południe od strony salonu z aneksem z wyjściem na przytulny balkon gdzie można wypić poranną kawę lub poczytać książkę.

Możliwość przepisania umowy na kablówkę i internet - 70 zł/m-c
Internet 600mb/s
Pakiet M Netia (120 kanałów w tym 60 HD).
Czynsz administracyjny: 770 zł/m-c (liczony obecnie przy 1 osobie).
Prąd - wedle indywidualnego zużycia (przy 4 osobach było 250 zł/m-c, na podstawie prognozy).

Warunki najmu:
minumum 12 miesięcy
najem okazjonalny
obowiązkowe ubezpieczenie OC najemcy
dla osób niepalących
zwięrzeta są akceptowane(psy i koty).
jednorazowa kaucja: 3000 zł
raport weryfikacyjny (m.in. simpl.rent, który potwierdza tożsamość, zarobki oraz historię płatniczą potencjalnego najemcy.
oferta skierowana do par lub singli, bez dzieci, (zgodnie z wolą Wynajmującej).

Preferowany termin rozpoczęcia najmu: od zaraz (w indywidualnych przypadkach, proszę o informację od potencjanów najemców, przy zgłoszeniu zainteresowania ofertą, terminu o którym myślą do wprowadzenia się i zawarcia umowy).


Zapraszam na prezentację nieruchomości




Wskaźnik rocznego zapotrzebowania na energię użytkową (EU): 75.92 kWh/(m2 · rok).
Wskaźnik rocznego zapotrzebowania na energię końcową (EK): 86.5 kWh/(m2 · rok).
Wskaźnik rocznego zapotrzebowania na nieodnawialną energię pierwotną (EP): 103.8 kWh/(m2 · rok).
Jednostkowa wielkość emisji CO2 (E CO2): 0.0139 t CO2/(m2 · rok).
Udział odnawialnych źródeł energii w rocznym zapotrzebowaniu na energię końcową (U OZE): 0.00 %.




Pokaż więcejmniej  

 
Ogólne warunki:
Cena:3 200 PLN
Waluta:PLN
Liczba pokoi:3
Powierzchnia:50.43 m²
Cena za m2:63 PLN
Czynsz administracyjny:770 zł
Rynek:Wtórny
 
Opis budynku:
Rok budowy:2021
Liczba pięter:4
Piętro:4
Stan budynku:bardzo dobry
Winda:nie
 
Standard mieszkania:
Stan nieruchomości:bardzo dobry
 
Pomieszczenia i pokoje:
Typ kuchni:Bez okna otwarta na salon
 
Powierzchnia dodatkowa:
Balkon:nie
Komórka/Piwnica:nie
Loggia:tak
Ogródek:nie
Schowek:nie
Taras:nie
 
Bezpieczeństwo:
Monitoring:nie
Ochrona:nie
Teren ogrodzony:nie
 
Numer oferty:
CRM:34964550678

Pokaż więcejmniej  

Tagi

Klaudia Trzcionka

Agentka Nieruchomości



Masz pytania? Napisz!

Przepisz kod captcha:

Polecamy podobne oferty

Zapisz się na powiadomienia o podobnych ofertach

Przepisz kod captcha:

Zaktualizowaliśmy naszą Politykę Prywatności.

Nowe zapisy w Polityce Prywatności wynikają z konieczności dostosowania naszych działań oraz dokumentacji do nowych wymagań europejskiego Rozporządzenia o Ochronie Danych Osobowych (RODO), które jest stosowane od 25 maja 2018 r.

Zaawansowane