Mieszkanie 3 pokojowe na Sprzedaż

3 pokoje 85m²
MAZOWIECKIE Warszawa Bielany ul. Gdańska

2 252 500 PLN

3 pokoje | apartamentowiec | Bielany Żoliborz 85 m²

2 252 500 PLN Negocjuj cenę >

MAZOWIECKIE Warszawa Bielany ul. Gdańska MAPA

1/11

2 252 500 PLN WYŁĄCZNOŚĆ   

Prezentujemy Państwu mieszkanie na sprzedaż w kameralnym apartamentowcu przy Stawach Kellera.

NIERUCHOMOŚĆ

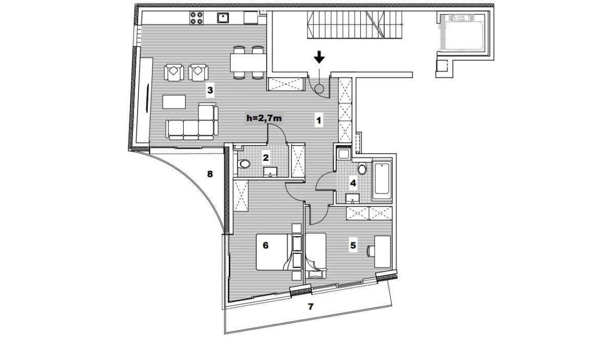
Prezentowana nieruchomość to mieszkanie o powierzchni 86 metrów kwadratowych znajdujące się na 1 piętrze budynku. Składa się ono z salonu z kuchnią, dwóch sypialni, hallu oraz dwóch łazienek.

Z mieszkania wychodzą dwa balkony, jeden na stronę południową, drugi na południowo wschodnią. Dzięki dużym przeszkleniom mieszkanie jest bardzo dobrze doświetlone, a z okien rozpościera się widok na zieleń.

ATUTY NIERUCHOMOŚCI

- kameralny apartamentowiec
- lokalizacja na pograniczu Żoliborza i Bielan
- bliskość terenów zielonych oraz szybki dojazd do centrum

Miejsce parkingowe w garażu podziemnym oraz komórka lokatorska dodatkowo płatne.

LOKALIZACJA

Apartamentowiec znajduje się na pograniczu Żoliborza i Starych Bielan. Blisko terenów zielonych, Stawów Kellera, Dolinki Marymonckiej, Parku Kaskada oraz Lasu Bielańskiego. Dogodna lokalizacja oraz bliskość metra daje łatwy i szybki dostęp do centrum Warszawy.



Pokaż więcejmniej  

 
Ogólne warunki:
Cena:2 252 500 PLN
Waluta:PLN
Liczba pokoi:3
Powierzchnia:85 m²
Cena za m2:26 500 PLN
Rynek:Pierwotny
Stan prawny:
 
Opis budynku:
Rodzaj budynku:Apartamentowiec
Rok budowy:2025
Liczba pięter:2
Piętro:1
Stan budynku:deweloperski
Winda:tak
 
Standard mieszkania:
Stan nieruchomości:deweloperski
Rodzaj ogrzewania:CO miejskie
 
Powierzchnia dodatkowa:
Balkon:tak
Komórka/Piwnica:nie
Loggia:nie
Ogródek:nie
Schowek:tak
Taras:nie
 
Bezpieczeństwo:
Monitoring:nie
Ochrona:nie
Teren ogrodzony:tak
 
Numer oferty:
CRM:34964532638

Pokaż więcejmniej  

Tagi

Masz pytania? Napisz!

Przepisz kod captcha:

Polecamy podobne oferty

Zapisz się na powiadomienia o podobnych ofertach

Przepisz kod captcha:

Zaktualizowaliśmy naszą Politykę Prywatności.

Nowe zapisy w Polityce Prywatności wynikają z konieczności dostosowania naszych działań oraz dokumentacji do nowych wymagań europejskiego Rozporządzenia o Ochronie Danych Osobowych (RODO), które jest stosowane od 25 maja 2018 r.

Zaawansowane