Mieszkanie 3 pokojowe na Sprzedaż

3 pokoje 61.44m²
ZACHODNIOPOMORSKIE Szczecin Centrum ul. Aleja Niepodległości

470 000 PLN

3 pokoje z potencjałem do remontu | Brama Portowa 61.44 m²

470 000 PLN Negocjuj cenę >

ZACHODNIOPOMORSKIE Szczecin Centrum ul. Aleja Niepodległości MAPA

1/20

470 000 PLN WYŁĄCZNOŚĆ   

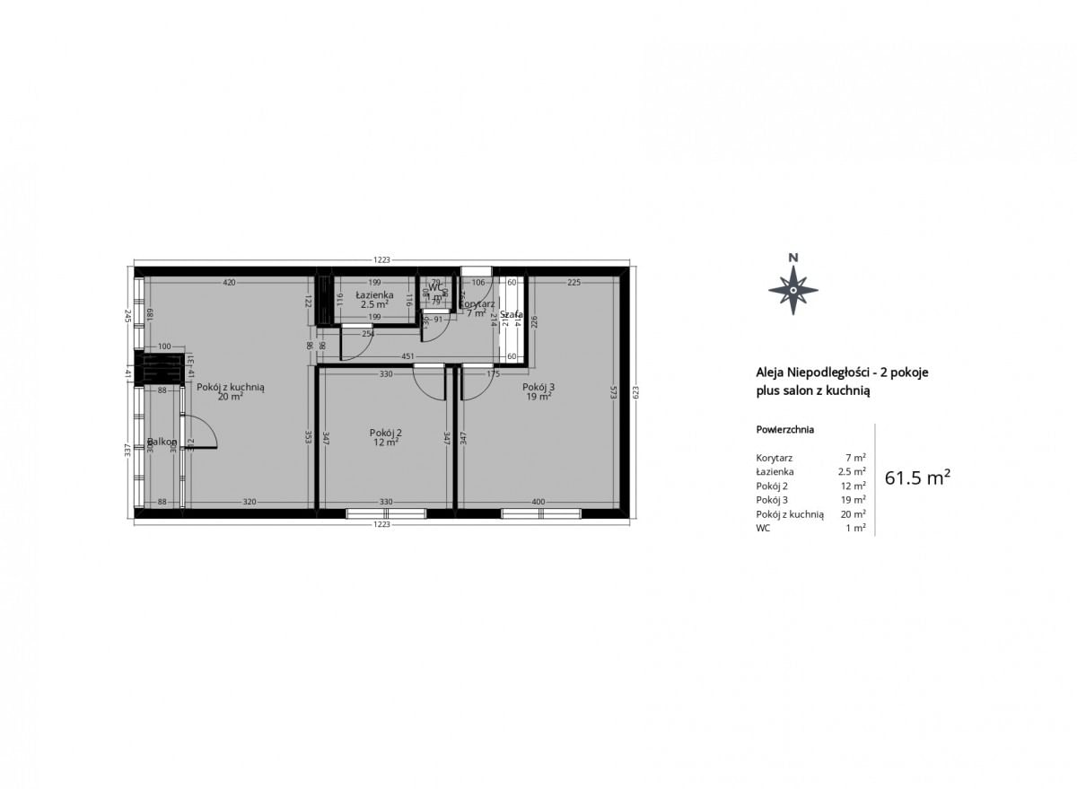
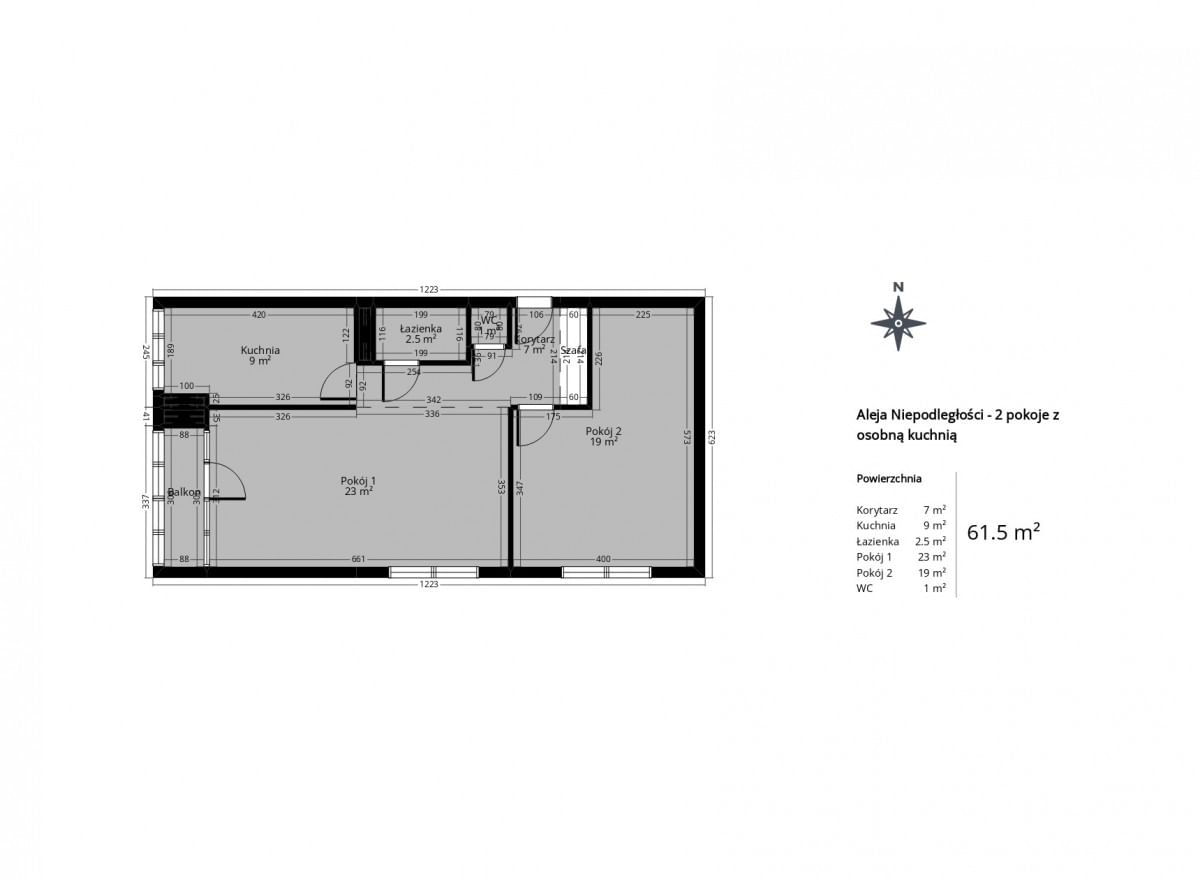
Przedstawiamy ofertę sprzedaży przestronnego mieszkania przy Al. Niepodległości - tuż obok Bramy Portowej - świetna propozycja dla osób szukających mieszkania w Centrum lub pod inwestycję na wynajem. Trzy pokoje z możliwością powrotu do pierwotnego układu 2-pokojowego z osobną kuchnią lub 3- pokojowego z aneksem kuchennym.

* W ogłoszeniu użyto poglądowych wizualizacji mających na celu zaprezentowanie potencjału aranżacyjnego mieszkania po remoncie - wg rzutu pokazującego układ salon z aneksem oraz 2 sypialnie.

Mieszkanie:
* powierzchnia 61,44 m2, III piętro
* w obecnym układzie mamy ustawny korytarz z szafą w zabudowie, 3 osobne pokoje, dużą kuchnię, łazienkę i osobno wc, zabudowany balkon
* bardzo duży potencjał, jeśli chodzi o aranżację - stan obecny oraz możliwe zmiany przedstawione na rzutach
* ściany i podłogi - do remontu
* okna pcv w dobrym stanie
* mieszkanie słoneczne i ciepłe, orientacja na południe i zachód
* wymieniona instalacja grzewcza

Budynek:
* niski blok z lat 60-tych
* schludna i czysta klatka schodowa
* zamknięte podwórko z bramą otwieraną elektrycznie
* plac zabaw dla dzieci
* monitoring

Okolica:
Brama Portowa to serce Szczecina - miejsce, w którym historia spotyka się z nowoczesnością. To tu krzyżują się główne szlaki miasta, a każdy spacer zamienia się w podróż przez wieki. Dawna brama wjazdowa do miasta do dziś stanowi wyjątkowy punkt orientacyjny.
Rewelacyjna lokalizacja dla osób szukających mieszkania w Centrum. W okolicy znajdziemy absolutnie wszystko - od dużych węzłów komunikacji miejskiej, sklepy, punkty handlowe i usługowe, apteki, paczkomaty, a także liczne punkty gastronomiczne i usługowe.


Ważne:
* czynsz z zaliczkami na fundusz remontowy, wodę i centralne ogrzewanie, śmieci, utrzymanie czystości itp. 900 zł
* wejście od zamykanego, dobrze utrzymanego podwórza
* ciepła woda i ogrzewanie miejskie
* przynależna spora piwnica (czysta i sucha)
* bardzo duży potencjał aranżacyjny



Pokaż więcejmniej  

 
Ogólne warunki:
Cena:470 000 PLN
Waluta:PLN
Liczba pokoi:3
Powierzchnia:61.44 m²
Cena za m2:7 650 PLN
Czynsz administracyjny:900 zł
Rynek:Wtórny
 
Opis budynku:
Rodzaj budynku:Blok mieszkalny
Rok budowy:1960
Liczba pięter:4
Piętro:3
Stan budynku:do remontu
Winda:nie
 
Standard mieszkania:
Stan nieruchomości:do remontu
Rodzaj ogrzewania:CO miejskie
 
Pomieszczenia i pokoje:
Typ kuchni:Z oknem otwarta na salon
 
Powierzchnia dodatkowa:
Balkon:tak
Komórka/Piwnica:tak
Loggia:tak
Ogródek:nie
Schowek:nie
Taras:nie
 
Bezpieczeństwo:
Monitoring:tak
Ochrona:nie
Teren ogrodzony:tak
 
Numer oferty:
CRM:34964535477

Pokaż więcejmniej  

Tagi

Masz pytania? Napisz!

Przepisz kod captcha:

Polecamy podobne oferty

Zapisz się na powiadomienia o podobnych ofertach

Przepisz kod captcha:

Zaktualizowaliśmy naszą Politykę Prywatności.

Nowe zapisy w Polityce Prywatności wynikają z konieczności dostosowania naszych działań oraz dokumentacji do nowych wymagań europejskiego Rozporządzenia o Ochronie Danych Osobowych (RODO), które jest stosowane od 25 maja 2018 r.

Zaawansowane