Lokal użytkowy  pokojowe na Wynajem

2 pokoje 20.35m²
MAZOWIECKIE Warszawa Wola ul. Marcina Kasprzaka

2 950 PLN

Biuro 20m2 z balkonem 15m2 i garażem 20.35 m²

2 950 PLN Negocjuj cenę >

MAZOWIECKIE Warszawa Wola ul. Marcina Kasprzaka MAPA

1/9

2 950 PLN WYŁĄCZNOŚĆ   


Jeżeli szukasz biura w sercu Warszawy, mamy dla Ciebie doskonałą propozycję!
Biuro o powierzchni 20 m², położone w dogodnej lokalizacji na warszawskiej Woli przy ulicy Kasprzaka 29, w odległości około 4,5 km od Centrum Warszawy. 
Lokal idealnie nadaje się na biuro dla małych firm, gabinet psychologiczny, miejsce do spotkań z klientami. To miejsce będzie idealne dla wszystkich którzy poszukują profesjonalnego miejsca pracy w prestiżowej lokalizacji.

Lokalizacja:
Dzielnica Wola posiada wiele atutów, które przyciągają tutaj wiele osób zrówno mieszkańców jak rownież firmy.
- centralne położenie: mieszkańcy mają łatwy dostęp do biznesowych, handlowych miejsc w centrum miasta, zaledwie 15 min komunikacją od Lotniska
- rozwinięta infrastruktura, dzielnica Wola jest dobrze skomunikowana transportem publicznym, 
- dynamiczny rozwój: w ostatnich latach Wola stała się jednym z najszybciej rozwijających się obszarów Warszawy. Powstają tu nowe biurowce, centra handlowe i osiedla mieszkaniowe, które przyciągają inwestorów i tworzy nowe miejsca pracy.


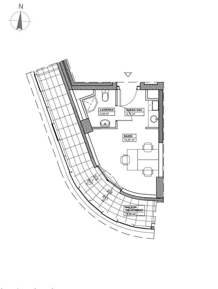
Rozkład pomieszczeń:
- Open space 12,22 m2 
- Aneks kuchenny 4,71 m2 (lodówka)
- Łazienka 3,42 m2 (pralka)
- Balkon 14,65 m2


Główne atuty biura:
- W pełni wyposażone i gotowe do natychmiastowego użytku
- Jasne pomieszczenie
- Możliwość dostosowania aranżacji do potrzeb Najemcy
- Miejsce parkingowe w garażu podziemnym

Pozostałe informacje:

Umowa najmu instytucjonalnego.
Całkowity koszt najmu to 2.950 zł + VAT + czynsz administracyjny 463,40 zł + zużycie mediów ponad zaliczki oraz koszty energii. 
Kaucja w wysokości 3.000 zł. 
Miejsce garażowe dodatkowo płatne 300 zł + VAT

Serdecznie polecam tę ofertę i zapraszam na prezentację!

Treść niniejszego ogłoszenia nie stanowi oferty handlowej w rozumieniu Kodeksu Cywilnego.




Pokaż więcejmniej  

 
Ogólne warunki:
Rynek:Wtórny
Cena:2 950 PLN
Waluta:PLN
Powierzchnia:20.35 m²
Cena za m2:145 PLN
Stan nieruchomości:
Piętro:6
 
Opis budynku:
Rok budowy:2023
Stan budynku:bardzo dobry
Liczba pięter:10
Winda:nie
 
Bezpieczeństwo:
Monitoring:nie
Ochrona:nie
 
Powierzchnia dodatkowa:
Balkon:nie
Komórka/Piwnica:nie
Loggia:nie
 
Numer oferty:
CRM:34964545830

Pokaż więcejmniej  

Karolina Grudzińska-Wolińska

Managerka Zespołu / Pośredniczka w Obrocie Nieruchomościami



Masz pytania? Napisz!

Przepisz kod captcha:

Polecamy podobne oferty

Zapisz się na powiadomienia o podobnych ofertach

Przepisz kod captcha:

Zaktualizowaliśmy naszą Politykę Prywatności.

Nowe zapisy w Polityce Prywatności wynikają z konieczności dostosowania naszych działań oraz dokumentacji do nowych wymagań europejskiego Rozporządzenia o Ochronie Danych Osobowych (RODO), które jest stosowane od 25 maja 2018 r.

Zaawansowane