Mieszkanie 2 pokojowe na Sprzedaż

2 pokoje 47.5m²
MAZOWIECKIE Warszawa Wola ul. Marcina Kasprzaka

849 000 PLN

Garderoba| Dwustronne| Bliska Wola 47.5 m²

849 000 PLN Negocjuj cenę >

MAZOWIECKIE Warszawa Wola ul. Marcina Kasprzaka MAPA

1/20

849 000 PLN WYŁĄCZNOŚĆ   

:: Krótko
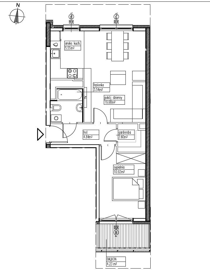
Na sprzedaż 2-pokojowe mieszkanie o powierzchni 47,13 m², położone na 11. piętrze
w 12-piętrowym apartamentowcu z 2017 roku przy ul. Kasprzaka 29A na warszawskiej Woli. Mieszkanie w stanie deweloperskim - idealne do wykończenia według własnej koncepcji.

:: Dla kogo?
Dla osób, które chcą zaaranżować przestrzeń po swojemu i szukają funkcjonalnego mieszkania blisko centrum. Sprawdzi się jako pierwsze mieszkanie dla pary, singla lub jako zakup inwestycyjny pod wynajem.

:: Atuty
- Dobry układ pomieszczeń - wyraźny podział na część dzienną i sypialnianą

- Balkon od strony południowej - sypialnia z naturalnym światłem przez większą część dnia

- Garderoba - wygodne miejsce do przechowywania

- Drewniana stolarka okienna i solidna konstrukcja budynku

- Dwustronne mieszkanie - kuchnia i salon od północy, sypialnia od południa

- Lokalizacja w rozwijającej się części Woli z pełną infrastrukturą i komunikacją

:: Czy to jest to, czego szukasz?
Jeśli szukasz mieszkania, które możesz urządzić zgodnie z własnym gustem, cenisz funkcjonalny układ i wygodny dostęp do centrum Warszawy - to propozycja, która spełni te oczekiwania.

:: Rozkład

- Salon z aneksem kuchennym, częściowo oddzielonym, z oknami od strony północnej

- Sypialnia z wyjściem na balkon od strony południowej

- Garderoba

- Łazienka z miejscem na prysznic lub wannę

- Przedpokój

Układ pomieszczeń zapewnia wygodną organizację przestrzeni - część dzienna odseparowana od prywatnej, a mieszkanie pozostaje dobrze doświetlone mimo miejskiego otoczenia.

:: Co w okolicy?
Kasprzaka 29A to część nowoczesnej inwestycji na warszawskiej Woli, w dynamicznie rozwijającym się rejonie Bliskiej Woli.
W pobliżu znajdują się liczne sklepy, piekarnie, punkty usługowe i restauracje. Kilka minut spacerem dzieli budynek od przystanków autobusowych i tramwajowych przy ul. Kasprzaka oraz od stacji SKM Warszawa Wola.
Bliskość centrum biznesowego przy Rondzie Daszyńskiego zapewnia doskonałą komunikację, a parki Moczydło i Szymańskiego stanowią dobre miejsce do rekreacji i spacerów.

:: Dodatkowo
Zakup możliwy wyłącznie za gotówkę.

Miejsce postojowe w garażu podziemnym - dodatkowo płatne 70 000 zł.


skontaktuj się z nami, aby umówić się na prezentację i poznać więcej szczegółów tej wyjątkowej oferty.




Pokaż więcejmniej  

 
Ogólne warunki:
Cena:849 000 PLN
Waluta:PLN
Liczba pokoi:2
Powierzchnia:47.5 m²
Cena za m2:17 874 PLN
Czynsz administracyjny:700 zł
Rynek:Wtórny
 
Opis budynku:
Rodzaj budynku:Apartamentowiec
Rok budowy:2022
Liczba pięter:12
Piętro:11
Stan budynku:deweloperski
Winda:tak
 
Standard mieszkania:
Stan nieruchomości:deweloperski
Rodzaj ogrzewania:CO miejskie
 
Pomieszczenia i pokoje:
Typ kuchni:Z oknem otwarta na salon
 
Powierzchnia dodatkowa:
Balkon:tak
Komórka/Piwnica:nie
Loggia:nie
Ogródek:nie
Schowek:nie
Taras:nie
 
Bezpieczeństwo:
Monitoring:tak
Ochrona:tak
Teren ogrodzony:nie
 
Numer oferty:
CRM:34964532984

Pokaż więcejmniej  

Tagi

Masz pytania? Napisz!

Przepisz kod captcha:

Polecamy podobne oferty

Zapisz się na powiadomienia o podobnych ofertach

Przepisz kod captcha:

Zaktualizowaliśmy naszą Politykę Prywatności.

Nowe zapisy w Polityce Prywatności wynikają z konieczności dostosowania naszych działań oraz dokumentacji do nowych wymagań europejskiego Rozporządzenia o Ochronie Danych Osobowych (RODO), które jest stosowane od 25 maja 2018 r.

Zaawansowane