Dom 6 pokojowe na Sprzedaż

6 pokoje 243m²
MAŁOPOLSKIE krakowski ul. Widokowa

1 999 000 PLN

Dom z możliwością aranżacji układu! 243 m²

1 999 000 PLN Negocjuj cenę >

MAŁOPOLSKIE krakowski ul. Widokowa MAPA

1/10

1 999 000 PLN WYŁĄCZNOŚĆ   

Brak PCC planowane oddanie IV kwartał 2026

Zadzwoń i zapytaj o szczegóły: 48 795 406 481

Przedstawiam ofertę domu wolnostojącego w budowie. Podana cena dotyczy budynku w stanie deweloperskim. Aktualnie trwa murowanie ściany kolanowej poddasza. Na obecnym etapie możliwe zmiany lokatorskie pod nowego właściciela - umów się już dziś!

Lokalizacja:
Więckowice w gminie Zabierzów - spokój i niezakłócona niczym cisza przedmieść z jednoczesną bliskością miasta. Wyjątkowa lokalizacja - w okolicy pojedyncza zabudowa jednorodzinna, a od północno zachodniej strony działki plan miejscowy przewiduje brak zabudowy! Przystanek autobusowy znajduje się 250 metrów od domu, a w odległości 6 min jazdy jest przystanek kolejowy Zabierzów.

Działka i zagospodarowanie:
Działka o powierzchni 8 ar, płaska, o regularnym kształcie. Standard wykonania: podjazd z kostki, ogrodzenie działki, wyprowadzona instalacja pod domofon. Wykonana opaska.

Dom:
Powierzchnia projektowa domu:
- parter: 131,50 m² garaż dwustanowiskowy 31,90 m²
- poddasze: 79,60 m²
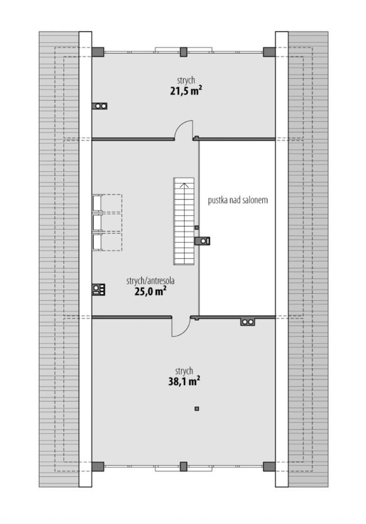
Panoramiczne okna świetnie doświetlające pomieszczenia zarówno na parterze jak i piętrze. Elegancka antresola nad salonem dająca poczucie przestrzeni.

Układ pomieszczeń (przykładowy):
  • Parter: wiatrołap, korytarz, kuchnia ze spiżarnią, salon z jadalnią, pralnia, toaleta, 2 pokoje, łazienka, sypialnia z garderobą i łazienką, garaż, pomieszczenie gospodarcze
  • Piętro: antresola 25 m², dwa duże pomieszczenia: 38 i 21 m²
Rzuty z powierzchniami pomieszczeń w zdjęciach.

Kwestie techniczne i standard wykończenia:
Ogrzewanie: pompa ciepła. Rekuperacja
Woda, kanalizacja: gminne
Instalacje: pod fotowoltaikę, ładowarkę do aut elektrycznych (bez osprzętu), alarm, monitoring (okablowanie zewnętrzne)
Podłogi: wylewki betonowe
Ściany wewnętrzne: tynki gipsowe
Ściany i elewacja: pustak ceramiczny, styropian 20 cm, tynk
Stolarka okienna: PCV, rolety zewnętrzne - możliwość wykonania za dopłatą
Dach: dachówka
Dojazd: droga utwardzona
Dokumenty: księga wieczysta

Zainteresowanych zapraszam do kontaktu oraz na prezentację.

Przedstawione ogłoszenie ma charakter wyłącznie informacyjny i nie stanowi oferty w rozumieniu art. 66 par. 1 Kodeksu cywilnego. Biuro Nieruchomości dokłada starań, aby treść ogłoszeń była rzetelna i aktualna, jednak nie ponosi odpowiedzialności za ewentualne nieścisłości, błędy lub nieaktualność ogłoszenia.



No PCC planned completion Q4 2026

Call and ask for details: 48 795 406 481

I'm offering a detached house under construction. The listed price is for the building in developer's standard. Currently, the attic knee wall is being constructed. At this stage, changes to the tenant's layout are possible for the new owner - make an appointment today!

Location:
Więckowice in the Zabierzów commune - the peace and undisturbed tranquility of the suburbs, yet close to the city. A unique location - a single detached house in the area, and the local zoning plan stipulates no development on the northwestern side of the plot! A bus stop is 250 meters from the house, and the Zabierzów train station is a 6-minute drive away.

Plot and development:
The plot is 8 ares, flat, and regularly shaped. The standard of workmanship includes a paved driveway, perimeter fencing, and pre-wired intercom. A perimeter fence is also installed.

House:
Design area of the house:
- ground floor: 131.50 m² double garage 31.90 m²
- attic: 79.60 m²
Panoramic windows illuminate both ground-floor and first-floor rooms. An elegant mezzanine above the living room creates a sense of space.

Room layout (example):
  • Ground floor: vestibule, corridor, kitchen with pantry, living room with dining room, laundry room, toilet, 2 rooms, bathroom, bedroom with wardrobe and bathroom, garage, utility room
  • First floor: mezzanine 25 m², two large rooms: 38 and 21 m²
Floor plans with room areas in photos.

Technical issues and finishing standard :
Heating: heat pump. Heat recovery
Water, sewerage: municipal
Installations: for photovoltaics, electric car charger (without accessories), alarm, monitoring (external wiring)
Floors: concrete screeds
Interior walls: gypsum plasters
Walls and facade: ceramic block, 20 cm polystyrene, plaster
Window joinery: PVC, external blinds - available for an additional fee
Roof: tiles
Access: paved road
Documents: land and mortgage register

If you are interested, please contact me and arrange a presentation.

This announcement is for informational purposes only and does not constitute an offer within the meaning of Article 66, Section 1 of the Civil Code. The Real Estate Agency strives to ensure that the content of the announcements is accurate and up-to-date, but is not responsible for any inaccuracies, errors, or out-of-date nature of the announcement.



Pokaż więcejmniej  

 
Ogólne warunki:
Rynek:Wtórny
Cena:1 999 000 PLN
Waluta:PLN
Cena za m2:8 226 PLN
Liczba pokoi:6
 
Standard domu:
Rok budowy:2026
Liczba pięter:1
 
Bezpieczeństwo:
Monitoring:nie
Teren strzeżony:nie
 
Numer oferty:
CRM:34964547794

Pokaż więcejmniej  

Masz pytania? Napisz!

Przepisz kod captcha:

Polecamy podobne oferty

Zapisz się na powiadomienia o podobnych ofertach

Przepisz kod captcha:

Zaktualizowaliśmy naszą Politykę Prywatności.

Nowe zapisy w Polityce Prywatności wynikają z konieczności dostosowania naszych działań oraz dokumentacji do nowych wymagań europejskiego Rozporządzenia o Ochronie Danych Osobowych (RODO), które jest stosowane od 25 maja 2018 r.

Zaawansowane