Działka  pokojowe na Sprzedaż

pokoje 2102m²
ZACHODNIOPOMORSKIE Świnoujście Przytór

250 000 PLN

Działki Świnoujście - pod lasem - wszystkie media 2102 m²

250 000 PLN Negocjuj cenę >

ZACHODNIOPOMORSKIE Świnoujście Przytór MAPA

1/18

250 000 PLN WYŁĄCZNOŚĆ   

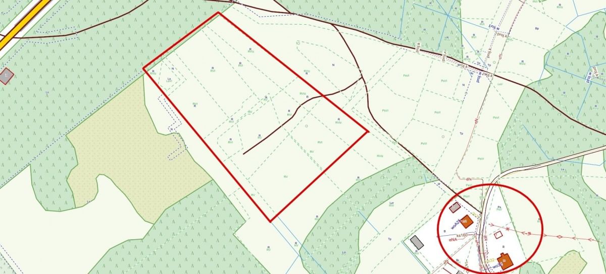
Prezentujemy ofertę sprzedaży działek pod zabudowę zagrodową o powierzchniach od 2102 do 3110 mkw. położonych w południowo-wschodniej dzielnicy Świnoujścia (Przytór-Łunowo), w bliskim sąsiedztwie jeziora Wicko i rozlewiska rzeki Świna.

Działki zlokalizowane są w zacisznym zakątku tuż pod lasem, za którym przebiega droga gminna którą kursuje autobus.

Cena za metr kwadratowy to 230zł, więc cena działek może się różnić w zależności od ich wielkości.

PARAMETRY

222/6 - 0,2178ha
222/7 - 0,2179ha
222/8 - 0,2351ha
222/9 - 0,3110ha
222/10 - 0,2102ha
222/11 - 0,2114ha

Kształt działek: prostokąt lub kwadrat
Nachylenie: płaska
Ogrodzenie: nie
Wygląd: trawa, krzaki
Klasa gruntu: od 4 do 6 (rolna)
Gleba: sucha
MPZP: tak
Przeznaczenie: 2bRM (zabudowa siedliskowa)
Wskaźnik zabudowy: 25%
Rodzaj budynku: zabudowa wolnostojąca
Maksymalna wysokość budynku: 3 kondygnacje

POŁOŻENIE

Odległość do najbliższych zabudowań: ~80m
Sąsiedztwo: zabudowa mieszkaniowa, tereny niezabudowane, las
Droga wewnętrzna: wytyczona geodezyjnie
Droga dojazdowa: nieutwardzona
Dostęp do drogi publicznej: tak

MEDIA

Wszystkie media (gaz, prąd, woda i kanalizacja) w drodze głównej zaledwie 100 metrów dalej!

OKOLICA

500m - Przystanek autobusowy
1500m -Kościół
1800m - Szkoła
3km - Marina
3km - Droga Krajowa numer 3
4km - Stacja PKP
9km - sklep Biedronka
10km - Tunel Świnoujście
10km - Plaża wschodnia
11km - Międzyzdroje
15km - Promenada Świnoujście
22km - Lotnisko Heringsdorf



Pokaż więcejmniej  

 
Ogólne warunki:
Cena:250 000 PLN
Waluta:PLN
Cena za m2:119 PLN
 
Numer oferty:
CRM:34964534232

Pokaż więcejmniej  

Masz pytania? Napisz!

Przepisz kod captcha:

Polecamy podobne oferty

Zapisz się na powiadomienia o podobnych ofertach

Przepisz kod captcha:

Zaktualizowaliśmy naszą Politykę Prywatności.

Nowe zapisy w Polityce Prywatności wynikają z konieczności dostosowania naszych działań oraz dokumentacji do nowych wymagań europejskiego Rozporządzenia o Ochronie Danych Osobowych (RODO), które jest stosowane od 25 maja 2018 r.

Zaawansowane