Mieszkanie 2 pokojowe na Sprzedaż

2 pokoje 51.2m²
WIELKOPOLSKIE Konin ul. Kaliska

160 000 PLN

Mieszkanie na sprzedaż 2 pokoje Kaliska, Konin 51.2 m²

160 000 PLN Negocjuj cenę >

WIELKOPOLSKIE Konin ul. Kaliska MAPA

1/4

160 000 PLN WYŁĄCZNOŚĆ   

OKAZJA! Przedsprzedaż - NAJTAŃSZE Mieszkanie Konin
Masz „nosa do okazji”? Szukasz taniego M na start? A może szukasz nieruchomości z potencjałem na wynajem i zysk >10% rocznie?
Ta oferta to prawdziwy diament do oszlifowania!
________________________________________
NAJWAŻNIEJSZE ATUTY:
• Lokalizacja: Konin, ul. Kaliska (gmina Konin, woj. wielkopolskie) - świetna komunikacja, spokojna okolica, duży popyt na wynajem.
• Mieszkanie w kamienicy - solidna konstrukcja, cegła, klasyczna architektura.
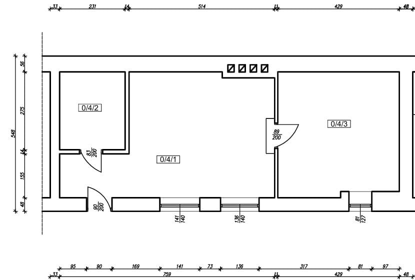
• Łączna powierzchnia użytkowa: 51 m² + wspólny strych do wykorzystania + komórka lokatorska ok 10 m2 (dodatkowo płatna 5 000 zł),
o Kuchnia + Salon - 26 m2,
o W.C / Łazienka - 6 m2,
o Sypialnia - 19 m2,
• Wysokość ponad 3 metry.
• Media: prąd, woda, kanalizacja, światłowód.
• Pełna własność z Księgą Wieczystą.
• NAJLEPSZA CENA W MIEŚCIE!!!
________________________________________
STAN - DO REMONTU:
Nieruchomość wymaga kompleksowej modernizacji:
• remont wnętrz
• instalacja systemu ogrzewania
Przyłącza mediów są sprawne - duży plus przy remoncie!
Rozkład pomieszczeń umożliwia łatwą adaptację pod najem krótkoterminowy lub długoterminowy.
________________________________________
DLA KOGO JEST TA OFERTA?:
- Osoby szukające mieszkania do własnej aranżacji w doskonałej cenie
- Inwestorzy: kup mieszkanie pod wynajem, wyremontuj i czerp stały dochód pasywny >10% rocznie
- Flipperzy: kup - wyremontuj - sprzedaj z zyskiem

________________________________________
DODATKOWE ATUTY:
• Elewacja kamienicy zostanie odnowiona w październiku 2025 bez dodatkowych kosztów dla nowego właściciela mieszkania (wizualizacja przedstawia przykładowy kolor - finalna decyzja w kontekście koloru zapadanie w lipcu 2025)
• Bliskość infrastruktury miejskiej:
o Sklepy (Żabka 350 metrów - 5 min; Lidl - 900 metrów - 10 min),
o Szkoła Podstawowa nr 1 (250 metrów - 3 min)
o Poczta (350 metrów - 5 min)
o Apteka (400 metrów - 6 min)
o Przystanek autobusowy (250 metrów - 3 min)
o Dworzec autobusowy (1 000 metrów - 15 min)
• Rosnące zainteresowanie wynajmem w Koninie - niska konkurencja, wysokie stopy zwrotu
________________________________________
Mieszkanie w tej cenie w Koninie to szansa, która zdarza się rzadko!
Zadzwoń lub napisz - umów się na prezentację i poznaj potencjał tej nieruchomości na żywo!
Nie czekaj, aż ktoś Cię wyprzedzi - zainwestuj zanim wzrosną ceny w regularnej sprzedaży!

Dodatkowo:
poza mieszkaniem 51 m2, w sprzedaży mieszkania: 25 m2 (2 pokoje), 49 m2 (2 pokoje) oraz 37 m2 (2 pokoje).





Pokaż więcejmniej  

 
Ogólne warunki:
Cena:160 000 PLN
Waluta:PLN
Liczba pokoi:2
Powierzchnia:51.2 m²
Cena za m2:3 125 PLN
Rynek:Wtórny
 
Opis budynku:
Rok budowy:1931
Liczba pięter:1
Winda:nie
 
Powierzchnia dodatkowa:
Balkon:nie
Komórka/Piwnica:nie
Loggia:nie
Ogródek:nie
Schowek:tak
Taras:nie
 
Bezpieczeństwo:
Monitoring:nie
Ochrona:nie
Teren ogrodzony:nie
 
Numer oferty:
CRM:34964509058

Pokaż więcejmniej  

Masz pytania? Napisz!

Przepisz kod captcha:

Polecamy podobne oferty

Zapisz się na powiadomienia o podobnych ofertach

Przepisz kod captcha:

Zaktualizowaliśmy naszą Politykę Prywatności.

Nowe zapisy w Polityce Prywatności wynikają z konieczności dostosowania naszych działań oraz dokumentacji do nowych wymagań europejskiego Rozporządzenia o Ochronie Danych Osobowych (RODO), które jest stosowane od 25 maja 2018 r.

Zaawansowane