Mieszkanie 2 pokojowe na Sprzedaż

2 pokoje 46.19m²
MAŁOPOLSKIE Kraków Bronowice ul. Stanisława Przybyszewskiego

990 000 PLN

Mieszkanie na sprzedaż 2 pokoje Stanisława Przybyszewskiego, Krak 46.19 m²

990 000 PLN Negocjuj cenę >

MAŁOPOLSKIE Kraków Bronowice ul. Stanisława Przybyszewskiego MAPA

1/17

990 000 PLN WYŁĄCZNOŚĆ   

MIESZKANIE NA SPRZEDAŻ
Kraków Bronowice / Małe Błonia
ul. Przybyszewskiego 85


Z przyjemnością prezentujemy mieszkanie w Bronowicach.
Nowocześnie wykończone i urządzone w 2023 r.


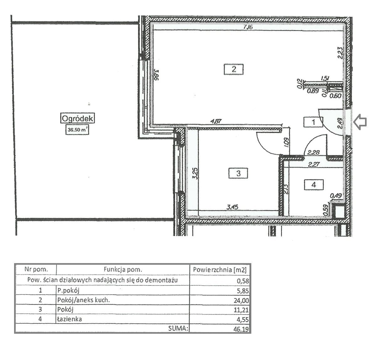
Powierzchnia mieszkania: 46,19 m2
Kondygnacja: parter
Pomieszczenia: salon z aneksem kuchennym i przedpokojem, pokój, łazienka
Ogródek - 36,5 m2

Mieszkanie znajduje się na kameralnym osiedlu - 4 bloki mieszkalne.
Osiedle wzniesione przez Eko Park, oddane do użytku w 2022 r.
Dla mieszkańców - strefa relaksu na poziomie -1.

3 minuty pieszo - Żabka
7 minut pieszo - basen AGH
9 minut pieszo - przystanek autobusowy
15 minut pieszo / 4 minuty rowerem - szlak pieszy i rowerowy wzdłuż Rudawy
20 minut pieszo / 6 minut rowerem - Park Jordana

ogrzewanie i ciepła woda z MPEC
wentylacja mechaniczna wywiewna
klimatyzacja w salonie (1 jednostka)
system alarmowy, kontaktrony w oknach
2 kamery zewnętrzne Hikvision z rejestracją obrazu
podłogi:
- sypialnia - deska drewniana
- pozostałe pomieszczenia - płytki ceramiczne 160 × 80
sufit podwieszany nad aneksem kuchennym
w salonie - nowoczesny szynoprzewód oświetleniowy
w sypialni - ściana oraz instalacja przygotowane pod projektor
wszystkie zabudowy meblowe i meble wolnostojące wykonane na wymiar
Kuchnia:
- kamienny blat o grubości 2 cm
- lodówka z zamrażarką No Frost
- elektryczny wspomagacz (servo drive) do lodówki
- cargo narożne “nerka”
- piekarnik Dual Cook z funkcją pary

Łazienka:
- przestronny prysznic
- bidetka
- pralka oraz suszarka bębnowa
Strefa relaksu na poziomie -1, do wspólnego użytku:
- sala fitness
- pokój zabaw dla dzieci
- sauna
- szatnie z WC i prysznicem
- sala TV
- sala bilardowa
- rowerowania



Pokaż więcejmniej  

 
Ogólne warunki:
Cena:990 000 PLN
Waluta:PLN
Liczba pokoi:2
Powierzchnia:46.19 m²
Cena za m2:21 433 PLN
Rynek:Wtórny
Stan prawny:
 
Opis budynku:
Rok budowy:2022
Liczba pięter:3
Winda:nie
 
Powierzchnia dodatkowa:
Balkon:nie
Komórka/Piwnica:nie
Loggia:nie
Ogródek:nie
Schowek:nie
Taras:nie
 
Bezpieczeństwo:
Monitoring:nie
Ochrona:nie
Teren ogrodzony:nie
 
Numer oferty:
CRM:34964543583

Pokaż więcejmniej  

Klaudia Trzcionka

Agentka Nieruchomości



Masz pytania? Napisz!

Przepisz kod captcha:

Polecamy podobne oferty

Zapisz się na powiadomienia o podobnych ofertach

Przepisz kod captcha:

Zaktualizowaliśmy naszą Politykę Prywatności.

Nowe zapisy w Polityce Prywatności wynikają z konieczności dostosowania naszych działań oraz dokumentacji do nowych wymagań europejskiego Rozporządzenia o Ochronie Danych Osobowych (RODO), które jest stosowane od 25 maja 2018 r.

Zaawansowane