Dom 4 pokojowe na Sprzedaż

4 pokoje 91.6m²
WIELKOPOLSKIE wągrowiecki ul. Żółta

485 000 PLN

Nowoczesny dom w zabudowie szeregowej 91.6 m²

485 000 PLN Negocjuj cenę >

WIELKOPOLSKIE wągrowiecki ul. Żółta MAPA

1/15

485 000 PLN WYŁĄCZNOŚĆ   

Nowoczesny Dom w Zabudowie Szeregowej - Komfort i Natura w Sławie Wielkopolskiej
Mam przyjemność zaprezentować Państwu wyjątkową nieruchomość położoną w Sławie Wielkopolskiej, przy ul. Żółtej - w otoczeniu zieleni, a jednocześnie z doskonałym dostępem do komunikacji i infrastruktury. To idealny dom dla osób ceniących spokój, bliskość natury oraz szybki dojazd do większych miast.

Opis nieruchomości
Dom w zabudowie szeregowej (segment środkowy) o powierzchni użytkowej 91,6 m²  usytuowany jest na działce o powierzchni 195 m². Budynek pochodzi z 2025 roku i sprzedawany jest w stanie deweloperskim, co daje możliwość własnej aranżacji wnętrz.
Nowoczesna bryła, funkcjonalny układ oraz solidne wykonanie zapewniają wygodę codziennego życia.

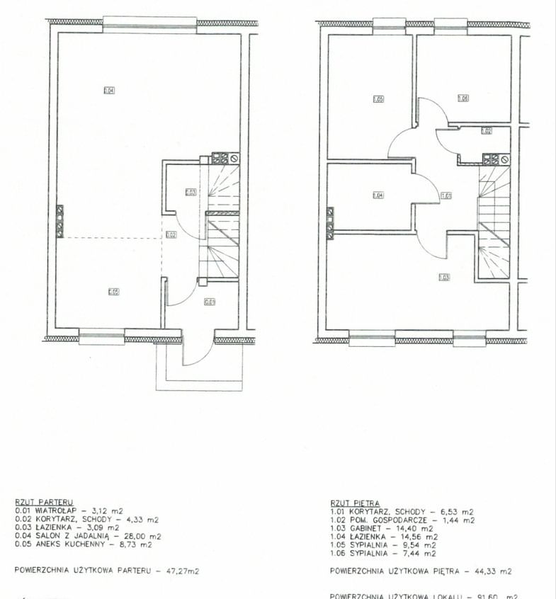
Rozkład pomieszczeń
• Parter: wiatrołap, łazienka z prysznicem, przestronny salon z miejscem na kominek połączony z kuchnią oraz wyjściem na ogród.
• Piętro: trzy ustawne sypialnie, duża łazienka, pomieszczenie gospodarcze/garderoba.
• Poddasze: dodatkowa przestrzeń do zagospodarowania

Atuty nieruchomości
• Nowoczesne i ekonomiczne ogrzewanie - pompa ciepła + ogrzewanie podłogowe,
• Instalacja elektryczna zaprojektowana z dużą ilością gniazdek i punktów świetlnych,
• Przygotowane przyłącza pod monitoring, alarm, domofon, klimatyzację oraz zmiękczacz wody,
• Rolety zewnętrzne sterowane elektrycznie,
• Działka z miejscem na ogród i taras,
• Spokojna okolica - dom otoczony zielenią i bliskością lasu,

Lokalizacja
Sława Wielkopolska, ul. Żółta - kameralna i spokojna okolica w gminie Skoki, zaledwie 35 km od Poznania. Otoczenie zieleni, jezior i lasów tworzy idealne miejsce do życia dla osób poszukujących kontaktu z naturą, a jednocześnie szybkiego i wygodnego dojazdu do miasta. 

Atuty lokalizacji
• Szkoła podstawowa (Skoki) - 4,1 km
• Przedszkole publiczne (Skoki) - 6 km
• Sklep spożywczy i stacja paliw - 750 m
• Stacja kolejowa Skoki - 800m (dogodny dojazd do Poznania ok. 45 minut)
• Plaża nad Jeziorem Włókna - 3 km
• Murowana Goślina - 13 km
• Wągrowiec - 22 km
• Poznań - 35 km

Tu znajdziesz ciszę, bliskość natury i spokój, a jednocześnie szybki dostęp do szkół, sklepów, usług oraz większych miast.

Dlaczego warto?
• Atrakcyjna lokalizacja w otoczeniu zieleni, z doskonałą komunikacją,
• Funkcjonalny układ pomieszczeń, idealny dla rodziny,
• Ekonomiczne i nowoczesne rozwiązania grzewcze,
• Możliwość wykończenia wnętrza według własnych upodobań.
• Planowana kanalizacja - obecnie zbiornik bezodpływowy, z perspektywą podłączenia do sieci.

Dodatkowe nakłady wliczone w cenie:
• Pompa ciepła - 31 000 zł
• Rolety elektryczne - 5 500 zł
• Wyłaz i podłoga na poddaszu - 3 100
• Instalacja elektryczna (gniazdka, oświetlenie, monitoring, klimatyzacja) -  3 500 zł
• Instalacja pod zmiękczacz wody - 800 zł
• Inhibitor do pompy ciepła - 750 zł

Fotografie dołączone do oferty stanowią wizualizacje poglądowe, mające na celu zobrazowanie potencjalnego wyglądu nieruchomości.


To propozycja, która łączy komfort, funkcjonalność i piękne położenie. Dom w Sławie Wielkopolskiej przy ul. Żółtej czeka, by stać się nowym miejscem do życia dla Twojej rodziny.

Zapraszam na prezentację - ta oferta może być Twoim nowym domem!



Pokaż więcejmniej  

 
Ogólne warunki:
Rynek:Pierwotny
Cena:485 000 PLN
Waluta:PLN
Cena za m2:5 295 PLN
Liczba pokoi:4
 
Standard domu:
Stan budynku:deweloperski
Rok budowy:2025
Liczba pięter:1
 
Bezpieczeństwo:
Monitoring:nie
Teren strzeżony:nie
 
Media:
Rodzaj ogrzewania:Pompa ciepła
 
Pomieszczenia i pokoje:
Typ kuchni:Z oknem otwarta na salon
 
Numer oferty:
CRM:34964520528

Pokaż więcejmniej  

Tagi

Masz pytania? Napisz!

Przepisz kod captcha:

Polecamy podobne oferty

Zapisz się na powiadomienia o podobnych ofertach

Przepisz kod captcha:

Zaktualizowaliśmy naszą Politykę Prywatności.

Nowe zapisy w Polityce Prywatności wynikają z konieczności dostosowania naszych działań oraz dokumentacji do nowych wymagań europejskiego Rozporządzenia o Ochronie Danych Osobowych (RODO), które jest stosowane od 25 maja 2018 r.

Zaawansowane