Dom 4 pokojowe na Sprzedaż

4 pokoje 103.15m²
WIELKOPOLSKIE poznański

1 090 000 PLN

Parterowy bliźniak| 4 pokoje| widok na zieleń 103.15 m²

1 090 000 PLN Negocjuj cenę >

WIELKOPOLSKIE poznański MAPA

1/12

1 090 000 PLN WYŁĄCZNOŚĆ   

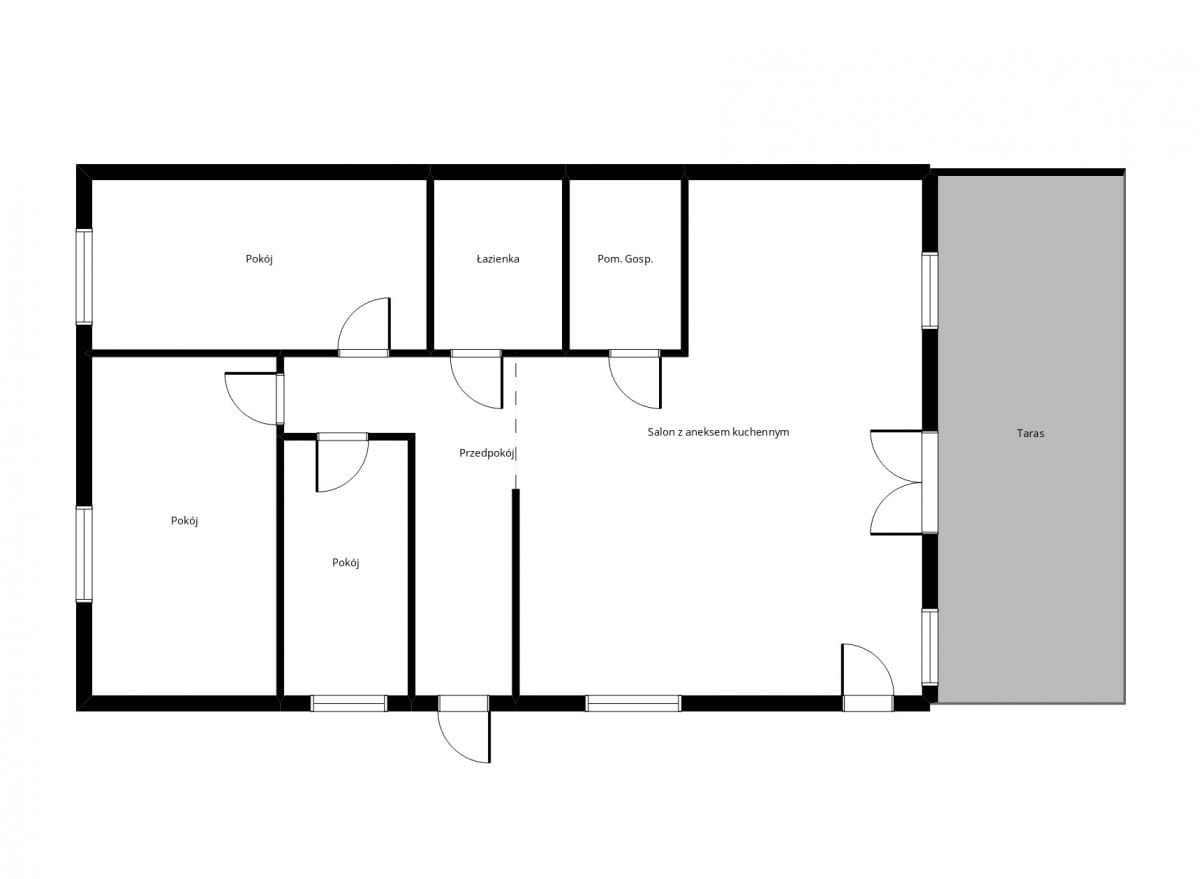
Zapraszam do zapoznania się z ofertą parterowego domu w zabudowie bliźniaczej, zlokalizowanego w miejscowości Babki, gmina Mosina, powiat poznański. 

Opis nieruchomości
Ten wybudowany w 2023 roku parterowy bliźniak charakteryzuje się wysokim standardem wykończenia oraz spójnym, nowoczesnym designem z elementami stylu loftowego.
Na podłogach położono stylową jodełkę winylową, która świetnie komponuje się z czerwoną cegłą na ścianach. Przestronny salon połączony  jest z aneksem kuchennym, gdzie duże przeszklenia otwierają wnętrze na ogród i zapewniają doskonałe doświetlenie.
Bezpośrednio z salonu wyjdziemy na taras z wysokiej jakości desek, na którym znajdują się stylowe meble ogrodowe. Ogród posiada system automatycznego nawadniania zasilany z własnej studni głębinowej. 

Kuchnia zaprojektowana została na wymiar przez stolarza oraz wyposażona w sprzęt AGD (lodówka z kostkarką, zmywarka, płyta indukcyjna, piekarnik, okap oraz ekspres do kawy). 
Obok kuchni znajduje się pomieszczenie gospodarcze. 
W bliźniaku znajdują się również 3 ustawne sypialnie. W holu zamontowano bardzo pojemne szafy na wymiar, które oferują dużo miejsca do przechowywania, a na podłodze położono modne płytki z wzorem lastryko.

Dodatkowe informacje:
Działka: 337 m2
Rodzaj ogrzewania:gazowe (podłogowe w części dziennej i łazienkach, grzejniki w sypialniach)
Standard: rolety zewnętrzne elektryczne, monitoring, nagłośnienie sufitowe, nawadnianie ogrodu ze studni głębinowej, 
Opłaty: Przy zamieszkiwaniu przez 3 osoby, całkowite opłaty (obejmujące gaz, wodę, prąd oraz szambo) wynoszą: woda - 130 zł/ miesiąc, prąd - 200 zł/miesiąc, szambo 300 zł/ 1,5 miesiąca, gaz - 3500 zł/ rocznie. 
Parking: przy posesji dwa miejsca postojowe naziemne

Lokalizacja
szybki dojazd do Poznania oraz tras wylotowych, droga dojazdowa do posesji jest utwardzona, liczne tereny leśne sprzyjające spacerom i wycieczkom rowerowym, pełna infrastruktura w Głuszynie

Jeżeli zainteresowała Państwa ta nieruchomość, zapraszam do kontaktu i umówienia się na prezentacje tej oferty. 



Pokaż więcejmniej  

 
Ogólne warunki:
Rynek:Wtórny
Cena:1 090 000 PLN
Waluta:PLN
Cena za m2:10 567 PLN
Liczba pokoi:4
 
Standard domu:
Stan budynku:wysoki standard
Rok budowy:2023
Liczba pięter:1
 
Bezpieczeństwo:
Monitoring:tak
Teren strzeżony:nie
 
Media:
Rodzaj ogrzewania:Gazowe
 
Pomieszczenia i pokoje:
Typ kuchni:Z oknem otwarta na salon
 
Numer oferty:
CRM:34964547104

Pokaż więcejmniej  

Tagi

Masz pytania? Napisz!

Przepisz kod captcha:

Polecamy podobne oferty

Zapisz się na powiadomienia o podobnych ofertach

Przepisz kod captcha:

Zaktualizowaliśmy naszą Politykę Prywatności.

Nowe zapisy w Polityce Prywatności wynikają z konieczności dostosowania naszych działań oraz dokumentacji do nowych wymagań europejskiego Rozporządzenia o Ochronie Danych Osobowych (RODO), które jest stosowane od 25 maja 2018 r.

Zaawansowane