Mieszkanie 3 pokojowe na Sprzedaż

3 pokoje 77.47m²
MAZOWIECKIE piaseczyński ul. Dworcowa

795 000 PLN

Przestronne mieszkanie z ogródkiem, blisko PKP 77.47 m²

795 000 PLN Negocjuj cenę >

MAZOWIECKIE piaseczyński ul. Dworcowa MAPA

1/9

795 000 PLN WYŁĄCZNOŚĆ   

3 Pokoje z Prywatnym Ogródkiem – 2 minuty do PKP Piaseczno!
Mieszkanie 77,5 m2 które łączy własną zieloną przestrzeń, a jednocześnie z doskonałym połączeniem koleją z centrum Warszawy.

Najważniejsze atuty nieruchomości:
  • Prywatny ogródek (40 m²) Taras (5 m²): Ogródek usytuowany jest z dala od ulicy, co gwarantuje ciszę, spokój i idealne miejsce na poranną kawę lub relaks po pracy.
  • Doskonała komunikacja: Bliskość dworca PKP Piaseczno sprawia, że dojazd do centrum Warszawy jest szybki i wygodny.
  • Przestrzeń i potencjał: 77,5 m² powierzchni daje ogromne możliwości aranżacyjne.
  • Bezpieczeństwo prawne: Mieszkanie posiada Księgę Wieczystą (pełna własność).

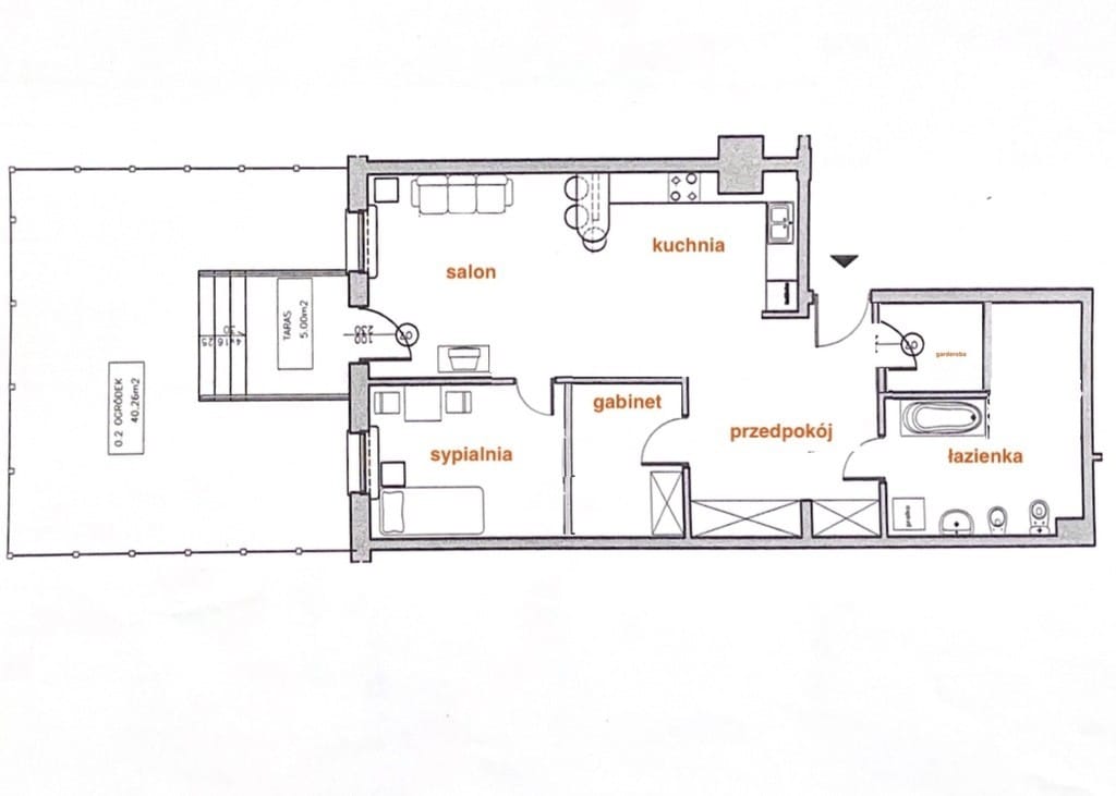
Rozkład pomieszczeń:
Mieszkanie charakteryzuje się bardzo funkcjonalnym układem:
  • Salon z aneksem kuchennym: Przestronne serce domu z bezpośrednim wyjściem na taras i ogródek.
  • Sypialnia: Ustawna i cicha.
  • Gabinet: doświetlony luksferami, co zapewnia dopływ naturalnego światła.
  • Łazienka: Bardzo duża, wyposażona zarówno w wannę, jak i prysznic. Dzięki swojej powierzchni jest idealna dla osób starszych lub z niepełnosprawnościami.
  • Przedpokój i Garderoba: W przedpokoju znajduje się pojemna szafa, a dodatkowa garderoba przy wejściu ułatwia utrzymanie porządku.

  • Mieszkanie znajduje się na parterze i wymaga odświeżenia. To doskonała okazja, aby wykończyć wnętrze dokładnie według własnego gustu i potrzeb.

    Parkowanie: w pobliżu dostępne są liczne bezpłatne miejsca postojowe.





    Pokaż więcejmniej  

     
    Ogólne warunki:
    Cena:795 000 PLN
    Waluta:PLN
    Liczba pokoi:3
    Powierzchnia:77.47 m²
    Cena za m2:10 262 PLN
    Rynek:Wtórny
    Stan prawny:
     
    Opis budynku:
    Rok budowy:2007
    Liczba pięter:4
    Stan budynku:dobry
    Winda:nie
     
    Standard mieszkania:
    Stan nieruchomości:dobry
     
    Pomieszczenia i pokoje:
    Typ kuchni:Aneks kuchenny
     
    Powierzchnia dodatkowa:
    Balkon:nie
    Komórka/Piwnica:nie
    Loggia:nie
    Ogródek:nie
    Schowek:nie
    Taras:nie
     
    Bezpieczeństwo:
    Monitoring:nie
    Ochrona:nie
    Teren ogrodzony:nie
     
    Numer oferty:
    CRM:34964542999

    Pokaż więcejmniej  

    Tagi

    Masz pytania? Napisz!

    Przepisz kod captcha:

    Polecamy podobne oferty

    Zapisz się na powiadomienia o podobnych ofertach

    Przepisz kod captcha:

    Zaktualizowaliśmy naszą Politykę Prywatności.

    Nowe zapisy w Polityce Prywatności wynikają z konieczności dostosowania naszych działań oraz dokumentacji do nowych wymagań europejskiego Rozporządzenia o Ochronie Danych Osobowych (RODO), które jest stosowane od 25 maja 2018 r.

    Zaawansowane