Mieszkanie 2 pokojowe na Sprzedaż

2 pokoje 48m²
ŚLĄSKIE zawierciański ul. Zaparkowa

319 000 PLN

Takie oferty znikają w mgnieniu oka! 48 m²

319 000 PLN Negocjuj cenę >

ŚLĄSKIE zawierciański ul. Zaparkowa MAPA

1/14

319 000 PLN WYŁĄCZNOŚĆ   

UMÓW SIĘ NA DZIEŃ OTWARTY! NIEDZIELA 26.04.26  16:00-18:00 LICZBA MIEJSC OGRANICZONA


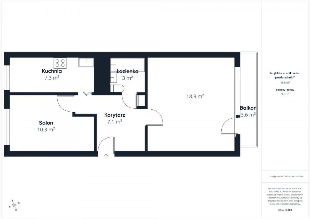
Na sprzedaż funkcjonalne mieszkanie położone przy ul. Zaparkowej w Zawierciu, usytuowane na 1. piętrze w zadbanym, ocieplonym bloku.


Lokal o bardzo praktycznym układzie składa się z dwóch niezależnych pokoi oraz oddzielnej kuchni, co zapewnia wygodę zarówno dla pary, singla, jak i jako inwestycja pod wynajem. Rozkład pomieszczeń daje duże możliwości aranżacyjne i pozwala na łatwe dopasowanie przestrzeni do własnych potrzeb.

Najważniejsze atuty nieruchomości:


  • 2 ustawne, niezależne pokoje

  • oddzielna, widna kuchnia

  • piętro - idealne pod względem komfortu codziennego użytkowania

  • ogrzewanie oraz ciepła woda z piecyka gazowego (junkers)

  • instalacja elektryczna miedziana - po wymianie

  • wymienione piony wodno-kanalizacyjne

  • okna pcv

  • blok po termomodernizacji (ocieplony)



Mieszkanie wymaga odświeżenia, co stanowi dużą zaletę - daje możliwość urządzenia wnętrza według własnego gustu bez konieczności przeprowadzania kosztownych prac instalacyjnych.

Lokalizacja to jeden z największych atutów tej oferty - spokojna, zielona okolica zapewnia komfort życia, a jednocześnie bliskość sklepów, punktów usługowych oraz komunikacji miejskiej gwarantuje wygodę na co dzień.

To doskonała propozycja zarówno dla osób szukających mieszkania dla siebie, jak i dla inwestorów pod wynajem.

Zapraszam do kontaktu i umówienia się na prezentację.



Pokaż więcejmniej  

 
Ogólne warunki:
Cena:319 000 PLN
Waluta:PLN
Liczba pokoi:2
Powierzchnia:48 m²
Cena za m2:6 646 PLN
Czynsz administracyjny:750 zł
Rynek:Wtórny
 
Opis budynku:
Rodzaj budynku:Blok mieszkalny
Rok budowy:1980
Liczba pięter:4
Piętro:1
Stan budynku:dobry
Winda:nie
 
Standard mieszkania:
Stan nieruchomości:dobry
Rodzaj ogrzewania:CO miejskie
 
Pomieszczenia i pokoje:
Typ kuchni:Zamykana z oknem
 
Powierzchnia dodatkowa:
Balkon:tak
Komórka/Piwnica:tak
Loggia:nie
Ogródek:nie
Schowek:nie
Taras:nie
 
Bezpieczeństwo:
Monitoring:nie
Ochrona:nie
Teren ogrodzony:nie
 
Numer oferty:
CRM:34964550342

Pokaż więcejmniej  

Tagi

Masz pytania? Napisz!

Przepisz kod captcha:

Polecamy podobne oferty

Zapisz się na powiadomienia o podobnych ofertach

Przepisz kod captcha:

Zaktualizowaliśmy naszą Politykę Prywatności.

Nowe zapisy w Polityce Prywatności wynikają z konieczności dostosowania naszych działań oraz dokumentacji do nowych wymagań europejskiego Rozporządzenia o Ochronie Danych Osobowych (RODO), które jest stosowane od 25 maja 2018 r.

Zaawansowane