Dom 4 pokojowe na Sprzedaż

4 pokoje 121m²
ŚLĄSKIE mikołowski

726 000 PLN

Twoje Miejsce w Mikołowie 121 m²

726 000 PLN Negocjuj cenę >

ŚLĄSKIE mikołowski MAPA

1/18

726 000 PLN WYŁĄCZNOŚĆ   

Nowoczesne Osiedle Domów Szeregowych w Mikołowie

Inwestycja Solaris to osiedle dziesięciu domów w zabudowie szeregowej zlokalizowane przy ul. Lema w Mikołowie.
To idealne miejsce dla rodzin szukających komfortu, prywatności i wygody w spokojnym, zielonym otoczeniu, a jednocześnie blisko centrum miasta.

Nowoczesna architektura i komfortowy układ

Każdy dom został zaprojektowany z myślą o funkcjonalności i estetyce.

W ofercie dostępne są trzy warianty metrażowe.

Oferta dotyczy gotowego budynku w stanie surowym zamkniętym.

Wariant A (A1 i A10) - 136,66 m²
Segmenty skrajne z czterema sypialniami, dwoma łazienkami, garderobą i garażem w bryle budynku.
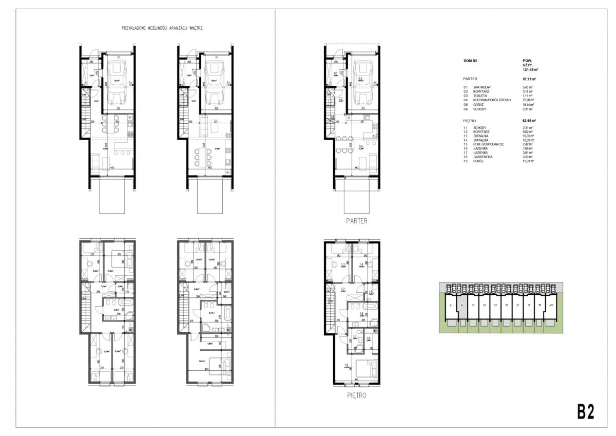
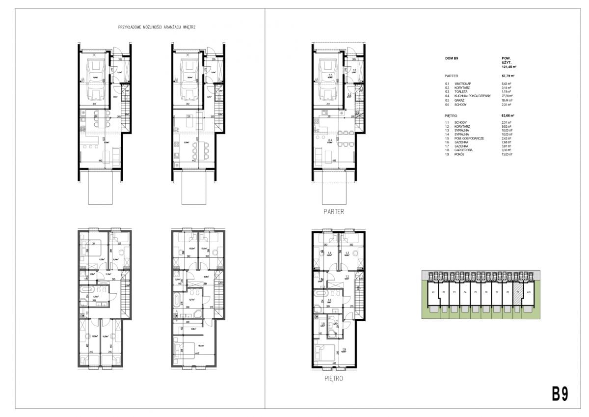
• Wariant B (B2 i B9) - 121,45 m² - oferowany
Domy środkowe z trzema sypialniami, otwartą strefą dzienną i dużym salonem z wyjściem do ogrodu.
Wariant C (C3-C8) - 128,83 m²
Komfortowe segmenty środkowe z trzema sypialniami, garderobą, pomieszczeniem gospodarczym i dwiema łazienkami.

Na tym etapie możliwość indywidualnych zmian i modyfikacji.

Każdy lokal posiada garaż jednostanowiskowy, dodatkowe miejsce postojowe, taras i prywatny ogródek.

Nowoczesne technologie i energooszczędność

Domy wyposażone są w:
• ogrzewanie podłogowe w całym budynku;
• instalację przygotowaną pod pompę ciepła;
• możliwość montażu paneli fotowoltaicznych;
• okna trzyszybowe i ocieplenie styropianem 20 cm;
• instalację do ładowania samochodu elektrycznego.

Zastosowane rozwiązania zapewniają wysoką efektywność energetyczną i niskie koszty utrzymania.

Lokalizacja:

Osiedle Solaris znajduje się w doskonałej lokalizacji:
• centrum Mikołowa - 550 m (6 minut pieszo);
• szkoła podstawowa - 850 m;
• przedszkole - 300 m;
• centrum handlowe - 1 km;
• szpital i dworzec PKP - 1,7 km;
• szybki dojazd do Katowic (16 km) i Tychów (11 km).

Cicha, spokojna okolica z zabudową jednorodzinną i pełną infrastrukturą miejską.

Parametry techniczne
• Rok rozpoczęcia budowy: 2025;
• Planowane zakończenie: 2026;
• Typ zabudowy: szeregowa, 2 kondygnacje;
• Materiały: pustak ceramiczny, strop żelbetowy typu filigran;
• Dach: płaski, papa termozgrzewalna;
• Media: prąd, woda, kanalizacja miejska;
• Ogrzewanie: podłogowe (pompa ciepła).

Atuty inwestycji Solaris


  • Nowoczesna architektura i funkcjonalne wnętrza;

  • Energooszczędne rozwiązania - pompa ciepła, fotowoltaika;

  • Garaż w bryle budynku i dodatkowe miejsce postojowe;

  • Taras i własny ogródek w każdym segmencie;

  • Bliskość centrum Mikołowa i pełnej infrastruktury;

  • Możliwość indywidualnej aranżacji wnętrza;

  • Cicha, spokojna okolica z szybkim dojazdem do głównych dróg.


Więcej informacji udzielimy telefonicznie. Zapraszamy również na spotkanie i prezentację.



Pokaż więcejmniej  

 
Ogólne warunki:
Rynek:Pierwotny
Cena:726 000 PLN
Waluta:PLN
Cena za m2:6 000 PLN
Liczba pokoi:4
 
Standard domu:
Rok budowy:2026
Liczba pięter:1
 
Bezpieczeństwo:
Monitoring:nie
Teren strzeżony:nie
 
Media:
Rodzaj ogrzewania:Pompa ciepła
 
Pomieszczenia i pokoje:
Typ kuchni:Z oknem otwarta na salon
 
Numer oferty:
CRM:34964535421

Pokaż więcejmniej  

Tagi

Masz pytania? Napisz!

Przepisz kod captcha:

Polecamy podobne oferty

Zapisz się na powiadomienia o podobnych ofertach

Przepisz kod captcha:

Zaktualizowaliśmy naszą Politykę Prywatności.

Nowe zapisy w Polityce Prywatności wynikają z konieczności dostosowania naszych działań oraz dokumentacji do nowych wymagań europejskiego Rozporządzenia o Ochronie Danych Osobowych (RODO), które jest stosowane od 25 maja 2018 r.

Zaawansowane