Dom 5 pokojowe na Sprzedaż

5 pokoje 180m²
MAZOWIECKIE grodziski

1 248 000 PLN

150/Bliźniak/stan deweloperski/bez prowizji 180 m²

1 248 000 PLN Negocjuj cenę >

MAZOWIECKIE grodziski MAPA

1/17

1 248 000 PLN WYŁĄCZNOŚĆ   

Zachęcam do zapoznania się z ofertą sprzedaży bliźniaka położonego w miejscowości Adamów pod Milanówkiem. Brak PCC oraz prowizji dla biura nieruchomości.

Dom położony na działce 671,5 mkw. w otoczeniu zabudowy jednorodzinnej.

Lokal o powierzchni użytkowej 149,43 mkw. składa się:

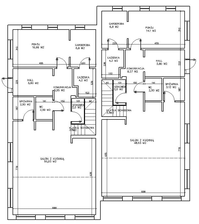
PARTER


  •  Salon z kuchnią 50,53 mkw. (wysokość salonu około 6,5 metra)

  •  Spiżarnia 2,5 mkw.

  •  WC 2,5 mkw.

  •  Hol 5,8 mkw.

  •  Komunikacja 5,55 mkw. 

  •  Schowek 2,0 mkw.

  •  Sypialnia główna 16,99 mkw.

  •  Garderoba 4,2 mkw.

  •  Łazienka 4,2 mkw.

  • Klatka schodowa 3,8 mkw. 

  •  Łącznie 100,67


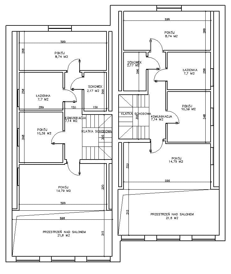
Piętro 


  • Komunikacja 7,14 mkw.

  •  Łazienka z oknem 7,7 mkw.

  •  Sypialnia 10,39 mkw.

  •  Sypialnia 8,79 mkw.

  •  Antresola 14 mkw.

  •  Łącznie 48,76 mkw.


Możliwość zmiany układu pomieszczeń przez dewelopera na życzenie klienta.

Garaż wolnostojący dwu stanowiskowy o powierzchni 30 MKW.

INSTALACJE:

Oferta obejmuje budynek w stanie deweloperskim, wraz ze wszystkimi niezbędnymi instalacjami:
-elektryczna
-hydrauliczna
-wodno-kanalizacyjna
-centralnego ogrzewanie
-wentylacyjna (rekuperacja)
-pompa ciepła
-ogrzewanie podłogowe
-możliwość zamontowania klimatyzacji na życzenie klienta

TEREN:

-Teren ogrodzony i uporządkowany
-Dojścia i dojazd do budynku wykonane z kostki betonowej
-Brama wjazdowa przesuwna z napędem plus furtka.
-możliwość wykonania ogrodu, nawodnienia i oświetlenia ogrodowego.

Miłe sąsiedztwo, spokojna okolica.

Milanówek PKP - 4km (5min)
Grodzisk PKP - 5km (5min)
PKiN - 35 km (30 min)

Bardzo dobry dojazd do Warszawy położoną niedaleko trasą A2. W najbliższej okolicy Grodzisk MAZ i Milanówek, w którym znajdują się liczne sklepy, szkoły, ośrodek zdrowia, apteki oraz inne obiekty usługowe.

Bezpieczny zakup
• zaufany deweloper

Stan prawny pełna własność zakup od dewelopera brak PCC.

Planowane oddanie 1 Lipiec 2025.


Serdecznie zapraszam na prezentację!





Pokaż więcejmniej  

 
Ogólne warunki:
Rynek:Pierwotny
Cena:1 248 000 PLN
Waluta:PLN
Cena za m2:6 933 PLN
Liczba pokoi:5
 
Standard domu:
Stan budynku:deweloperski
Rok budowy:2025
Liczba pięter:2
 
Bezpieczeństwo:
Monitoring:tak
Teren strzeżony:nie
 
Media:
Rodzaj ogrzewania:Pompa ciepła
 
Pomieszczenia i pokoje:
Typ kuchni:Aneks kuchenny
 
Numer oferty:
CRM:34964531334

Pokaż więcejmniej  

Tagi

Masz pytania? Napisz!

Przepisz kod captcha:

Polecamy podobne oferty

Zapisz się na powiadomienia o podobnych ofertach

Przepisz kod captcha:

Zaktualizowaliśmy naszą Politykę Prywatności.

Nowe zapisy w Polityce Prywatności wynikają z konieczności dostosowania naszych działań oraz dokumentacji do nowych wymagań europejskiego Rozporządzenia o Ochronie Danych Osobowych (RODO), które jest stosowane od 25 maja 2018 r.

Zaawansowane