Mieszkanie 3 pokojowe na Sprzedaż

3 pokoje 59m²
MAZOWIECKIE Warszawa Mokotów ul. Augustówka

800 000 PLN

3-POKOJOWE MIESZKANIE NA ZIELONEJ SADYBIE, CICHE! 59 m²

800 000 PLN Negocjuj cenę >

MAZOWIECKIE Warszawa Mokotów ul. Augustówka MAPA

1/15

800 000 PLN WYŁĄCZNOŚĆ   

Poszukujesz ładnego, słonecznego mieszkania dla swojej rodziny?
Może lubisz spędzać czas wśród zieleni i wody na pobliskim Jeziorku Czerniakowskim
lub interesuje Cię dobrze skomunikowane, ale ciche mieszkanie?
Możesz śmiało przejść do dalszej części opisu trzypokojowego mieszkania na Mokotowskiej Sadybie niedaleko Sadyba Best Mall.

W SKRÓCIE:
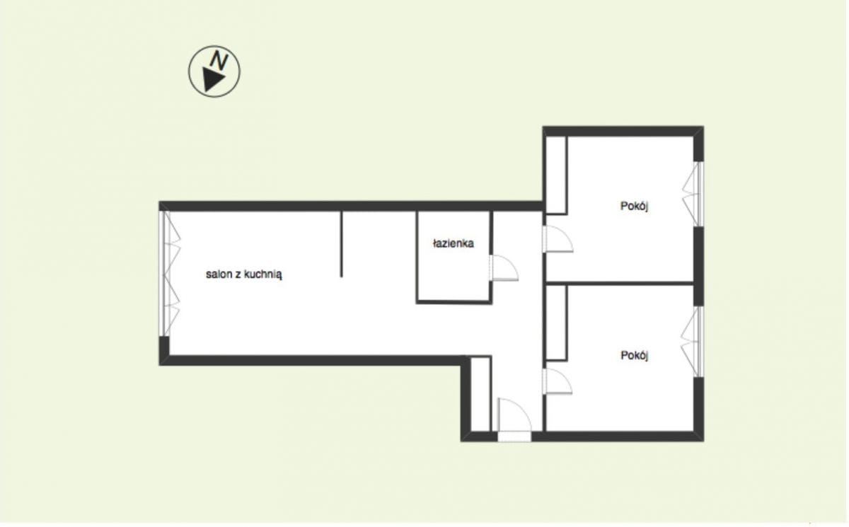
Proponowane mieszkanie znajduje się w spokojnej i cichej okolicy: zaraz obok ulicy Wiertniczej. Stąd do autobusu mamy 150 m. Mieszkanie składa się z dwóch pokoi, salonu ze sporą kuchnią. Funkcjonalna łazienka z wanną. W przedpokoju oraz dwóch sypialniach trzy pojemne szafy wnękowe. Lokal znajduje się na pierwszym z dwóch pięter w budynku bez windy.

CO WYRÓŻNIA TO MIESZKANIE?
Przede wszystkim mieszkanie znajduje się w bardzo cichej okolicy, na osiedlu przypominającym bardziej zabudowę jednorodzinną niż wielkomiejskie osiedla. 
Warto wspomnieć o dużej ilości zieleni oraz jeziorku Czerniakowskim w sąsiedztwie i szerokiej dostępności wszelkiego rodzaju usług: sklepy spożywcze, Centrum Handlowe Sadyba Best Mall - w nim Cinema City, supermarket, siłownia, fitness club, fryzjer, kosmetyczka.
Obok osiedla znajduje się ścieżka prowadząca przez ogródki działkowe aż do samego Jeziorka Czerniakowskiego.

KOMUNIKACJA:
W pobliżu mamy autobusy:
- 163 do metra M1
- 131, 180 w stronę Centrum

DLA KOGO?:
W mieszkaniu najlepiej będzie się czuła para lub małżeństwo z dzieckiem.

STATUS PRAWNY:
Odrębna własność z księgą wieczystą. Bez problemu uzyskasz kredyt na to mieszkanie.
Do mieszkania przynależy miejsce postojowe przy budynku dodatkowo płatne 25 000 zł
Grunty są uregulowane i są na własność, co skutkuje niskim podatkiem rocznym w wysokości kilkudziesięciu złotych

ZAPROSZENIE:
W celu umówienia prezentacji zapraszam do kontaktu telefonicznego.



Powyższa oferta ma charakter informacyjny i nie stanowi oferty handlowej w rozumieniu art. 66 §1 Kodeksu Cywilnego.



Pokaż więcejmniej  

 
Ogólne warunki:
Cena:800 000 PLN
Waluta:PLN
Liczba pokoi:3
Powierzchnia:59 m²
Cena za m2:13 559 PLN
Czynsz administracyjny:620 zł
Rynek:Wtórny
 
Opis budynku:
Rodzaj budynku:Blok mieszkalny
Rok budowy:2002
Liczba pięter:2
Piętro:1
Stan budynku:bardzo dobry
Winda:nie
 
Standard mieszkania:
Stan nieruchomości:bardzo dobry
Rodzaj ogrzewania:Elektryczne
 
Pomieszczenia i pokoje:
Typ kuchni:Bez okna otwarta na salon
 
Powierzchnia dodatkowa:
Balkon:nie
Komórka/Piwnica:nie
Loggia:nie
Ogródek:nie
Schowek:nie
Taras:nie
 
Bezpieczeństwo:
Monitoring:tak
Ochrona:tak
Teren ogrodzony:tak
 
Numer oferty:
CRM:34964551088

Pokaż więcejmniej  

Tagi

Roberto Sochaj

Pośrednik w Obrocie Nieruchomościami



Masz pytania? Napisz!

Przepisz kod captcha:

Polecamy podobne oferty

Zapisz się na powiadomienia o podobnych ofertach

Przepisz kod captcha:

Zaktualizowaliśmy naszą Politykę Prywatności.

Nowe zapisy w Polityce Prywatności wynikają z konieczności dostosowania naszych działań oraz dokumentacji do nowych wymagań europejskiego Rozporządzenia o Ochronie Danych Osobowych (RODO), które jest stosowane od 25 maja 2018 r.

Zaawansowane