Mieszkanie 3 pokojowe na Sprzedaż

3 pokoje 60.6m²
MAZOWIECKIE Warszawa Targówek ul. Turmoncka

695 000 PLN

3-pokojowe mieszkanie z garderobą 60.6 m²

695 000 PLN Negocjuj cenę >

MAZOWIECKIE Warszawa Targówek ul. Turmoncka MAPA

1/18

695 000 PLN WYŁĄCZNOŚĆ   

Mieszkanie trzypokojowe z zabudowana loggią i oddzielną garderobą na warszawskim Bródnie w dzielnicy Targówek.
Całkowita powierzchnia 60,6 ㎡ z pomieszczenie przynależnym piwnicą o powierzchni 1,7m2.
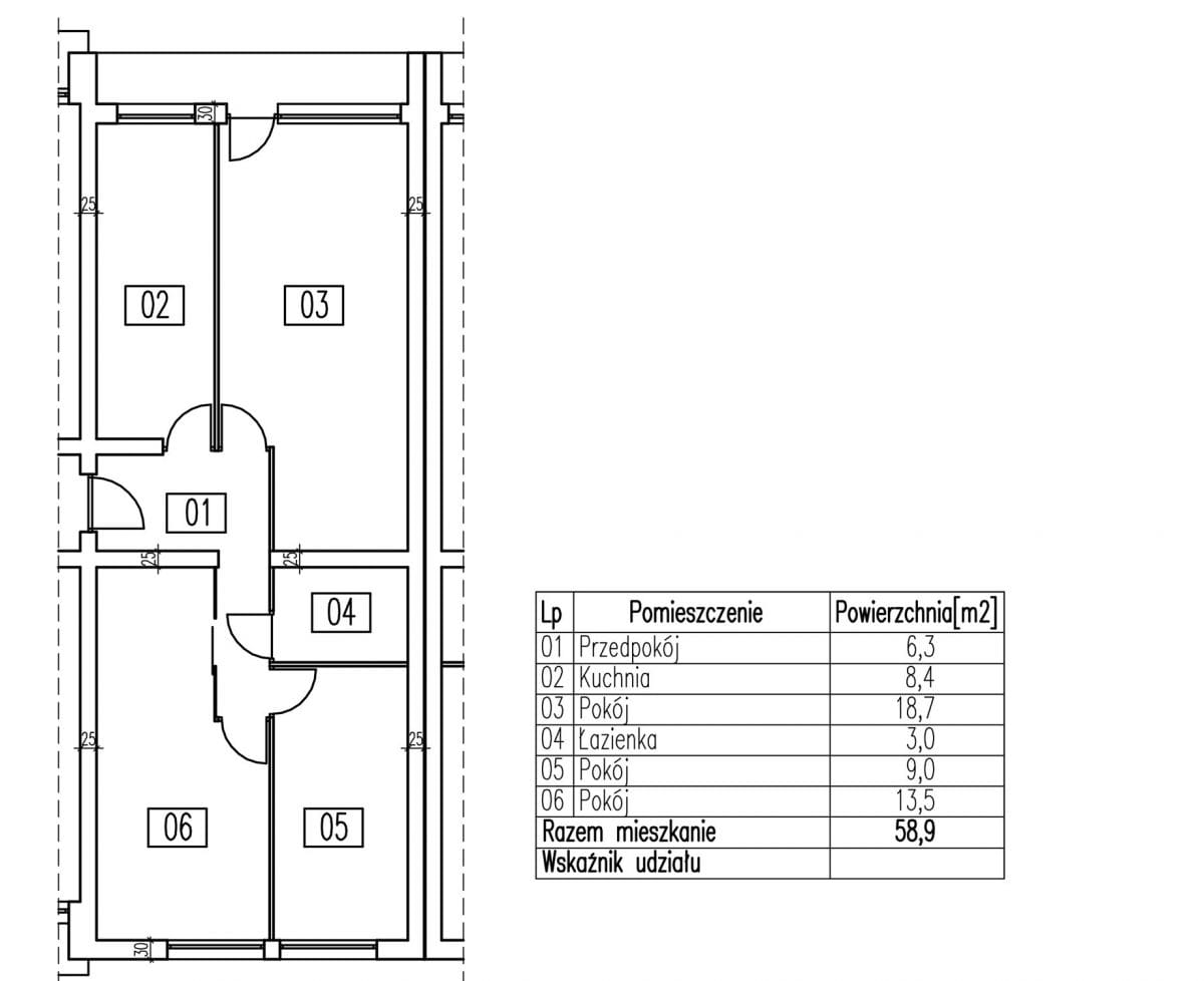
Powierzchnia mieszkania to 58,9 m2 + zabudowana loggia około 3 m2
Kable światłowodowe są dostępne w całym budynku dla szybkiego dostępu do Internetu. Duży pokój z wyjściem na przyjemna zabudowaną loggię z widokiem na stadion. Widna kuchnia z oknem.
Rozkład pomieszczeń i powierzchnia w przybliżeniu
Pokój 18,7 m2 z wyjściem na loggię
Pokój 10 m2
Pokój 9 m2
Kuchnia 8,4 m2
Łazienka 3 m2
Garderoba 3,2 m2
Hall 6,3 m2
Na podłodze mozaika i terakota.
Ekspozycja okien na stronę wschodnią i zachodnią.
Mieszkanie wymaga remontu.
Istnieje wiele możliwości aranżacji tego mieszkania. Garderoba może być również przystosowana na gabinet do pracy. Istnieje możliwość zaadoptowania miejsca na dodatkową toaletę z wc w pobliży łazienki.
Za to blok jest bardzo dobrze utrzymany, wyremontowane klatki schodowe, nowe windy, wymienione piony wodnokanalizacyjne.
W budynku znajduje się zamykane pomieszczenie na rowery.
Forma własności:
Odrębna nieruchomość z księga wieczystą. Mieszkanie można zakupić w kredycie.
Lokalizacja:
W środku osiedla, cicho i zielono.
Ale okolica jest bardzo dobrze skomunikowana. W pobliżu stacji metra Kondratowicza oddalona o 2 przystanki autobusowe.
W pobliżu znajduje się wiele miejsc parkingowych. Teren z dużą ilością zieleni. W pobliżu Las Bródnowski, Park Bródnowski, basen, korty tenisowe, boiska, sklepy.
Przystanki wielu linii autobusowych (200 m do pętli autobusowej). Nie zajmie nam też dużo czasu dotarcie do przystanku tramwajowego
Lokalizacja mieszkania pozwala także na realizacje podstawowych potrzeb mieszkańców. Jest to oferta dla rodzin z dziećmi; w promieniu kilkuset metrów są przedszkola i trzy szkoły podstawowe. Bez problemu zrobimy zarówno mniejsze zakupy (Żabka, Biedronka, piekarnia, drogerie), jak i większe zakupy (CH Targówek, Factory Annopol, Homepark Targówek). Dodatkowo dzięki bliskiemu położeniu basenu oraz kompleksu boisk sportowych jest to też doskonała oferta dla osób aktywnych fizycznie.



Pokaż więcejmniej  

 
Ogólne warunki:
Cena:695 000 PLN
Waluta:PLN
Liczba pokoi:3
Powierzchnia:60.6 m²
Cena za m2:11 469 PLN
Rynek:Wtórny
 
Opis budynku:
Rodzaj budynku:Blok mieszkalny
Rok budowy:1971
Liczba pięter:10
Piętro:4
Stan budynku:do adaptacji
Winda:tak
 
Standard mieszkania:
Stan nieruchomości:do adaptacji
Rodzaj ogrzewania:CO miejskie
 
Pomieszczenia i pokoje:
Typ kuchni:Zamykana z oknem
 
Powierzchnia dodatkowa:
Balkon:nie
Komórka/Piwnica:tak
Loggia:tak
Ogródek:nie
Schowek:nie
Taras:nie
 
Bezpieczeństwo:
Monitoring:nie
Ochrona:nie
Teren ogrodzony:nie
 
Numer oferty:
CRM:34964544973

Pokaż więcejmniej  

Tagi

Agnieszka Gozdek

Pośredniczka w Obrocie Nieruchomościami



Masz pytania? Napisz!

Przepisz kod captcha:

Polecamy podobne oferty

Zapisz się na powiadomienia o podobnych ofertach

Przepisz kod captcha:

Zaktualizowaliśmy naszą Politykę Prywatności.

Nowe zapisy w Polityce Prywatności wynikają z konieczności dostosowania naszych działań oraz dokumentacji do nowych wymagań europejskiego Rozporządzenia o Ochronie Danych Osobowych (RODO), które jest stosowane od 25 maja 2018 r.

Zaawansowane