Mieszkanie 1 pokojowe na Sprzedaż

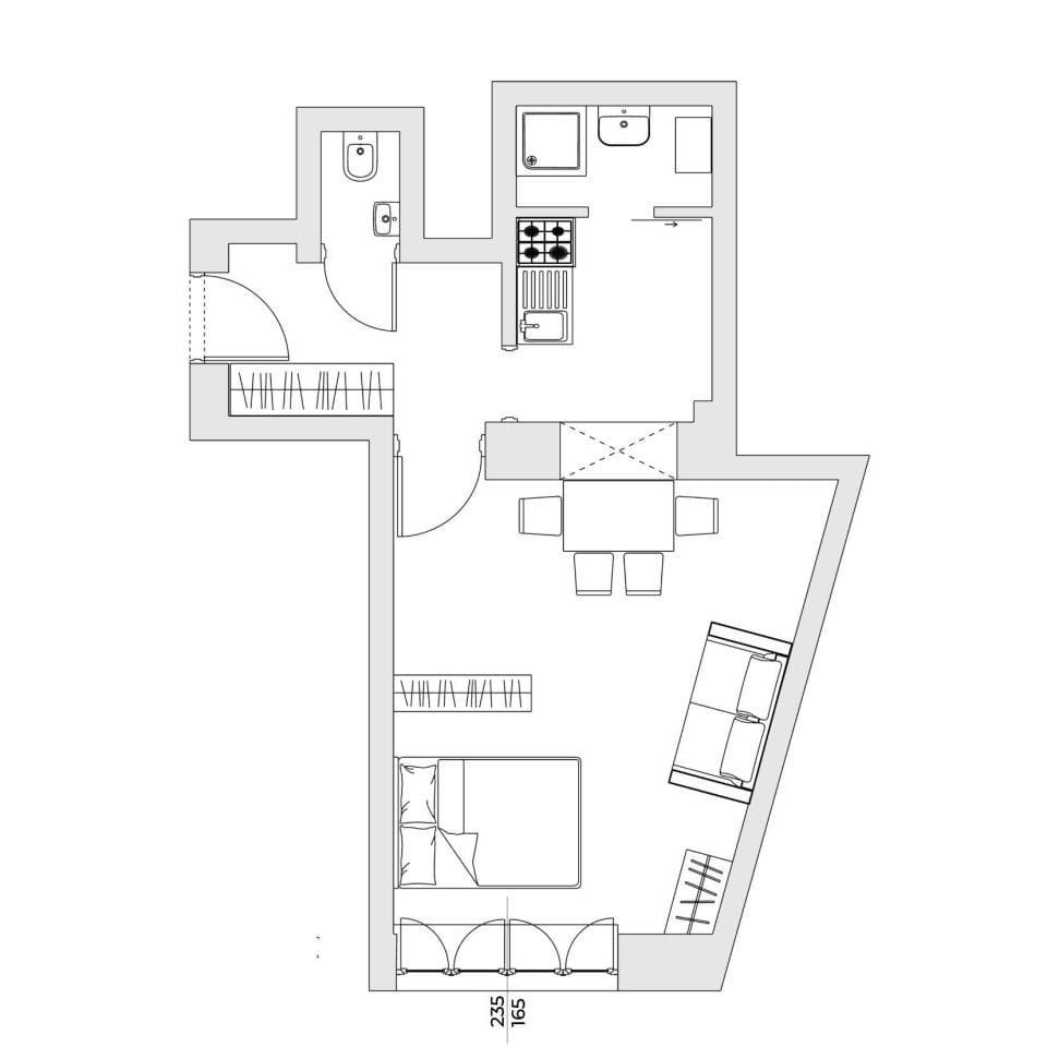
1 pokoje 32.44m²
MAZOWIECKIE Warszawa Wola Młynów ul. Wolska

568 000 PLN

Klimat przedwojennej Warszawy – kamienica z duszą 32.44 m²

568 000 PLN Negocjuj cenę >

MAZOWIECKIE Warszawa Wola Młynów ul. Wolska MAPA

1/12

568 000 PLN WYŁĄCZNOŚĆ   

Wyobraź sobie, że budzisz się w miejscu, gdzie historia spotyka się z rytmem miasta. Kamienica, w której zachowano przedwojenną duszę, a jednocześnie zapewniono komfort codziennego życia. Mieszkanie przy ul. Wolskiej to przestrzeń dla tych, którzy cenią autentyczność, świetną lokalizację i kameralny klimat starej Warszawy.

Idealna propozycja dla inwestora, singla lub pary szukającej klimatycznego mieszkania w centrum miasta.

ADRES: ul. Wolska 82, Warszawa - Wola

ATUTY NIERUCHOMOŚCI:
Kamienica z historią - unikatowa architektura, solidne mury, przedwojenny klimat
Oryginalna dębowa klepka - po renowacji, w doskonałym stanie, dodaje wnętrzu szlachetności i charakteru
Pierwsze piętro - najchętniej wybierane w tego typu zabudowie, łączy wygodę i dostępność
Stan do wykończenia - przestrzeń do stworzenia mieszkania dokładnie według własnego pomysłu
Piwnica w cenie
Kameralne sąsiedztwo i zamykane podwórko
Fantastyczna komunikacja - tramwaj i autobus tuż pod kamienicą, 450 m do metra Płocka
Centrum miasta w zasięgu 10 minut metrem

STAN PRAWNY: Pełna własność - możliwy zakup na kredyt

MIESZKANIE:
32,44 m² - optymalny metraż dla singla, pary lub inwestora
Kuchnia i łazienka do własnej aranżacji - pozwalają dopasować wnętrze do stylu życia
Ekspozycja południowo-zachodnia - naturalne światło i ciepły klimat wnętrza
Wysokie sufity charakterystyczne dla kamienic - poczucie przestrzeni i elegancji

BUDYNEK:
Kamienica z 1925 roku położona w sercu Woli, wśród zieleni i miejskiej zabudowy. Zachowana przedwojenna fasada i solidne mury gwarantują niepowtarzalny klimat. Niska zabudowa i pierwsze piętro zapewniają komfort codziennego użytkowania.
Miejsca postojowe na podwórku (wjazd przez bramę na pilota). Możliwość parkowania w strefie dzięki abonamentowi mieszkańca ZDM.

OKOLICA:
Piekarnia Grzybki i Żabka w tym samym budynku
Auchan - 2 min spacerem
Biedronka - 7 min spacerem
Siłownia - 1 min spacerem
Centrum miasta - 10 min metrem
Park Edwarda Szymańskiego - 10 min spacerem

Nie zwlekaj! Ta lokalizacja jest bardzo wyjątkowa.
Otwórz drzwi do miejsca z charakterem - umów się na prezentację.





Pokaż więcejmniej  

 
Ogólne warunki:
Cena:568 000 PLN
Waluta:PLN
Liczba pokoi:1
Powierzchnia:32.44 m²
Cena za m2:17 509 PLN
Czynsz administracyjny:833 zł
Rynek:Wtórny
 
Opis budynku:
Rok budowy:1925
Liczba pięter:4
Piętro:1
Winda:nie
 
Powierzchnia dodatkowa:
Balkon:nie
Komórka/Piwnica:tak
Loggia:nie
Ogródek:nie
Schowek:nie
Taras:nie
 
Bezpieczeństwo:
Monitoring:nie
Ochrona:nie
Teren ogrodzony:nie
 
Numer oferty:
CRM:34964535913

Pokaż więcejmniej  

Tagi

Karolina Grudzińska-Wolińska

Managerka Zespołu / Pośredniczka w Obrocie Nieruchomościami



Masz pytania? Napisz!

Przepisz kod captcha:

Polecamy podobne oferty

Zapisz się na powiadomienia o podobnych ofertach

Przepisz kod captcha:

Zaktualizowaliśmy naszą Politykę Prywatności.

Nowe zapisy w Polityce Prywatności wynikają z konieczności dostosowania naszych działań oraz dokumentacji do nowych wymagań europejskiego Rozporządzenia o Ochronie Danych Osobowych (RODO), które jest stosowane od 25 maja 2018 r.

Zaawansowane