Mieszkanie 4 pokojowe na Sprzedaż

4 pokoje 69.12m²
MAZOWIECKIE warszawski zachodni ul. Józefa Poniatowskiego

801 792 PLN

4 POKOJE | 69,12 m2 | NOWE | OGRÓDEK 75 m2 69.12 m²

801 792 PLN Negocjuj cenę >

MAZOWIECKIE warszawski zachodni ul. Józefa Poniatowskiego MAPA

1/5

801 792 PLN WYŁĄCZNOŚĆ   

4 POKOJE | 69,12 m2 | NOWE | OGRÓDEK 75 m2 | KOMÓRKA 10,45m2


Na sprzedaż nowe, bardzo funkcjonalne mieszkanie 4-pokojowe o powierzchni 69,12 m2, położone na parterze, z prywatnym ogródkiem o pow. 75,3 m2 oraz dużą komórką lokatorską o pow.10,45 m2 !


Nieruchomość znajduje się w II etapie inwestycji „Osiedle Floriana” w Ożarowie Mazowieckim, w świetnej lokalizacji w centrum miasta przy ul. Józefa Poniatowskiego.


Planowany termin ukończenia: czerwiec 2027 r.


Mieszkanie jest oferowane z wyjątkowo dogodnym harmonogramem płatności, gdzie większość ceny płatna jest dopiero przy odbiorze

mieszkania!

Cena mieszkania: 801.792 zł.

Dodatkowo (zakup obowiązkowy):
• podwójne miejsce postojowe (rodzinne) w garażu podziemnym - 50 000 zł
• komórka lokatorska (10,45 m²) - 48 000 zł

Harmonogram płatności:

• ok. 20% przy podpisaniu umowy
• ok. 80% po uzyskaniu pozwolenia na użytkowanie (czerwiec 2027 r.)

Kupujący nie ponosi kosztów prowizji.

Sprzedaż odbywa się na zasadzie cesji umowy, zawieranej u notariusza.

Najważniejsze atuty:

• 4 ustawne pokoje - idealne dla rodziny
• Duży, prywatny ogródek 75 m2 - przestrzeń jak w domu
• przestronna komórka lokatorska (10,45 m2)
• podwójne miejsce parkingowe (rodzinne)
• nowa inwestycja - nowoczesny standard i rozwiązania
• doskonała lokalizacja: centrum Ożarowa, szybki dojazd do Warszawy

Duży ogród oraz ponadstandardowa komórka lokatorska to rzadkość w nowych inwestycjach - znacząco podnoszą komfort codziennego życia.

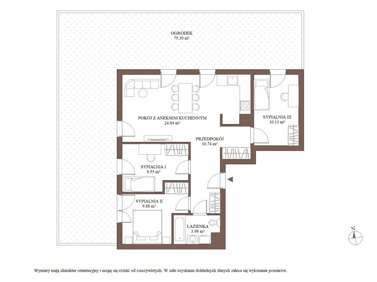
Układ pomieszczeń:

• salon z aneksem kuchennym - 24,84 m2
• sypialnia 1 - 9,55 m2
• sypialnia 2 - 9,88 m2
• sypialnia 3 - 10,13 m2
• łazienka - 3,98 m2
• przedpokój - 10,74 m2

Lokalizacja i komunikacja:

• ok. 10 minut pieszo do stacji SKM/PKP - dojazd do centrum Warszawy w ok. 20 minut
• przystanek autobusowy bezpośrednio przy osiedlu
• ok. 15 minut do planowanej stacji metra Warszawa Karolin (oddanie: koniec 2026 r.)
• w pobliżu: sklepy, szkoły, przedszkola i pełna infrastruktura usługowa

Idealne dla:

• rodzin z dziećmi
• osób ceniących przestrzeń i funkcjonalność
• pracujących zdalnie
• szukających mieszkania z ogródkiem

Zapraszam do kontaktu!

Niniejsze ogłoszenie ma charakter wyłącznie informacyjny i nie stanowi oferty w rozumieniu art. 66 §1 Kodeksu cywilnego. Dane w nim zawarte mogą ulec zmianie. Wizualizacje, rzuty i materiały graficzne przedstawione w ofercie mają charakter wyłącznie poglądowy.



Pokaż więcejmniej  

 
Ogólne warunki:
Cena:801 792 PLN
Waluta:PLN
Liczba pokoi:4
Powierzchnia:69.12 m²
Cena za m2:11 600 PLN
Rynek:Wtórny
 
Opis budynku:
Rok budowy:2027
Liczba pięter:3
Stan budynku:deweloperski
Winda:nie
 
Standard mieszkania:
Stan nieruchomości:deweloperski
 
Pomieszczenia i pokoje:
Typ kuchni:Z oknem otwarta na salon
 
Powierzchnia dodatkowa:
Balkon:nie
Komórka/Piwnica:nie
Loggia:nie
Ogródek:tak
Schowek:nie
Taras:tak
 
Bezpieczeństwo:
Monitoring:nie
Ochrona:nie
Teren ogrodzony:nie
 
Numer oferty:
CRM:34964550143

Pokaż więcejmniej  

Tagi

Masz pytania? Napisz!

Przepisz kod captcha:

Polecamy podobne oferty

Zapisz się na powiadomienia o podobnych ofertach

Przepisz kod captcha:

Zaktualizowaliśmy naszą Politykę Prywatności.

Nowe zapisy w Polityce Prywatności wynikają z konieczności dostosowania naszych działań oraz dokumentacji do nowych wymagań europejskiego Rozporządzenia o Ochronie Danych Osobowych (RODO), które jest stosowane od 25 maja 2018 r.

Zaawansowane