Mieszkanie 2 pokojowe na Sprzedaż

2 pokoje 63.3m²
WIELKOPOLSKIE Poznań Łazarz ul. Kanałowa

499 000 PLN

63 m2| kamienica| świetna lokalizacja 63.3 m²

499 000 PLN Negocjuj cenę >

WIELKOPOLSKIE Poznań Łazarz ul. Kanałowa MAPA

1/11

499 000 PLN WYŁĄCZNOŚĆ   

Zapraszam do zapoznania się z ofertą sprzedaży mieszkania na 1. piętrze w kamienicy na poznańskim Łazarzu, przy ul. Kanałowej. Mieszkanie nie znajduje się we frontowej części kamienicy, widok z mieszkania na dziedziniec. 
Lokal wymaga remontu/ odświeżenia, poprzedni właściciel wymienił instalacje elektryczną na miedzianą. 

Mieszkanie obecnie nie jest zamieszkane, dostępne od zaraz. Widoczne wyposażenie w mieszkaniu może pozostać. Wspólnota podjęła działania w kwestii remontu klatek schodowych, 
jest na etapie zbierania ofert od wykonawców. 

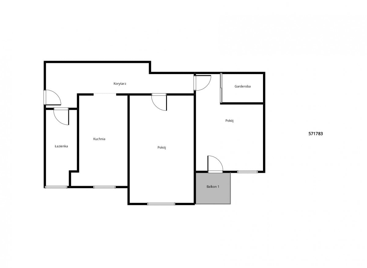
Na powierzchni 63,30 m2 rozplanowano:
- Pokój: 17,8 m²
- Pokój z garderobą: 19,2 m²
- Niezależna kuchnia: 10,9 m²
- Łazienka: 4,9 m²
- Korytarz: 10,5 m²

Dodatkowe informacje:
Stan prawny: pełna własność z KW
Dostępność: mieszkanie wolne od zaraz
Dodatkowo: balkon, piwnica
Czynsz: około 500 zł (fundusz remontowy, kanalizacja, woda zimna, eksploatacja), dodatkowo prąd i gaz
Ogrzewanie: gazowe, koza - w łazience znajduje się piec gazowy jednofunkcyjny do ogrzewania wody. Istnieje możliwość przerobienia instalacji na centralne ogrzewanie gazowe, na co można pozyskać do 12 000 zł dofinansowania z Urzędu Miasta Poznania.
Ekspozycja: wschód, widok na dziedziniec
Parking: w strefie, przy ul. Kolejowej znajduje się plac, na którym można wynająć miejsce na placu.

Lokalizacja: Bezpośrednia bliskość Międzynarodowych Targów Poznańskich (MTP) oraz Dworca Głównego PKP, przystanek tramwajowy przy ul. Głogowskiej, Park Wilsona, liczne punkty usługowe, restauracje, szkoły

Jeżeli zainteresowała Państwa ta oferta, zapraszam do kontaktu w celu umówienia się na prezentacje.



Pokaż więcejmniej  

 
Ogólne warunki:
Cena:499 000 PLN
Waluta:PLN
Liczba pokoi:2
Powierzchnia:63.3 m²
Cena za m2:7 883 PLN
Czynsz administracyjny:500 zł
Rynek:Wtórny
 
Opis budynku:
Rodzaj budynku:Kamienica
Rok budowy:1915
Liczba pięter:4
Piętro:1
Stan budynku:dobry
Winda:nie
 
Standard mieszkania:
Stan nieruchomości:dobry
Rodzaj ogrzewania:Elektryczne
 
Pomieszczenia i pokoje:
Typ kuchni:Z oknem
 
Powierzchnia dodatkowa:
Balkon:tak
Komórka/Piwnica:tak
Loggia:nie
Ogródek:nie
Schowek:nie
Taras:nie
 
Bezpieczeństwo:
Monitoring:nie
Ochrona:nie
Teren ogrodzony:nie
 
Numer oferty:
CRM:34964548658

Pokaż więcejmniej  

Tagi

Masz pytania? Napisz!

Przepisz kod captcha:

Polecamy podobne oferty

Zapisz się na powiadomienia o podobnych ofertach

Przepisz kod captcha:

Zaktualizowaliśmy naszą Politykę Prywatności.

Nowe zapisy w Polityce Prywatności wynikają z konieczności dostosowania naszych działań oraz dokumentacji do nowych wymagań europejskiego Rozporządzenia o Ochronie Danych Osobowych (RODO), które jest stosowane od 25 maja 2018 r.

Zaawansowane