Dom 5 pokojowe na Sprzedaż

5 pokoje 194.4m²
MAZOWIECKIE pruszkowski ul. Aksamitna

1 780 000 PLN

Bliźniak z garażem w Michałowicach Nowa oferta! 194.4 m²

1 780 000 PLN Negocjuj cenę >

MAZOWIECKIE pruszkowski ul. Aksamitna MAPA

1/23

1 780 000 PLN WYŁĄCZNOŚĆ   

Ostatnie 3 domy na sprzedaż!

Nowoczesny bliźniak w stanie deweloperskim, położony w zielonej i spokojnej części Michałowic, przy ul. Aksamitnej. To propozycja dla osób, które szukają domu pod Warszawą, ale nie chcą rezygnować z wygody codziennego życia, dobrego dojazdu i funkcjonalnej przestrzeni dla całej rodziny.


Dom ma powierzchnię 194,4 m² i został zaprojektowany tak, aby zapewniać komfort w codziennym użytkowaniu. Układ jest wyjątkowo praktyczny: na parterze znajduje się przestrzeń dzienna z dużym salonem, otwarta kuchnia oraz dodatkowy pokój, który idealnie sprawdzi się jako gabinet, pokój gościnny lub sypialnia. Na piętrze znajdziemy cztery ustawne pokoje i dużą łazienkę, więc bez problemu można urządzić tutaj sypialnię główną, pokoje dla dzieci, a także dodatkową przestrzeń do pracy lub hobby.

Dużą przewagą tej nieruchomości jest sposób połączenia lokali – budynki stykają się ze sobą wyłącznie garażem. W praktyce oznacza to dużo większą prywatność oraz poczucie, że mieszka się w niezależnym domu.

Nieruchomość sprzedawana jest w stanie deweloperskim, co daje nowemu właścicielowi pełną swobodę aranżacji. Komfort na co dzień podnosi ogrzewanie podłogowe w całym domu. Budynek posiada trzyszybowe okna, solidne ocieplenie elewacji oraz dach w nowoczesnym kolorze ciemnego antracytu, dzięki czemu całość prezentuje się elegancko i ponadczasowo. W cenie uwzględniono również wiele elementów, m.in.: ogrodzenie z furtką i bramą na pilota, bramę garażową na pilota, uporządkowanie i wyrównanie terenu wraz z posianiem trawy oraz wykonanie kostki brukowej wokół budynku, na podjeździe i tarasie. Dodatkowym atutem są przygotowane punkty elektryczne pod kamery i czujniki, osobny licznik do podlewania ogrodu, podziemne odprowadzenie wody z rynien oraz wypuszczona instalacja umożliwiająca montaż fotowoltaiki w przyszłości.

Dom posiada garaż w bryle na jedno auto oraz dodatkowe miejsce postojowe na podjeździe. Dojazd do nieruchomości prowadzi drogą gminną o utwardzonej nawierzchni. Media miejskie: prąd, gaz, woda oraz kanalizacja, co zapewnia komfort i brak kompromisów, z jakimi często wiążą się podwarszawskie lokalizacje.

LOKALIZACJA:
Michałowice to miejscowość ceniona za kameralny charakter, dużo zieleni oraz świetne połączenie z Warszawą. To miejsce, w którym można odpocząć po pracy, a jednocześnie sprawnie dojechać do miasta. Okolica jest spokojna i typowo domowa, co docenią osoby szukające bezpiecznej przestrzeni dla rodziny, z wygodą życia na co dzień i możliwością aktywnego spędzania czasu.

Michałowice oferują doskonałą komunikację z Warszawą zarówno samochodem, jak i koleją WKD. Uzupełnieniem jest gminna komunikacja autobusowa oraz szybki dostęp do głównych tras wylotowych i lotniska.

Rynek pierwotny, kupujący nie płaci podatku PCC 2% oraz prowizji.
Dom jest gotowy od ręki, dlatego zapraszam na prezentacje w dogodnym terminie.

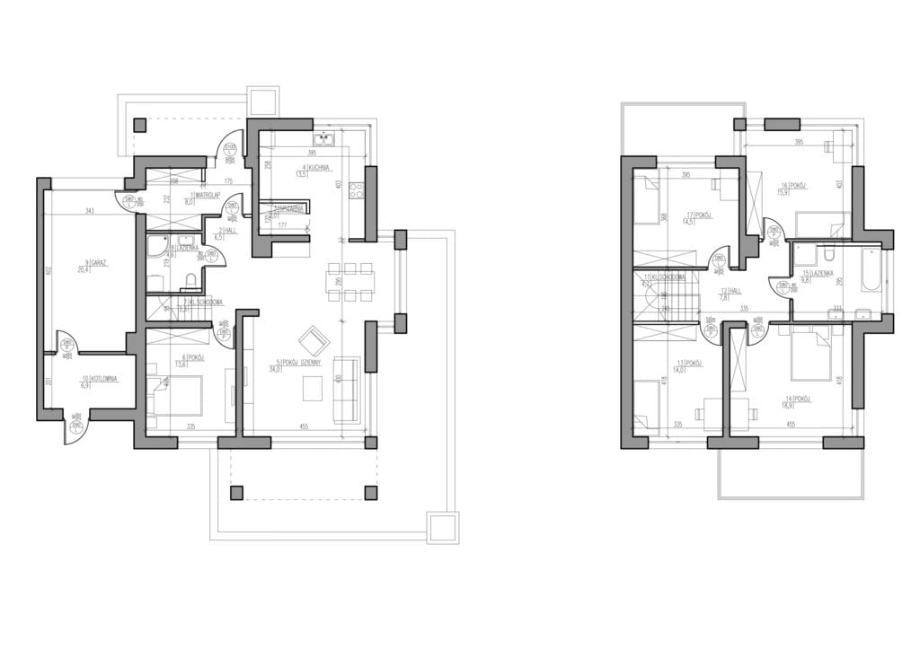
ROZKŁAD POMIESZCZEŃ:
Parter:
  • pokój dzienny (34,0 m²),
  • kuchnia (13,5 m²),
  • pokój (13,6 m²),
  • łazienka (4,6 m²),
  • garderoba (4,8 m²),
  • hall (3,6 m²),
  • kotłownia (6,8 m²),
  • garaż (20,4 m²).

Piętro:
  • pokój (18,9 m²),
  • pokój (15,9 m²),
  • pokój (14,5 m²),
  • pokój (14,0 m²),
  • łazienka (9,8 m²),
  • hall (7,8 m²),
  • klatka schodowa (4,7 m²).







Pokaż więcejmniej  

 
Ogólne warunki:
Rynek:Wtórny
Cena:1 780 000 PLN
Waluta:PLN
Cena za m2:9 156 PLN
Liczba pokoi:5
 
Standard domu:
Rok budowy:2025
Liczba pięter:2
 
Bezpieczeństwo:
Monitoring:nie
Teren strzeżony:nie
 
Numer oferty:
CRM:34964540447

Pokaż więcejmniej  

Masz pytania? Napisz!

Przepisz kod captcha:

Polecamy podobne oferty

Zapisz się na powiadomienia o podobnych ofertach

Przepisz kod captcha:

Zaktualizowaliśmy naszą Politykę Prywatności.

Nowe zapisy w Polityce Prywatności wynikają z konieczności dostosowania naszych działań oraz dokumentacji do nowych wymagań europejskiego Rozporządzenia o Ochronie Danych Osobowych (RODO), które jest stosowane od 25 maja 2018 r.

Zaawansowane