Mieszkanie 2 pokojowe na Sprzedaż

2 pokoje 72m²
MAZOWIECKIE Warszawa Wola ul. Marcina Kasprzaka

1 790 000 PLN

Apartament z widokiem na centrum Warszawy 72 m²

1 790 000 PLN Negocjuj cenę >

MAZOWIECKIE Warszawa Wola ul. Marcina Kasprzaka MAPA

1/19

1 790 000 PLN WYŁĄCZNOŚĆ   

Bliska Wola Tower | 15 piętro | zachody słońca

Wyjątkowy apartament zlokalizowany w prestiżowej inwestycji Bliska Wola Tower na warszawskiej Woli. Nieruchomość znajduje się na 15 piętrze i oferuje spektakularny widok na centrum Warszawy oraz Park Moczydło, który szczególnie zachwyca podczas wieczornych zachodów słońca.
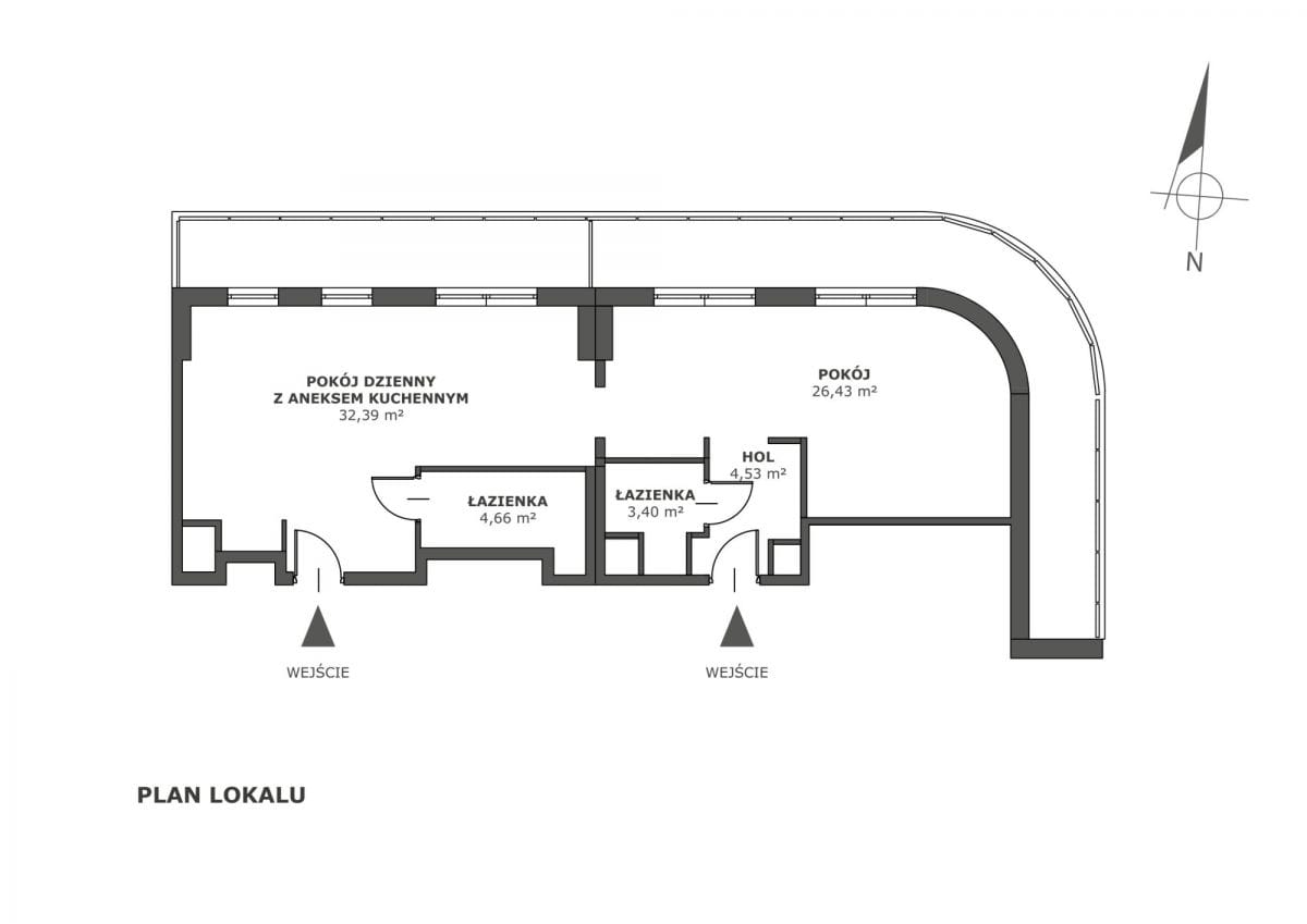
Mieszkanie powstało z połączenia dwóch lokali dwupokojowych, dzięki czemu oferuje komfortową przestrzeń oraz funkcjonalny układ. Istnieje możliwość ponownego podziału i przywrócenia pierwotnego układu dwóch mieszkań, co czyni tę nieruchomość interesującą także inwestycyjnie.
Apartament wykończony został w podwyższonym standardzie, z dbałością o funkcjonalność oraz komfort codziennego użytkowania.

Układ pomieszczeń obejmuje m.in.:


  • przestronny salon z pięknym widokiem na panoramę miasta

  • dużą sypialnię z miejscem do pracy oraz widokiem na park

  • 2 łazienki z prysznicem

  • garderobę

  • osobną pralnię

  • dwa niezależne wejścia do mieszkania



Duże przeszklenia zapewniają doskonałe doświetlenie wnętrza oraz wyjątkową atmosferę, szczególnie podczas malowniczych zachodów słońca.
Nieruchomość idealna dla:


  • singla lub pary, które szukają komfortowego apartamentu z widokiem,

  • osób ceniących miejski styl życia,

  • inwestora zainteresowanego możliwością ponownego podziału lokalu.



Do lokalu  przynależą dwa miejsca obok siebie komfortowe dodatkowo płatne 150 000 PLN.

Bliska Wola Tower to nowoczesna inwestycja w dynamicznie rozwijającej się części Warszawy, z szybkim dostępem do centrum miasta, licznych restauracji, usług oraz terenów zielonych.



Pokaż więcejmniej  

 
Ogólne warunki:
Cena:1 790 000 PLN
Waluta:PLN
Liczba pokoi:2
Powierzchnia:72 m²
Cena za m2:24 861 PLN
Czynsz administracyjny:850 zł
Rynek:Wtórny
 
Opis budynku:
Rodzaj budynku:Apartamentowiec
Rok budowy:2023
Liczba pięter:27
Piętro:15
Stan budynku:bardzo dobry
Winda:tak
 
Standard mieszkania:
Stan nieruchomości:bardzo dobry
Rodzaj ogrzewania:CO miejskie
 
Pomieszczenia i pokoje:
Typ kuchni:Aneks kuchenny
 
Powierzchnia dodatkowa:
Balkon:tak
Komórka/Piwnica:nie
Loggia:nie
Ogródek:nie
Schowek:nie
Taras:tak
 
Bezpieczeństwo:
Monitoring:tak
Ochrona:tak
Teren ogrodzony:nie
 
Numer oferty:
CRM:34964544976

Pokaż więcejmniej  

Tagi

Karolina Grudzińska-Wolińska

Managerka Zespołu / Pośredniczka w Obrocie Nieruchomościami



Masz pytania? Napisz!

Przepisz kod captcha:

Polecamy podobne oferty

Zapisz się na powiadomienia o podobnych ofertach

Przepisz kod captcha:

Zaktualizowaliśmy naszą Politykę Prywatności.

Nowe zapisy w Polityce Prywatności wynikają z konieczności dostosowania naszych działań oraz dokumentacji do nowych wymagań europejskiego Rozporządzenia o Ochronie Danych Osobowych (RODO), które jest stosowane od 25 maja 2018 r.

Zaawansowane