Dom 5 pokojowe na Sprzedaż

5 pokoje 124.16m²
WIELKOPOLSKIE Poznań Podolany

1 450 000 PLN

Bliźniak z garażem, zamknięta ulica z pozbruku 124.16 m²

1 450 000 PLN Negocjuj cenę >

WIELKOPOLSKIE Poznań Podolany MAPA

1/30

1 450 000 PLN WYŁĄCZNOŚĆ   

Wygodny dom w doskonałej lokalizacji, kameralna ulica na Podolanach - pomiędzy ul. Strzeszyńską i Obornicką, blisko szkoły i boisk sportowych.

Istnieje możliwość zakupu przez cudzoziemców
, również spoza UE, bez dodatkowej zgody.

Zabudowa bliźniacza, dom Z GARAŻEM w bryle budynku, lewa połówka.

Obecnie ma 3 sypialnie, ale można przywrócić oryginalny układ uzyskując 4 sypialnie
Przestronny salon z kuchnią, 2 łazienki - prysznic na parterze i wanna na piętrze.


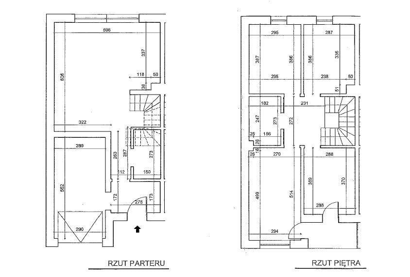
Nieruchomość o powierzchni 124,16 m2, w tym:

PARTER
- garaż z bramą elektryczną
- korytarz
- łazienka z prysznicem, tu pod schodami również miejsce na pralkę
- salon z kuchnią i wyjściem na taras i do ogródka

PIĘTRO
- korytarz
- obecnie 3 sypialnie, pierwotnie 4 (2 od strony ogrodu zostały połączone w celu uzyskania większej przestrzeni)
- łazienka z wanną

PODDASZE gospodarcze (wejście przez składaną wyciąganą drabinkę)


TARAS na parterze wyłożony jest kostką brukową, tak samo jak podjazd przed garażem.
Z dwóch sypialni od strony ulicy jest wyjście na BALKON.

Wszystkie media w domu.
Dodatkowo instalacja alarmowa i monitoring.

Piec gazowy dwufunkcyjny. Instalacja fotowoltaiczna z magazynem energii.

Wnętrza prawie kompletnie wykończone. Nowy właściciel ma przywilej wybrania oświetlenia i kuchni wg własnych upodobań.

Na parterze ogrzewanie podłogowe i terakota. Na piętrze panele wodoodporne.
Całość w bieli i szarościach, eleganckiej i ponadczasowej kolorystyce.

Ogromną zaletą tej nieruchomości jest również jej lokalizacja - blisko szkoły i infrastruktury oraz położenie w zamkniętej wybrukowanej uliczce.
Zadbane i sympatyczne sąsiedztwo.

Więcej zdjęć nieruchomości dostępnych na stronie www biura i u opiekuna oferty.
Zapraszam do kontaktu i na prezentacje.



Świadectwo charakterystyki energetycznej - zapotrzebowanie na energię:

EU - użytkową (kWh/m2*rok): 48.95; EK - końcową (kWh/m2*rok): 58.80; EP - nieodnawialną energię pierwotną (kWh/m2*rok): 62.90; EC02 - Wielkość emisji CO2 (t C02/m2*rok): 0.01; UOZE - Udział odnawialnych źródeł energii w zapotrzebowaniu na energię końcową [%]: 4.04;



Pokaż więcejmniej  

 
Ogólne warunki:
Rynek:Wtórny
Cena:1 450 000 PLN
Waluta:PLN
Cena za m2:11 678 PLN
Liczba pokoi:5
 
Standard domu:
Stan budynku:idealny
Rok budowy:2019
Liczba pięter:2
 
Bezpieczeństwo:
Monitoring:nie
Teren strzeżony:nie
 
Numer oferty:
CRM:34964499271

Pokaż więcejmniej  

Masz pytania? Napisz!

Przepisz kod captcha:

Polecamy podobne oferty

Zapisz się na powiadomienia o podobnych ofertach

Przepisz kod captcha:

Zaktualizowaliśmy naszą Politykę Prywatności.

Nowe zapisy w Polityce Prywatności wynikają z konieczności dostosowania naszych działań oraz dokumentacji do nowych wymagań europejskiego Rozporządzenia o Ochronie Danych Osobowych (RODO), które jest stosowane od 25 maja 2018 r.

Zaawansowane