Lokal użytkowy  pokojowe na Sprzedaż

3 pokoje 120m²
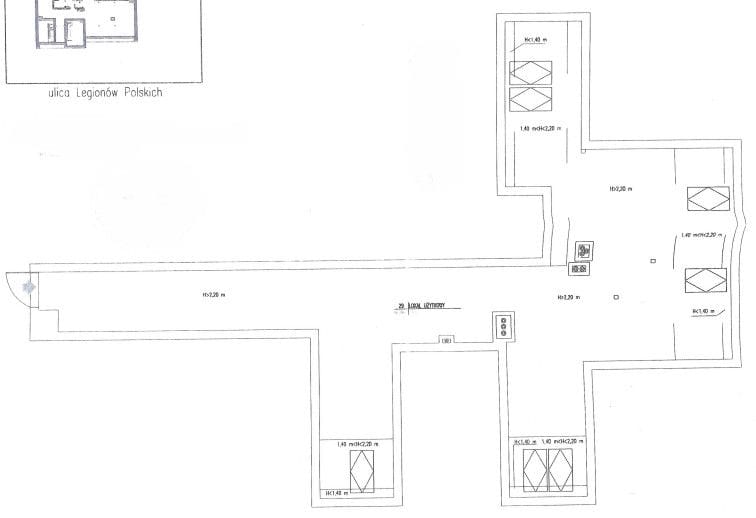
MAZOWIECKIE żyrardowski ul. Legionów Polskich

449 000 PLN

Do własnej aranżacji, dobra lokalizacja 120 m²

449 000 PLN Negocjuj cenę >

MAZOWIECKIE żyrardowski ul. Legionów Polskich MAPA

1/17

449 000 PLN WYŁĄCZNOŚĆ   

Na sprzedaż oferujemy lokal usługowy o powierzchni całkowitej 120 m², a użytkowej 97 m² położony na 3 piętrze w 3 piętrowym budynku z 2021 roku położonym przy ul. Legionów Polskich w Żyrardowie.

Rozkład pomieszczeń:



  • 3 pokoje

  • łazienka,

  • WC/schowek,

  • korytarz,




Dodatkowe informacje:


  • stan deweloperski - pełna dowolność aranżacji (na zdjęciach przedstawione przykładowe wizualizacje)

  • atrakcyjna lokalizacja w rozwijającej się części Żyrardowa

  • w pobliżu sklepy, szkoły, punkty usługowe i tereny spacerowe,

  • Istnieje możliwość przyjęcia luksusowego auta w rozliczeniu



Stan prawny: pełna własność z Księgą Wieczystą

Cena: 449 000zł


Lokal stanowi doskonałą inwestycję pod własną działalność lub wynajem, zapraszam do kontaktu w celu umówienia prezentacji.



Pokaż więcejmniej  

 
Ogólne warunki:
Rynek:Wtórny
Cena:449 000 PLN
Waluta:PLN
Powierzchnia:120 m²
Cena za m2:3 742 PLN
Stan nieruchomości:
Piętro:3
 
Opis budynku:
Rodzaj budynku:
Rok budowy:2021
Stan budynku:deweloperski
Liczba pięter:3
Winda:tak
 
Bezpieczeństwo:
Monitoring:nie
Ochrona:nie
 
Powierzchnia dodatkowa:
Balkon:nie
Komórka/Piwnica:nie
Loggia:nie
 
Numer oferty:
CRM:34964544984

Pokaż więcejmniej  

Tagi

Masz pytania? Napisz!

Przepisz kod captcha:

Polecamy podobne oferty

Zapisz się na powiadomienia o podobnych ofertach

Przepisz kod captcha:

Zaktualizowaliśmy naszą Politykę Prywatności.

Nowe zapisy w Polityce Prywatności wynikają z konieczności dostosowania naszych działań oraz dokumentacji do nowych wymagań europejskiego Rozporządzenia o Ochronie Danych Osobowych (RODO), które jest stosowane od 25 maja 2018 r.

Zaawansowane