Dom 5 pokojowe na Sprzedaż

5 pokoje 154.58m²
MAZOWIECKIE warszawski zachodni

1 199 000 PLN

Dom PREMIUM Ożarów Mazowiecki POGROSZEW 154.58 m²

1 199 000 PLN Negocjuj cenę >

MAZOWIECKIE warszawski zachodni MAPA

1/30

1 199 000 PLN WYŁĄCZNOŚĆ   

Nowoczesny segment skrajny – Pogroszew, Ożarów Mazowiecki

Komfort, funkcjonalność i szybki dojazd do Warszawy!

Na sprzedaż oferujemy nowy, środkowy segment domu szeregowego położony w zielonej i spokojnej części miejscowości Pogroszew, zaledwie kilka minut od centrum Ożarowa Mazowieckiego.
Idealna propozycja dla rodziny szukającej komfortowego domu z szybkim dojazdem do stolicy i bezpośrednim dostępem do natury.

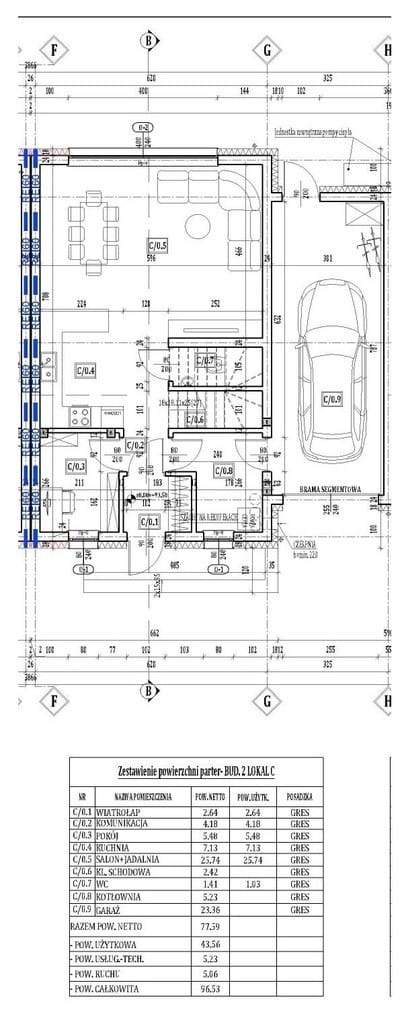
Powierzchnia i układ
  • Powierzchnia całkowita: ok. 193 m²,
  • Powierzchnia działki: ok. 424m²
  • Liczba pokoi: 5 przestronnych pokoi
  • Łazienki: 2 ( główna na piętrze i oddzielna w sypialni) WC na parterze.
  • Garaż: jednostanowiskowy, w bryle budynku.
Parter:
  • Przestronny salon z jadalnią i wyjściem na ogród.
  • Kuchnia otwarta połączona z salonem.
  • Gabinet,
  • WC,
  • Wiatrołap,
  • Garaż z wejściem do wnętrza domu
  • Kotłownia / pomieszczenie gospodarcze
Piętro:
  • 3 ustawne sypialnie (idealne jako pokoje dziecięce, gabinet lub dużą garderobę)
  • Łazienka z prysznicem połączona z pralnią.
  • Sypialnia główna z prywatną strefą relaksy połączona z łazienką z zaplanowaną wanną i oddzielną garderobą.


Standard i instalacje
  • Stan deweloperski – możliwość indywidualnej aranżacji wnętrz.
  • Ściany z bloczków komórkowych Ytong o grubości 24cm, ściany wewnętrzne 12cm.
  • Schody wewnętrzne betonowe.
  • Parapety zewnętrzne blaszane.
  • Ocieplenie styropianem EPS70 grafitowy o grubości 18cm.
  • Dach pokryty papą, strop żelbetonowy monolityczny grubości 18cm.
  • Brama garażowa panelowa z napędem, kolor antracyt.
  • Ogrzewanie podłogowe na całej powierzchni domu.
  • Instalacja grzewcza pompy ciepła.
  • Media: prąd, woda, kanalizacja (szambo).
  • System rekuperacji (wentylacja mechaniczna).
  • instalacja pod alarm, światłowód i pod klimatyzację.

Lokalizacja:

Pogroszew to kameralna miejscowość
położona na zachód od Warszawy, w gminie Ożarów Mazowiecki.

  • Dojazd do centrum Ożarowa Mazowieckiego – 5 minut
  • Stacja PKP Ożarów lub Płochocin – 8 minut
  • Przystanki autobusowe linii 743 i 713 – w zasięgu krótkiego spaceru
  • Szybki dojazd do autostrady A2 oraz trasy poznańskiej (S92)
  • Blisko Kampinoskiego Parku Narodowego – idealne miejsce na weekendowy wypoczynek
W pobliżu:
  • Szkoły podstawowe (Borzęcin, Umiastów)
  • Przedszkole, placówki handlowe i usługowe
  • Siłownia, basen,
  • Tereny rekreacyjny w Kaputach to idealne miejsce do aktywnego wypoczynku i relaksu na świeżym powietrzu, zlokalizowane zaledwie kilka minut od osiedla. Na odwiedzających czekają sezonowe baseny z atrakcjami wodnymi, placem zabaw i strefą gastronomiczną, Bliskość hali sportowej, boisk i tras spacerowych czyni to miejsce atrakcyjnym przez cały sezon letni.
  • Ramppark (pumptrack) w Kaputach to nowoczesny obiekt sportowo-rekreacyjny zlokalizowany przy Hali Widowiskowo‑Sportowej. Składa się z trzech tras pumptrackowych o różnych poziomach trudności, łącznie mierzących 477 metrów, idealnych zarówno dla dzieci, młodzieży, jak i dorosłych entuzjastów rowerów, hulajnog i rolek.

Dlaczego warto?
  • Nowoczesny i energooszczędny dom w atrakcyjnej lokalizacji
  • Ogród – idealne do wypoczynku po pracy
  • Garaż w bryle budynku
  • Blisko szkoły, sklepy, komunikacja – wszystko pod ręką
  • Kameralne osiedle – ogrodzone, bezpieczne, przyjazne rodzinom
  • Gotowy do wykończenia według własnych potrzeb
  • Brak podatku PCC (2%)


Planowane zakończenie prac budowlanych 2026r.

Zapraszam do kontaktu! Nie czekaj – umów się na prezentację i przekonaj się, jak komfortowo można mieszkać pod Warszawą!






Pokaż więcejmniej  

 
Ogólne warunki:
Rynek:Wtórny
Cena:1 199 000 PLN
Waluta:PLN
Cena za m2:7 757 PLN
Liczba pokoi:5
 
Standard domu:
Rok budowy:2025
Liczba pięter:1
 
Bezpieczeństwo:
Monitoring:nie
Teren strzeżony:nie
 
Numer oferty:
CRM:34964548818

Pokaż więcejmniej  

Masz pytania? Napisz!

Przepisz kod captcha:

Polecamy podobne oferty

Zapisz się na powiadomienia o podobnych ofertach

Przepisz kod captcha:

Zaktualizowaliśmy naszą Politykę Prywatności.

Nowe zapisy w Polityce Prywatności wynikają z konieczności dostosowania naszych działań oraz dokumentacji do nowych wymagań europejskiego Rozporządzenia o Ochronie Danych Osobowych (RODO), które jest stosowane od 25 maja 2018 r.

Zaawansowane