Mieszkanie 3 pokojowe na Sprzedaż

3 pokoje 87.3m²
WIELKOPOLSKIE Poznań Komandoria ul. św. Michała

739 000 PLN

REZERWACJA|MIESZKANIE DLA RODZINY|JEZIORO MALTA 87.3 m²

739 000 PLN Negocjuj cenę >

WIELKOPOLSKIE Poznań Komandoria ul. św. Michała MAPA

1/20

739 000 PLN WYŁĄCZNOŚĆ   

MIeszkanie z czystą księgą wieczystą = bezpieczny zakup bez niespodzianek.
Mieszkanie jest po wymianie instalacji elektrycznych - nie wymaga dużego remontu.

Na sprzedaż przestronne, jasne mieszkanie trzypokojowe położone w głębi cichego osiedla blisko Jeziora Malta i centrum Poznania. To świetna propozycja dla rodziny lub jako zakup inwestycyjny (realna możliwość zmiany układu na 5 przestronnych pokoi bez dużych nakładów kosztów). Do mieszkania przynależy duża piwnica.

MIESZKANIE
Położone jest na 2. piętrze w bloku zbudowanym pod koniec lat 80’tych. Składa się z salonu wielkości kawalerki (z wyjściem na zachodni balkon), ogromnej sypialni tej samej wielkości, drugiej sypialni, kuchni, jadalni, toalety z prysznicem i oddzielnego WC.

Dodatkowe pokoje (+2)
1. Duża sypialnia może być podzielona na dwie sypialnie po 10-11 m2 (podział poprzez wstawienie ściany działowej i wykonanie drzwi z korytarza w ścianie działowej)
2. Jadalnia wcześniej była oddzielnym pokojem (podział poprzez wstawienie ściany działowej oraz usunięcie szafy, która powstała w istniejącym otworze drzwiowym).

Mieszkanie jest dwustronne (wschód-zachód) - to zapewnia dobrą wentylację, dużą ilość światła wpadającego przez duże okna oraz optymalną temperaturę mieszkania. Wystawa okien jest południowo-wschodnia, co zapewnia jasne wnętrze. Mieszkanie jest ciche - budynek znajduje się w głębi osiedla w optymalnej odległości od ul. Warszawskiej i Ronda Śródka.

LOKALIZACJA
Komandoria to historyczna część Poznania trwale związana ze Śródką i Jeziorem Malta. Ta okolica charakteryzuje się bliskością terenów zielonych, a także świetnymi połączeniami komunikacyjnymi w obrębie miasta (Rataje, centrum, Naramowice), a także poza miasto (Swarzędz, Gniezno i Czerwonak). Dostęp komunikacji miejskiej zapewnia oddalone o 10 minut pieszo Rondo Śródka - duży węzeł przesiadkowy.

Stan mieszkania: do odświeżenia lub lekkiego remontu (np. zwiększenie ilości pokoi)
Mieszkanie nie wymaga remontu generalnego - przeszło już wymianę instalacji elektrycznych, a podłogi są w dobrym stanie.
Zalecam remont łazienki i WC.

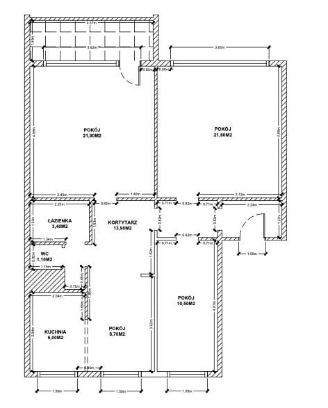
Opis lokalu (powierzchnie pomieszczeń widoczne na rzucie mieszkania):
Mieszkanie o powierzchni 87,3 m2 składa się z:
• ogromnego salonu (21,9 m2) z wyjściem na balkon
• przestronnej sypialni (21,8 m2)
• standardowej sypialni (10,5 m2)
• jadalni - wcześniej oddzielnego pokoju (8,7 m2)
• oddzielnej jasnej kuchni z oknem
• łazienki z prysznicem
• oddzielnego WC
• korytarza z szafą w zabudowie

Parking
Osiedle nie jest objęte strefą płatnego parkowania - dostępne są bezpłatne miejsca parkingowe na osiedlu lub na wydzielonym parkingu, który widoczny jest z okien mieszkania. W okolicy znajdują się garaże murowane.

W bliskiej odległości:
• Rondo Śródka - 5 minut pieszo
• Jezioro Malta - 10 minut pieszo
• Biedronka - 7 minut (500 m)
• apteka - 5 minut pieszo
• szkoła podstawowa - 5 minut (300 m)
• Termy Maltańskie - 20 minut (1,5 km)
• przedszkole - 15 minut pieszo (1 km)

Komunikacja miejska:
- linie tramwajowe: 5, 6, 7, 8, 17
- linie autobusowe: 157, 167, 173, 178, 183, 184, 185, 312, 320, 321, 323, 341, 342, 911
- linie nocne: 213, 223, 227, 252

Dojazd komunikacją:
- 10 minut pieszo na Rondo Śródka
- 5 minut tramwajem/autobusem do ścisłego centrum
- 15 minut tramwajem do Galerii Posnania

Dlaczego warto?
• duże, pojemne mieszkanie z piwnicą o powierzchnii i funkcjonalności domu
• duże możliwości zwiększenia ilości pokoi (z trzech do pięciu)
• dobra wentylacja - mieszkanie jest dwustroone
• jasne, ciche mieszkanie - liczne, duże okna skierowane na ciche, zielone podwórze
• szybki dostęp do całego miasta - bliskość rozwiniętej komunikacji miejskiej
• sprawny dojazd do centrum Poznania

Dla inwestora
Mieszkanie realnie może wygenerować do 7% stopy zwrotu rocznie (możliwości podziału nawet na 6 pokoi z osobną kuchnią).

Forma własności
Pełna własność z czystą księgą wieczystą. Bezpieczny zakup i brak zaległości hipotecznych!

Cena: 779.000 PLN



Pokaż więcejmniej  

 
Ogólne warunki:
Cena:739 000 PLN
Waluta:PLN
Liczba pokoi:3
Powierzchnia:87.3 m²
Cena za m2:8 465 PLN
Czynsz administracyjny:970 zł
Rynek:Wtórny
 
Opis budynku:
Rodzaj budynku:Blok mieszkalny
Rok budowy:1988
Liczba pięter:4
Piętro:2
Stan budynku:dobry
Winda:nie
 
Standard mieszkania:
Stan nieruchomości:dobry
Rodzaj ogrzewania:CO miejskie
 
Pomieszczenia i pokoje:
Typ kuchni:Zamykana z oknem
 
Powierzchnia dodatkowa:
Balkon:nie
Komórka/Piwnica:tak
Loggia:tak
Ogródek:nie
Schowek:nie
Taras:nie
 
Bezpieczeństwo:
Monitoring:nie
Ochrona:nie
Teren ogrodzony:nie
 
Numer oferty:
CRM:34964541983

Pokaż więcejmniej  

Tagi

Masz pytania? Napisz!

Przepisz kod captcha:

Polecamy podobne oferty

Zapisz się na powiadomienia o podobnych ofertach

Przepisz kod captcha:

Zaktualizowaliśmy naszą Politykę Prywatności.

Nowe zapisy w Polityce Prywatności wynikają z konieczności dostosowania naszych działań oraz dokumentacji do nowych wymagań europejskiego Rozporządzenia o Ochronie Danych Osobowych (RODO), które jest stosowane od 25 maja 2018 r.

Zaawansowane